杭州富阳区(万科公望·合院)楼盘百科-楼盘详情-首页网站→基础参数@杭州(万科公望·合院)售楼部-配套→产品特色→项目概况

搜狐焦点鄂州站 2026-02-20 10:05:00
用手机看
扫描到手机,新闻随时看

扫一扫,用手机看文章
更加方便分享给朋友

杭州富阳万科公望售楼处电话400-112-0302【售楼中心】

万科公望

万科公望售楼处电话:400-112-0302【售楼中心】

咨询高峰期请耐心等待,预约来电尊享内部优惠,专业一对一热情服务,让您用专业眼光去买房。

万科·公望丨杭州山水院墅

—— 【概况信息 】——

【项目名称】万科·公望(富春泉水湾)

【产品】建面约207-268㎡精工大宅(合院+排屋)

【价格】总价约1000万起

【限时重磅礼遇】:墅居公望,礼享大牌精工 (劳芬、当代等大牌配置)—— 【望·四季 🤩美不胜收】 —

——【项目区位:名画实景地上风上水】——

公望位于名画《富春山居图》实景,杭州稀缺背山面水之地,依偎黄公望森林公园南麓与富春江水之间。江滨东大道、彩虹快速路快速抵达滨江区。杭州半小时经济生活圈内,直线距离西湖风景区、钱江新城、钱江世纪城均25公里左右。

——【交通规划:繁华与静谧随心切换】—

杭富沿江公路、320国道、彩虹快速路延伸隧道、地铁6号线、杭州绕城西复线(二绕)、杭州中环(规划)、杭新景高速、富阳高铁站、富阳高铁西站等。

—【高端生活圈:家门口享游逸生活】——

直线距离约600米亚运场馆--富阳水上运动中心🚣♀️🚣🚣♂️

直线距离约150米富春江

直线距离约300米公望绿道🏃♀️🏃🏃♂️

背依约5000亩黄公望森林公园、近富春高尔夫球场🌳🏌️♂️⛳️🏌️🏌️♀️

自带建面约2300²新街坊商业街🍽

开启家门口赛艇、高尔夫、骑行、徒步、乐跑……🚴♀️🚴🚴♂️

满足客户不同运动生活需求

占地面积192亩富阳水上运动中心,也是亚运首金诞生,得天独厚的福址所在。

万科公望

万科公望售楼处电话:400-112-0302【售楼中心】

咨询高峰期请耐心等待,预约来电尊享内部优惠,专业一对一热情服务,让您用专业眼光去买房。

公望绿道、近北之江公园、高尔夫球场,平时可以在这里进行乐跑、露营、打高尔夫等活动,离尘不离城,城市慢生活很是惬意。

黄公望森林公园为亚热带林木种质资源库,海峡两岸文化交流活动的重要场所,每年接待知名华人6000余人次,是杭州城市文化和对外形象的“金名片”。平时徒步,登山都非常方便。

—— 【项目规划:15年精工,纯粹低密】 ——

1、整体规划:

六期三区块位于项目西南侧,为全项目最后一期,容积率约0.508,共157套院墅。

2、建筑风格:

延续三四五期“东南亚+中式”独有的经典建筑风格,土耳其进口的白洞石石材立面,自然厚重,与环境融为一体。布局通风置景俱佳的大面积落地玻璃门窗,将纯粹的自然感与院落的尊贵感紧密糅合,达到天地人和的高度统一。

3、景观亮点:

①两溪一湖:6期收官组团借景自然,两溪一湖构成项目天然水系优势。

②三大主题:“溪、林、山”三大主题,构成项目富有变化的景观组团。

③归家仪式:高差筑台、端景错落、现代门头,打造度假感与仪式感兼具的归家动线。

万科公望

万科公望售楼处电话:400-112-0302【售楼中心】

咨询高峰期请耐心等待,预约来电尊享内部优惠,专业一对一热情服务,让您用专业眼光去买房。

——【样板房实景图】——

①质地材料:地上地面云朵拉灰大理石、墙面多使用木饰面感塑造豪宅仪式感;高奢酒店风卫生间,打造度假居住体验。

②国际顶奢豪宅品牌:全套BOSCH厨电、BLANCO水槽和可拉伸龙头,主卫洁具五金选用劳芬+当代等品牌配置,品质生活,雅奢享受。

【E户型】东方基调与都会奢雅兼备。建筑面积约249㎡ 、L形宽景庭院。

【F户型】深邃摩登精装风格,揉合当下设计思潮与人居尺度墅院。建筑面积约225㎡ 、4厅4卧4卫。

【G户型】东方情境下的都会风格。建筑面积约207㎡ 。

万科公望

万科公望售楼处电话:400-112-0302【售楼中心】

咨询高峰期请耐心等待,预约来电尊享内部优惠,专业一对一热情服务,让您用专业眼光去买房。

【项目户型图】

【F户型】

建筑面积约225㎡ 、4厅4卧4卫

【G户型】

建筑面积约207㎡、4厅4卧4卫

万科公望

万科公望售楼处电话:400-112-0302【售楼中心】

咨询高峰期请耐心等待,预约来电尊享内部优惠,专业一对一热情服务,让您用专业眼光去买房。

编辑

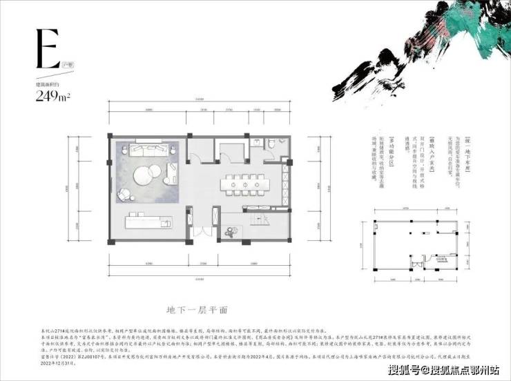
【E户型】

建筑面积约249㎡、4厅4卧5卫

万科公望

万科公望售楼处电话:400-112-0302【售楼中心】

咨询高峰期请耐心等待,预约来电尊享内部优惠,专业一对一热情服务,让您用专业眼光去买房。

郑重承诺:此房源信息真实有效,开发商直属全程营销策划,中介勿扰如有问题欢迎来电咨询,来电即可享受买房优惠!

1、本资料为要约邀请,不作为要约或承诺;买卖双方的权利义务以双方签订的《商品房买卖合同》及其补充协议、附件等书面文件为准;相关宣传内容不排除因政府相关规划、规定及出卖人分期规划、未能控制等原因发生变化;出卖人将!不定期对宣传材料进行修改,敬请留意最新资料。

2、图片来源于网络,仅作为推广示意使用;如涉及版权使用,请与我司联系。

声明:本文由入驻焦点开放平台的作者撰写,除焦点官方账号外,观点仅代表作者本人,不代表焦点立场。