2022嘉兴秀洲【融创嘉望府】售楼处电话、地址丨楼盘动态详情
扫描到手机,新闻随时看
扫一扫,用手机看文章
更加方便分享给朋友
嘉兴秀洲区【融创·嘉望府】
售楼处电话:400-000-0460转5000【售楼中心】
温馨提示:网上售楼中心〢欢迎来电咨询〢预约可享内部优惠〢匠心钜制恭迎品鉴〢
【项目四至】:地块西侧为新义路,西侧旁为项目现有主干道嘉铜线,北面为火炬路,东面为规划道路、南面为创新路
嘉兴秀洲区【融创·嘉望府】
售楼处电话:400-000-0460转5000【售楼中心】
【总户数】:1116套,可售828套
【占地面积】:68288㎡
【容积率】:2.20
【装修程度】:毛坯
【产权年限】:70年
【产品类型】:洋房、高层
【产品面积段】:面积段98-145㎡

嘉兴秀洲区【融创·嘉望府】
售楼处电话:400-000-0460转5000【售楼中心】
【品牌价值】
融创中国——中国房地产行业TOP3企业;连续3年中国房企超级产品力TOP1;连续5年中国房地产开发企业10强;连续6年中国房地产较佳雇主企业;福布斯全球上市公司前500强。
融创经过多年稳健发展,已拥有多系列经典产品:壹号院系、桃花源系、府系、源系、宜和山水系、九府宸院系...
“只定制不复制”择址观:融创“因城而定”,先见嘉兴未来发展,择址于嘉兴发展动脉,打造匹配嘉兴的“科创”+“湖区” 的择址模式,为城市高智人群匠心而来。
【秀洲国家高新区】
秀洲国家高新区是嘉兴市少有的高级高新区,是嘉兴市经济转型升级的重要基地、较具创新能力和最富活力的新经济增长点。2020年度,秀洲国家高新区在全国169家国家高新区考核排名中位列第61位,较2016年新升级时提升11位。在全省国家高新区中保持前三,一直位列同批次新升级的31家国家高新区排名前列名。
(数据来源于秀洲国家高新区)
【繁华湖区】
约1600亩的生态面积、约780亩水域面积、楼盘扎堆入驻、配套日益完善、秀湖湖区板块已经扛起了秀洲区发展的大旗。本项目位于秀湖2.0规划板块,是秀洲区政府重点打造板块,秀湖是嘉兴较大的人工湖,也是嘉兴塑造高端宜居片区的发力目标。秀湖2.0板块与秀湖属于同一板块,且交通通达度高,未来可共享区域内的配套资源。
【生活湖区】
交通:位于嘉铜路与东升西路交叉口,东升西路为城市主干道,是新塍进城必经之路,到达市中心约20分钟;其延升段将城西路网向西进一步延伸,连通G524国道,衔接桐乡/洪合/海宁;
学校:世外秀湖实验学校、浙师大附属秀洲实验学校等优质教育资源环绕,培养菁英美好未来;项目周边直线距离约1km内设有幼儿园(规划中),周边直线距离3km内设有小学、初中。
医疗:区域内建有新安国际医院、妇保院两所综合性医院,用心呵护市民健康安全,并且嘉铜公路东侧69亩用地规划建设新妇保院,进一步完善优化高新区医疗康养体系;
商业娱乐:区域内享有中关村购物中心、江南摩尔、全民健身中心、文化艺术中心等秀洲区成熟配套,加之本项目自身商业4500㎡,商业资源丰富。

【科创湖区】
秀洲国家高新区集聚近500家工业企业、近200家企业研发中心、数万科技人员,其中重点大型企业或国企达13家,产业基数庞大。
产业主要以光伏为主体的新能源产业、以智能制造为主导的高端装备制造业、以“两化”融合为路径的时尚产业、以高技术服务为重点的现代服务业、以纳米为核心的新材料产业为主,整体产业污染性低。
【生态湖区】
项目东侧1.5km范围内的嘉禾牧歌项目是由敏实集团投资5亿元,以水稻田、落羽杉为主要特色作物,科学布局书吧、体验馆、农业研学基地等设施,并通过小火车串珠成链,打造高级的诗画江南;项目建成后,除了给市民提供日常的农业特色观光休闲外,这里还可以组织、承办各类文 化休闲活动、农业文化活动、生态湿地活动。
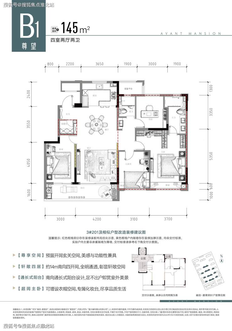
【户型展示】
【建筑立面】
本项目采用现代风格,住宅立面以新加坡“The Marq”爱马仕公寓为蓝本,延续融创现代谱系产品的公建化立面风格,以高级灰为主色彩、大面积玻璃窗、玻璃栏板为主要元素,使建筑立面更加现代时尚、灵动典雅。
【活力园景】
以“城市生活治愈空间”为核心社区景观理念,重现文化生活场景,将居所自然与隐居惬意带给人们, 打造一居又一居的互相嵌套的居所;
十字活动主轴+次轴多功能活动区+环形归家动线+多个院落花园,组成了五大复合性活动区,并融入了“i+美好生活场景体系”,打造趣味玩美的生活体验【i-游戏】、健康活力的生活态度【i-运动】、植物课堂自然实验室【i-探索】、智能便捷的生活方式【i-智慧】、放松社交的生活氛围【i-共享】,为新生代需求下的未来社区提供更多的想象空间。

嘉兴秀洲区【融创·嘉望府】
售楼处电话:400-000-0460转5000【售楼中心】
【归心空间】
作为融创进入秀洲的排名前列个市本级项目,我们还为您带来了归心社区,归心是我们融创高端生活价值体系,我们设置了全龄归心空间,包含乐活、书享、果壳等室内空间,给您带来“有家、有生活、有知己”的美好生活体验。
【融创美好归心服务】
归心服务是融创独有的客户服务体系。基于对客户需求的深入研究,通过搭建一站式客户服务平台,为客户提供全流程、全资源的高品质生活服务,让每个追求美好生活的中国家庭,在融创归心社区,都能感受到“有家、有生活、有知己 ”的融创式美好;归心服务的全生活服务体系包括:客户服务、物业服务以及房屋保养维修服务。
融创物业多次获得国家物业管理示范住宅小区、中国物业服务品质先进品牌企业TOP3。
嘉兴秀洲区【融创·嘉望府】
为确保销售现场安全有序,仅预约客户可进入销售现场,请务必报名后静待销售电话确认,确认后再行前往,感谢您的理解和支持!
预约活动说明
■ 售楼处电话:400-000-0460转5000【预约热线】
■ 提供免费看房班车接送,自驾报销车费
■ 购房享较低折扣:通过本网预约享受开发商较低购房优惠折扣
■幸运大抽奖:可参与售楼处砸金蛋活动
声明:本文由入驻焦点开放平台的作者撰写,除焦点官方账号外,观点仅代表作者本人,不代表焦点立场。
