中交澄园
中交澄园售楼处电话:400-112-0302【售楼中心】
咨询高峰期请耐心等待,预约来电尊享内部优惠,专业一对一热情服务,让您用专业眼光去买房。
今年3月已交付,实景呈现品质相当出色,并且交付即可办证
今年3月底,中交澄园迎来了集中交付。

从交付现场来看,中交澄园延续了中交一贯的高品质作风,实景呈现相当出色。
酒店式主入口门楼、双精装入户大堂,从归家的第一刻就给足了业主尊属感!

项目实景图
Low-E高透大面玻璃窗+干挂珍珠蓝石材+木纹铝板等多种材料打造的外立面,不仅在板块内的辨识度相当高,颜值也非常在线。

项目实景图
风雨连廊、草坪会客厅、约4000㎡室内运动中心、全龄架空层...全方位满足全龄段业主的生活所需,公共配置上也是很用心了。

项目实景图
而且,中交澄园在交付时同步实现了交房即办证,物业是绿城物业,在武汉服务小区业主中的口碑也相当高。

超高品质的实景呈现+现房+即买即办证的安心+绿城物业,在小区质感以及后期居住体验上,中交澄园的表现可以说相当优秀。

城芯2.76低密社区,5号楼王加推在即,主推建面约105-127平全能三房
中交澄园总建面约17万方,容积率仅约2.76,是比较低密的社区。
并且也得益于更低的容积率,项目得房率也较市场同类项目更高一些。
整个项目包含10栋住宅,其中还包含有4栋城市核心相当稀缺的洋房产品。

中交澄园
中交澄园售楼处电话:400-112-0302【售楼中心】
咨询高峰期请耐心等待,预约来电尊享内部优惠,专业一对一热情服务,让您用专业眼光去买房。
项目即将加推的5号楼位于整个小区的中部,南北面都被小区园林环绕,景观效果非常不错。
5号楼总高27层,1个单元,1楼为架空层,公摊约21-22%(周边超高层产品公摊大多在约26%,共计156套房源。
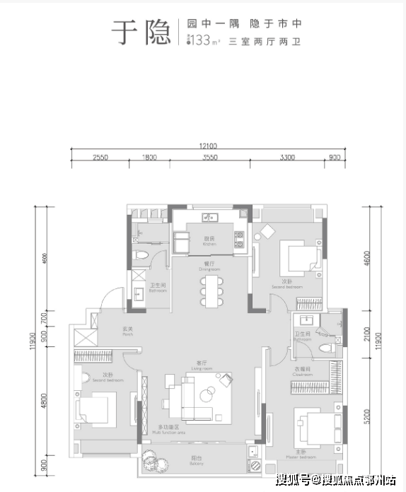
5号楼主推建面约105、127平户型,具体户型图如下
5号楼建面约105平户型

5号楼的中间户,三房两卫的布局,功能性是非常强的;阳台做到了双面宽,开间达5.45米,尺度感也不错;并且还有一定的可拓展空间,优化之后得房率更高。
因为面积绝对值不大,这个户型总价预计仅约155-172万,首付仅需23-25.8万,相对来说门槛比较低,对年轻群体非常友好。
5号楼建面约127平户型

5号楼的端头边户,南北通透三面采光的户型,配合5号楼的位置,景观效果更好;整个户型也是非常的方正,后期装修如果按照户型图来布局,则属于超级舒适的大三房。
整个南向开间达11.7米,采光面更大,阳台开间达7.2米,晾晒、观景可两不误;并且客厅开间达5.1米,后期完全可改造为3+1房,满足多样化生活需求。
这个户型总价预计约195-215万,首付约29-32万左右,较105平户型略高一点,如果是二胎家庭或者三代同堂,则更推荐5号楼这个127平的户型。
3、更有建面约133-152平稀缺洋房可供选择
如果你预算相对充足,还可以看看中交澄园的洋房产品。
前面提过,中交澄园容积率低至2.76,住宅产品中还包含有4栋十分稀缺的洋房产品。
4栋洋房总高只有6-10层,真正的超低密产品,在全武汉三环内都找不出几个来,青山区在售的项目中更是一个都没有,非常的稀缺。

洋房实景图
中交澄园
中交澄园售楼处电话:400-112-0302【售楼中心】
咨询高峰期请耐心等待,预约来电尊享内部优惠,专业一对一热情服务,让您用专业眼光去买房。
更为难得的是,中交澄园洋房主打户型包括建面约133、142平的三房,以及建面约142、152平的四房,户型面积段并不太大,门槛相对主城范围其他同类低密产品更低,对于追求低密品质生活的改善群体来说,更加友好。
洋房都是一梯两户布局,户户南北通透,并且公摊更低,居住舒适度更高。
建面约133平洋房户型

南向开间约12.1米,总进深约11.9米,典型的大开间短进深布局,采光通风效果都更好;
客厅面宽达约5.5米,轻松get大横厅,并且因为尺度足够阔绰,后续想要改造为3+1房也是绰绰有余的;整体户型布局相当的方正,加上公摊较低,内部空间尺度也十分舒适。
并且因为面积仅133平,总价门槛不算太高,相比板块内同总价高层而言,更有性价比。
建面约142平洋房户型

四房两卫的布局,功能性更强;并且这个户型南向开间达到了约14.1米,比133平户型更加阔绰,客厅开间达到约7.2米,瞬间拥有大平层横厅既视感,如果有需要,后期还可以变身为4+1房,功能多变,非常适合二胎家庭或者三代同堂家庭的一步到位置业需求。
除此之外,项目洋房还有带露台赠送的顶复产品,不仅赠送面积惊人,还能拓展出多种生活场景:月色下的浪漫餐厅、老人的菜园子、亲友聚会party的举办地、亲子互动的游乐天地...
目前 洋房为现房在售,更多产品细节、房源情况,大家也可以前往项目现场亲自看看。

洋房实景图
4、地处青山核心,周边配套相当成熟
中交澄园地处青山主城核心板块,2.5环地段,环线地段都比较不错,周边各项配套也都相当丰富且成熟。
点击下图,查看项目周边航拍

中交澄园
中交澄园售楼处电话:400-112-0302【售楼中心】
咨询高峰期请耐心等待,预约来电尊享内部优惠,专业一对一热情服务,让您用专业眼光去买房。
已通车的地铁5号线和平公园站,就在项目约800米处。
此外,项目约600米处,还有在建中的10号线工业路站,未来可享双地铁出行。

商业方面,青山印象城、武商城市奥莱大型商业综合体就在项目附近,购物非常方便。

教育方面,项目自带有一所幼儿园。
另外,约300米处就是吉林街小学澄园校区,这是由区域第一梯队吉林街小学教育集团管理的学校,教学质量更有保障,并且根据2025年最新划片显示,中交澄园的对口小学就是吉林街小学澄园校区,学区这一块稳了。

吉林街小学澄园校区

另外,根据2025年青山区划片信息显示,钢城六中的对口范围包含113街,而中交澄园刚好属于113街,后期对口钢城六中的可能性也是比较大的。(因吉林街小学澄园校区暂无毕业班,因此暂无对口初中信息,最终对口信息以后续教育局划片为准)

钢城六中也是武汉重点初中,实力不容小觑,除此之外,项目周围还汇聚了钢城三中、钢城四中等省市级重点中学,学习氛围相当浓厚。
另外,项目 北面还紧挨着南干渠游园,不仅在楼上看到的风景更好、视线更加开阔,茶余饭后下楼休闲锻炼也相当方便,配合项目自身的低密,生态环境非常好。

实景图,从南干渠游园看项目
步行范围内项目还可快速抵达和平公园、青山江滩公园,整体环境十分宜居。
中交澄园
中交澄园售楼处电话:400-112-0302【售楼中心】
咨询高峰期请耐心等待,预约来电尊享内部优惠,专业一对一热情服务,让您用专业眼光去买房。
郑重承诺:此房源信息真实有效,开发商直属全程营销策划,中介勿扰如有问题欢迎来电咨询,来电即可享受买房优惠!
1、本资料为要约邀请,不作为要约或承诺;买卖双方的权利义务以双方签订的《商品房买卖合同》及其补充协议、附件等书面文件为准;相关宣传内容不排除因政府相关规划、规定及出卖人分期规划、未能控制等原因发生变化;出卖人将!不定期对宣传材料进行修改,敬请留意最新资料。
2、图片来源于网络,仅作为推广示意使用;如涉及版权使用,请与我司联系。