城发云锦城
城发云锦城售楼处电话:400-112-0302【售楼中心】
咨询高峰期请耐心等待,预约来电尊享内部优惠,专业一对一热情服务,让您用专业眼光去买房。
如果说,从前的购房法则里面有一条,叫作“时间换空间”,就是说以相对更长的通勤时间,来换取城市远郊相对宽适的居住空间,那么,现在的购房者已然不吃这一套了,距离和空间两者都要,而且都要品质好的。
云锦城,建筑面积约73-133m2的户型空间,不论购房者是单身、情侣,或是三口之家、二孩家庭,皆可从容应对。
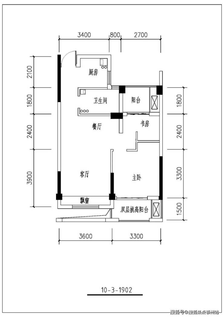
云锦城建筑面积约89m2户型是难得一见的可变户型:既可以是两室两厅两卫的常规空间,也可以通过改造阳台实现三室两厅的全功能居家空间。而建筑面积约133m2的四房宽居,更是可以一步到位让购房者一举完成改善。


户型图
不想等未来好
只想现在就有
不用靠想象就能看到未来的居住场景,也是让众多购房者内心笃定的关键因素之一。云锦城约500米地铁3号线【华鹤街】站,走路约十分钟即达,是想去武林广场逛一逛,还是去奥体听一场明星演唱会,都一线直达无须换乘。就这便利程度,也远超杭州不少的小区了吧?如果再告诉你,从云锦城出门3公里即可直达龙湖丁桥天街,有杭州目前唯三的山姆会员店,这份都市生活的从容和松弛感,又该赢得多少艳羡的目光?
甚至云锦城已是现房,学区已明确划分,未来孩子就从家门口约400米内的丁蕙第一幼儿园,一路升学至浙江师范大学附属丁蕙实验小学及杭州市丁蕙实验中学,12年家门口一站式教育配置,更为购房者省去多少接送焦虑。

杭州地铁3号线

浙江师范大学附属丁蕙实验小学
住得舒服
才是真正的价值
当其他楼盘还在高喊着发展潜力、未来规划时,云锦城以“现房+醇熟住区”的组合拳,给予了市场一份关于“居住质感”的标准答案。
云锦城将日常的生活方式植入在地环境肌理中,建立超越常规的“居住质感”。有“天然氧吧”之称的长皋生态居住区,精选城市中难得一见的双水岸,让晨昏的时光变得浪漫温馨;早已树荫如盖的社区绿化,是家中长者聚会、孩子们嬉闹的“第二客厅”;而2km内有了杭州市中医院丁桥院区的专业医疗资源支持,一家老小在此的居住也变得让人安心从容。
况且邻里的热络氛围,哪怕是初次到访,也会在第一时间被拽入本地情感的氛围中。鲜花和酱油下楼就能买到,左手情怀右手生活,这样的居住质感,没有几年的配套沉淀是不可能实现的,更何况还是在价值永固的主城上城区。

城发云锦城社区实景
云锦城,让房子真正回归居住的本质,也正是靠着这些实实在在的居住感,走出了这波独立行情。更何况主城区、现房、总价仅约127万起的标签,早已让云锦城的价值BUFF 叠满了。
好消息是,云锦城目前各户型还有少量余房待售,各户型也还有选择余地;坏消息是,也许就是你犹豫的一个瞬间,就与TA擦肩而过了。
总价仅127万起入住云锦城,不要犹豫,马上行动起来吧!
城发云锦城
城发云锦城售楼处电话:400-112-0302【售楼中心】
咨询高峰期请耐心等待,预约来电尊享内部优惠,专业一对一热情服务,让您用专业眼光去买房。
郑重承诺:此房源信息真实有效,开发商直属全程营销策划,中介勿扰如有问题欢迎来电咨询,来电即可享受买房优惠!
1、本资料为要约邀请,不作为要约或承诺;买卖双方的权利义务以双方签订的《商品房买卖合同》及其补充协议、附件等书面文件为准;相关宣传内容不排除因政府相关规划、规定及出卖人分期规划、未能控制等原因发生变化;出卖人将!不定期对宣传材料进行修改,敬请留意最新资料。
2、图片来源于网络,仅作为推广示意使用;如涉及版权使用,请与我司联系。