首页:洪山区(华中科学生态城嘉悦府)售楼部地址-2025楼盘详情-房价-户型-首页网站@武汉洪山区(华中科学生态城嘉悦府)首页网站

搜狐焦点鄂州站 2025-12-06 13:21:46
用手机看
扫描到手机,新闻随时看

扫一扫,用手机看文章
更加方便分享给朋友

武汉洪山区华中科学生态城嘉悦府售楼处电话400-112-0302【售楼中心】

华中科学生态城·嘉悦府

华中科学生态城·嘉悦府售楼处电话:400-112-0302【售楼中心】

咨询高峰期请耐心等待,预约来电尊享内部优惠,专业一对一热情服务,让您用专业眼光去买房。

楼盘整体数据

华中科学生态城规划总建面约100万方,共8个地块,规划约30万方住宅,约10万方大型生态商业综合体,目前已官宣引入万象生活,此外,还规划有约28万方商务办公群、15万方高端人才公寓、3万方精品酒店,以及幼儿园、中小学等。

本次推出的住宅是项目的F地块,案名为华中科学生态城·嘉悦府,总建筑面积10.65万方,商业建筑面积约305平,容积率约3.64,总户数761户,机动车停车位1540个,车位比约1:2.02。

推售阶段:纯新盘首开。

F地块楼栋分布图

项目地块分布图

项目地址: 雄楚大道666号(杨家湾地铁站A出口旁)

开发商:武汉华中科态城实业投资发展有限公司

物业:龙湖物业

产品类型:住宅+商业综合体

产权年限:住宅70年

水费:民水

电费:民电

物业费:3.2元/㎡/月

交房时间:预计2025年6月

交房标准:毛坯

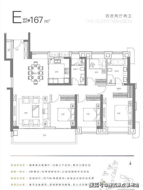
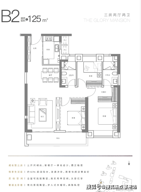
在售情况:1号楼115、135、141㎡、3号楼125、138、167㎡

均价:2.3-2.5w

户型图展示:

华中科学生态城·嘉悦府

华中科学生态城·嘉悦府售楼处电话:400-112-0302【售楼中心】

咨询高峰期请耐心等待,预约来电尊享内部优惠,专业一对一热情服务,让您用专业眼光去买房。

华中科学生态城·嘉悦府

华中科学生态城·嘉悦府售楼处电话:400-112-0302【售楼中心】

咨询高峰期请耐心等待,预约来电尊享内部优惠,专业一对一热情服务,让您用专业眼光去买房。

交通出行

●项目北临雄楚大道和东湖,南面距离南湖约400多米。

雄楚大道串联二环线、地铁2号线西接汉口,东向光谷,还有24号线(规划中)、BRT、两湖隧道(建设中),未来可一步直达武昌核心区。

周边配套

商业方面,临近武商梦时代、街道口商圈,项目本身也带有大体量商业。

商业部分由顶级团队运营,打造新生态城市乐园——

一个集购物、休闲、娱乐、文化等多元化功能于一体的商业中心,已签约华润万象生活,打造游逛式商业体验;

另外包含商办型长租公寓和一家精品酒店,产业部分则由9大支柱产业集群、6大新兴产业领域、5大未来产业组成。

在商务办公部分,整体以互联网龙头企业为主,全自持建设总部经济,更计划引进腾讯。

教育方面,签约武汉经开外校华中科学生态城校区,9年制公办学校,设立36个班,其中小学24个班,初中12个班。

目前学校已经在建设中,预计2024年4月主体结构封顶,2025年3月完成竣备,2025年9月正式开学。

武汉经开外校华中科学生态城校区效果图

● 医疗方面,湖北省荣军医院、省肿瘤医院、虎泉医院等都在项目附近,自驾比较便捷。

华中科学生态城·嘉悦府

华中科学生态城·嘉悦府售楼处电话:400-112-0302【售楼中心】

咨询高峰期请耐心等待,预约来电尊享内部优惠,专业一对一热情服务,让您用专业眼光去买房。

郑重承诺:此房源信息真实有效,开发商直属全程营销策划,中介勿扰如有问题欢迎来电咨询,来电即可享受买房优惠!

1、本资料为要约邀请,不作为要约或承诺;买卖双方的权利义务以双方签订的《商品房买卖合同》及其补充协议、附件等书面文件为准;相关宣传内容不排除因政府相关规划、规定及出卖人分期规划、未能控制等原因发生变化;出卖人将!不定期对宣传材料进行修改,敬请留意最新资料。

2、图片来源于网络,仅作为推广示意使用;如涉及版权使用,请与我司联系。

声明:本文由入驻焦点开放平台的作者撰写,除焦点官方账号外,观点仅代表作者本人,不代表焦点立场。