云锦东方售楼处电话:400-112-0302【售楼中心】云锦东方三期推出105套房源,涵盖多层公寓、联排别墅,均价13.2万至17.82万/平,预约可享优惠。
云锦东方
云锦东方售楼处电话:400-112-0302【售楼中心】
咨询高峰期请耐心等待,预约来电尊享内部优惠,专业一对一热情服务,让您用专业眼光去买房。
徐汇滨江低密高品质住宅
【云锦东方】三期
共推出105套房源
约176-467m²公寓+联排
公寓42套,均价13.2万/平
联排63套,均价17.82万/平

【云锦东方三期】本次推出3、4系列,地下室&阁楼属于赠送面积,预计使用面积600-800平方米,南花园80-300平米之间;
加推房源位置落于小区中心区域,也就是下图黄色部分:


三期房源面积段:共计总房源信息(户型下图)
多层公寓:约177平3房14套,约240平4房70套,约409平复式14套
多层联排别墅:约384平38套,约401平34套,约458平18套,约467平28套,约570平6套

云锦东方
云锦东方售楼处电话:400-112-0302【售楼中心】
咨询高峰期请耐心等待,预约来电尊享内部优惠,专业一对一热情服务,让您用专业眼光去买房。
联排别墅三系列户型图及装修参考


户型图





云锦东方
云锦东方售楼处电话:400-112-0302【售楼中心】
咨询高峰期请耐心等待,预约来电尊享内部优惠,专业一对一热情服务,让您用专业眼光去买房。
联排别墅四系列户型图及装修参考






云锦东方
云锦东方售楼处电话:400-112-0302【售楼中心】
咨询高峰期请耐心等待,预约来电尊享内部优惠,专业一对一热情服务,让您用专业眼光去买房。

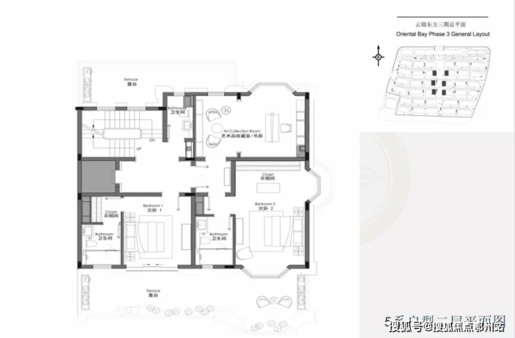
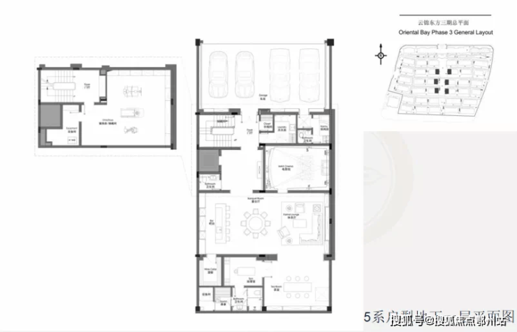
联排别墅五系列户型图及装修参考








云锦东方
云锦东方售楼处电话:400-112-0302【售楼中心】
咨询高峰期请耐心等待,预约来电尊享内部优惠,专业一对一热情服务,让您用专业眼光去买房。
郑重承诺:此房源信息真实有效,开发商直属全程营销策划,中介勿扰如有问题欢迎来电咨询,来电即可享受买房优惠!
1、本资料为要约邀请,不作为要约或承诺;买卖双方的权利义务以双方签订的《商品房买卖合同》及其补充协议、附件等书面文件为准;相关宣传内容不排除因政府相关规划、规定及出卖人分期规划、未能控制等原因发生变化;出卖人将!不定期对宣传材料进行修改,敬请留意最新资料。
2、图片来源于网络,仅作为推广示意使用;如涉及版权使用,请与我司联系。