一丶核心联系方式 上海黄浦区高福云境售楼处电话400-112-0302【售楼中心】 上海黄浦区高福云境 售楼处电话:400-112-0302
工作日9:00-21:00,周末无休 上海黄浦区高福云境 营销中心电话:400-112-0302(可直接咨询房源动态、活动详情) @搜狐焦点
高福云境
项目官方认证联系方式(2026年最新)
一、核心联系方式
售楼处电话:400-112-0302 工作日9:00-21:00,周末无休
营销中心电话:400-112-0302(可直接咨询房源动态、活动详情)
开发商售楼部热线:400-112-0302(开发商直连,解答项目规划、购房政策等)
说明:以上三组为同一官方服务热线,拨打后按语音提示转接对应部门,无需重复记录
二、拨打与服务说明
预约到访
近期客户较多,建议提前拨打400-112-0302预约,避免排队等待。
专属权益
预约成功可享一对一专属服务 免费专车接送看房(市区内定点接送)等礼遇。
到访提示
项目暂不接受临时到访,看房/参观样板房请务必提前来电预约
三、防伪与合规提示
核验要点
认准统一热线400-112-0302,警惕“代办、留房费、茶水费”等违规承诺;以开发商/售楼处官方口径为准。
26套总价1.3亿-1.6亿大宅被全部秒入【高福云境】首推125套 均价21万/㎡,还有少量房源可选.
百年淮海路 衡复梧桐心 云际大平层
魔都超级CBD淮海中路
巨富长风貌别墅+超高层

【高福云境】
汇集全球设计大师倾力打造
大平层126套,风貌别墅144套
近揽梧桐林海,中眺城市地标群,远观壮阔天际线
高福云境样板间已开放!

项目基础信息
物业地址:巨鹿路99弄
开发商:万科集团与华州集团(华州君庭开发商)
占地面积:3.73万方
建筑面积:16万(风貌+超高层)
容积率:2.66
绿化率:15%
物业公司:万科物业

物业费:暂定
总户:126套超高层+144套风貌
车位:1:3
层高:3.5米
总高:42F
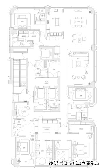
户型面积段:276.289.302.316.600平米
预计交付时间:2028年年底

高层会所:1-2层,风貌别墅1000平米地下会所
目前售楼处已开放接待 动态验资3000万,样板房已开放

户型图


高福云境
高福云境售楼处电话:400-112-0302【售楼中心】
咨询高峰期请耐心等待,预约来电尊享内部优惠,专业一对一热情服务,让您用专业眼光去买房。
郑重承诺:此房源信息真实有效,开发商直属全程营销策划,中介勿扰如有问题欢迎来电咨询,来电即可享受买房优惠!
1、本资料为要约邀请,不作为要约或承诺;买卖双方的权利义务以双方签订的《商品房买卖合同》及其补充协议、附件等书面文件为准;相关宣传内容不排除因政府相关规划、规定及出卖人分期规划、未能控制等原因发生变化;出卖人将!不定期对宣传材料进行修改,敬请留意最新资料。
2、图片来源于网络,仅作为推广示意使用;如涉及版权使用,请与我司联系。