印湘江·New288
印湘江 · New288 售楼处电话:400-112-0302【售楼中心】
咨询高峰期请耐心等待,预约来电尊享内部优惠,专业一对一热情服务,让您用专业眼光去买房。
印湘江 · New288
湖湘首个奢华酒店艺术豪宅
省府心·湘江岸 ·酒店式·现房大平层

印湘江·New288 ,择址省府核心板块,在湘江这一浓缩城市记忆与精华的珍贵地带,于江、天、洲、城黄金分割点,屹立湘江头排,与城市保持最诗意的距离,为288位城市稀贵敬呈珍贵享受。
—— 项目基本信息
【建筑面积】 约4.2万平方米
【占地面积】 约1.4万平方米
【产品类型】 商业大平层
【户型面积】 265-1100㎡一线江景大平层
【交房标准】 精装交付
【总户数】 136户
【绿地率】 约35%
【物业费】 商业4.8元/㎡·月
【交房时间】 现房

【 四大绝版价值 】
一、绝对的政治中心
项目处于省政府核心区域,南湖新城与南部融城片区交汇处,周边环绕着省政府、天心区政府、省交通厅等23家相关政府机构,是长沙乃至湖南省的绝对政治中心。
二、绝对的顶级江景
占据河东一线临江绝版地块,是目前湘江边唯一在售的台地之上一线江景项目。近50米台地抬高,超100米园林退距,做到户户可瞰江,恒久视野无遮挡的顶级江景。
三、绝佳的文化自然资源

印湘江·New288 坐居高等文脉之地,周边“三馆一心”,过桥即达李自健美术馆、谢子龙影像艺术馆,艺术气息熏养,塑立审美意识的理想居停。
四、绝好的生活距离
它以极粹世界的高级配置,勾勒一方恰到好处的繁华谧境。周边雨花亭、五一、红星三大商圈层层辐射,高端商业街咫尺可达,吃喝玩乐一站式高消费可享,远近优势互补,尽享丰盛与品质的抵达。
印湘江·New288
印湘江·New288售楼处电话:400-112-0302【售楼中心】
咨询高峰期请耐心等待,预约来电尊享内部优惠,专业一对一热情服务,让您用专业眼光去买房。
【 酒店式居住体系 】

城市、建筑与自然,色彩、热烈与情感,每一种居住体验,内里凝集的是构建者的思虑。 印湘江·New288 携手国际大师,以先进的美学居筑理念,带来了江岸全新居和筑方式的探索。
带着对新时代豪宅的完美想象,我们深入精研,借鉴豪华酒店思维,提炼长沙首个酒店居住体系,在艺术的氛围中,让您享受到五星酒店般的居住体验。
——酒店式精装体系
印湘江·New288定位为酒店式居住大宅范本。在产品打造上以品质、定制、美学、稀缺为理念,提炼高效收纳、健康生活、厨房关怀、贴心卫浴等酒店式精装体系。

【 首个城市度假美学豪宅 】
著名景观设计大师—叶翀岭先生亲自主笔园林景观设计,将园林、建筑、台地、湘江完美融合,最终形成外江内院的极致景观效果,打造安缦式的长沙城市度假美学豪宅。


印湘江·New288
印湘江·New288售楼处电话:400-112-0302【售楼中心】
咨询高峰期请耐心等待,预约来电尊享内部优惠,专业一对一热情服务,让您用专业眼光去买房。
【首个奢华酒店艺术豪宅】
项目秉承印湘江“酒店式大宅”的设计理念,聘请了全球顶尖的设计团队,包括中国首届高级景观大师叶翀岭、台湾TID居住空间金奖获得者唐忠汉、当代新锐建筑设计师文芳等国际设计大师,致力打造长沙版的宝格丽酒店级居住空间。
——全球7项大奖
截至目前为止,项目获得7项全球级设计大奖。

私人瞰江会客厅
享受一人独处时刻,也享受与挚友的分享时光。开放式的私人会客厅,极简艺术化的美学设计,空气里悠然飘荡着咖啡香,侧目巧顾湘江入眼帘,显然,这是一个轻松完美的聚会场所。

无边际泳池
极具度假体验感的无边际泳池,户外开放设计,白日可近瞰湘江,远眺岳麓绝美天际,夜晚可观星辰,眺望城市繁华夜景,江风拂面,水流轻抚,每时每刻,皆享度假般的悠闲与诗意。

4、约125㎡私人健身房
家楼下举步即达的私人健身房,对热爱运动的人是一种嘉奖,对不爱运动的人亦是一种勉励,由于天然门槛的设立,环境更优越,服务更私享,健身体验更美好。

【最标杆的产品履历】
嘉华地产成立于2007年,至今已有17年时间,多年以来,我们在长沙省府版块,相继打造了“汇金城、印湘江、印湘江2、长沙屿、印湘山、印湘江·New288”,一路扎根省府天心,专注于高端地产的开发,所到之处皆标杆。
【户型鉴赏】
建面约265㎡~1100㎡一线江景大平层

↑【I户型】 建筑面积约 318.11㎡
印湘江·New288
印湘江·New288售楼处电话:400-112-0302【售楼中心】
咨询高峰期请耐心等待,预约来电尊享内部优惠,专业一对一热情服务,让您用专业眼光去买房。


↑约 318.11㎡样板间实景图

↑【G户型】 建筑面积约 281.67㎡
印湘江·New288
印湘江·New288售楼处电话:400-112-0302【售楼中心】
咨询高峰期请耐心等待,预约来电尊享内部优惠,专业一对一热情服务,让您用专业眼光去买房。


↑约 281.67㎡样板间实景图

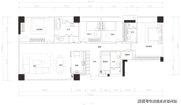
↑【H户型】 建筑面积约 265.41㎡


↑约 265.41㎡样板间实景图
印湘江·New288
印湘江·New288售楼处电话:400-112-0302【售楼中心】
咨询高峰期请耐心等待,预约来电尊享内部优惠,专业一对一热情服务,让您用专业眼光去买房。
郑重承诺:此房源信息真实有效,开发商直属全程营销策划,中介勿扰如有问题欢迎来电咨询,来电即可享受买房优惠!
1、本资料为要约邀请,不作为要约或承诺;买卖双方的权利义务以双方签订的《商品房买卖合同》及其补充协议、附件等书面文件为准;相关宣传内容不排除因政府相关规划、规定及出卖人分期规划、未能控制等原因发生变化;出卖人将!不定期对宣传材料进行修改,敬请留意最新资料。
2、图片来源于网络,仅作为推广示意使用;如涉及版权使用,请与我司联系。