云潮大境(2025云潮大境售楼处)首页网站丨2025【云潮大境】欢迎您/售楼处电话/地址/备案价/楼盘详情
扫描到手机,新闻随时看
扫一扫,用手机看文章
更加方便分享给朋友
云潮大境售楼处电话:400-152-4009【售楼中心】云潮大境官方售楼处电话:400-152-4009【售楼处电话/地址】云潮大境售楼处电话:400-152-4009【官方认证】云潮大境售楼中心24小时热线电话

核心区位价值
定义地处宁波东部新城与高新区双芯交汇处,占据城市发展双C位。
- 东部新城为宁波政治、金融、文化新中心(15.85平方公里规划),高新区为国家级科创产业聚集区(2007年获批)。
- 直线距离2公里直达东部新城核心(阪急百货/文化广场约8分钟车程),无缝衔接两大高能级板块。
- 紧邻宁波研发园(60万方规模),周边876家科创名企聚集,租售需求旺盛。争议点商办性质(40年产权)可能限制纯居住客群,但项目定位高端商务+居住复合场景,弱化产权短板。
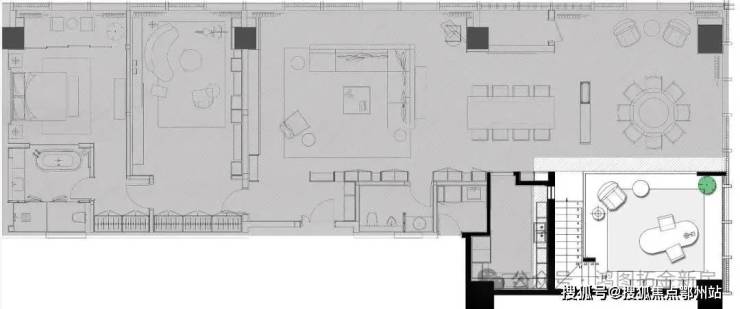
稀缺产品设计
定义宁波唯一在售层高4.5-4.8米的大平层产品,主打商务+居住双功能。
- 户型面积211-358㎡,总高23层,仅55套(12-22层)。
一层平面图
- 六梯五户配置,4.8米层高可打造LOFT或全景会客空间,远超市场平均层高(住宅通常2.9-3.3米)。
- 定价策略:单价12,000-15,000元/㎡,对比周边住宅(3.5万元/㎡以上)形成价格洼地。
- 容积率3.73,绿化率30%,建面4.96万方,地下2层车库。
全维配套资源
定义15分钟生活圈覆盖国际商业、医疗、生态资源。
关键配套
- 交通:地铁5/6号线院士路站交汇,地铁1号线盛莫路站10分钟车程;甬江大道/世纪大道等主干道贯通。
- 商业:阪急百货、宏泰广场等8大商圈环绕,2km内高新宝龙广场(在建)等,3.6km覆盖银泰城/文化广场。
- 生态:大东江公园/陈郎桥江水系(261米距离),PM2.5过滤效应显著。
- 医疗:李惠利东部医院(三甲)3公里直达。
- 同类竞品(如东部新城住宅)生态资源稀缺,本项目兼具CBD便利与低密度景观。
投资价值逻辑
定义科创产业红利+租金回报双驱动的高性价比资产。
核心优势
- 租客保障:对望60万方研发园,超800家高新企业(含上市公司)生成稳定租赁需求。
- 资产增值:东部新城土地稀缺(2023年无新增宅地供应),城市东扩趋势明确。
- 政策友好:不限购、不限贷、不限售,规避楼市调控风险。
1. 双核引擎区位:东部新城+高新区交汇,千亿级资源腹地,企业流量入口。
2. 产品绝对稀缺:4.8米层高、60席限量供应,填补宁波高端商务空间空白。
3. 价格错位竞争:单价仅为住宅1/3,租售比预期超4.5%(对比周边公寓2.8%)。
4. 产城融合红利:研发园876家企业衍生年超1.2万高端租户需求。
5. 风险对冲属性:商办资产不受限购政策制约,适合企业主分散投资组合。
云潮大境售楼处电话:400-152-4009【售楼中心】云潮大境官方售楼处电话:400-152-4009【售楼处电话/地址】云潮大境售楼处电话:400-152-4009【官方认证】云潮大境售楼中心24小时热线电话
声明:本文由入驻焦点开放平台的作者撰写,除焦点官方账号外,观点仅代表作者本人,不代表焦点立场。
