武汉青山区(华侨城红坊右岸)售楼处-房价_房型图_户型图@武汉(华侨城红坊右岸)2025最新优惠-2025楼盘详情-房价-户型

搜狐焦点鄂州站 2025-12-06 14:53:40
用手机看
扫描到手机,新闻随时看

扫一扫,用手机看文章
更加方便分享给朋友

武汉青山区华侨城红坊右岸售楼处电话400-112-0302【售楼中心】

华侨城红坊/右岸

华侨城红坊/右岸售楼处电话:400-112-0302【售楼中心】

咨询高峰期请耐心等待,预约来享内部优惠,专业一对一热情服务,让您用专业眼光去买房。

长江右岸滨江生活区

约200万方城市文化复兴综合体

项目信息:

【红坊 7街坊简介】

【在售面积】2#3#4#5#:115/125/140㎡;1#6#7#:175/188/216㎡一线瞰江大平层

【折后价格区间】115/125/140㎡:约2-2.5万/㎡;175/188/216㎡:约2.5-3.2万/㎡

【楼栋总数】9栋(7栋住宅,A塔楼酒店写字楼,B塔楼公寓)

【总户数】1072户

【容积率】4.33

【车位比】1:1.3

【交付标准】毛坯

【梯户比】2梯2户(1#6#7#号楼)、3梯4户(2#5#号楼)、4梯4户(3#4#号楼)

【交房时间】2023年分批交付

【物业公司】华侨城物业(集团)有限公司武汉分公司

【红坊17-18街坊简介】

【在售面积】稀缺洋房Y1Y2Y3:127-142㎡;高层H8H11:78㎡、119㎡;高层H1H7:99㎡、128㎡;

【折后价格区间】洋房:总价约330-380万;78㎡:总价约175万;99㎡:总价约215万;119㎡:总价约265万;128㎡:总价约285万;

【楼栋总数】14栋(9栋住宅、3栋洋房、2栋商务塔楼)

【总户数】1782户

【容积率】4.05

【车位比】1:1.6

【交付标准】毛坯

【梯户比】1梯2户(洋房)、3梯6户(H8H11)、3梯4户(H1H7)

【交房时间】2023-2024年分批交付

【物业公司】华侨城物业(集团)有限公司武汉分公司

项目价值

从10年前的华侨城东湖集群,到高铁商务区集群,再到如今的华侨城·红坊滨江商务区,华侨城在武汉东湖10年布局后的新战略起势之作。

1,千亿央企品牌

华侨城集团是国务院国资委直接管理的大型中央企业,1985年诞生于改革开放的前沿阵地——深圳。截至目前,华侨城已在全国布局近100座城市,资产规模突破5500亿元。

华侨城红坊/右岸

华侨城红坊/右岸售楼处电话:400-112-0302【售楼中心】

咨询高峰期请耐心等待,预约来电尊享内部优惠,专业一对一热情服务,让您用专业眼光去买房。

2,一线滨江大城

作为武汉华侨城“江湖连廊”战略的长江支点,红坊独享长江右岸恢弘1.2公里滨江岸线,一座200万方聚合多元城市生命模块的红坊,正在构造“文化、生态、生活”三位一体的华侨城生活方式。

3,12年一站式名校

区域唯一市级示范小学红钢城小学在侧,九年一贯制中小学已经获批,武钢三中新校区预计年内启用,12年一站式优教环绕,从小浸润孩子的学习氛围,此后成长的每一步都会快人一步。

4,5大公园环抱

在寸土寸金的城心,江滩公园、和平公园、青山公园、武昌生态文化长廊、戴家湖公园等五大公园环抱,并与内部多主题公园串联,真正实现了华侨城“公园伴你回家的路”的生态理念。

华侨城红坊/右岸

华侨城红坊/右岸售楼处电话:400-112-0302【售楼中心】

咨询高峰期请耐心等待,预约来电尊享内部优惠,专业一对一热情服务,让您用专业眼光去买房。

5,全维轨道交通

堤角长江大桥获批,武汉新二环加速兑现,武汉首条无人驾驶地铁——地铁5号线已经开通,未来将与20号线(规划中)交互于红钢城站,身在红坊,红钢城站与和平公园站举步即达,一站即享便捷。

6,红坊商旅地标

基于尊重城市的地脉精神,在武汉七大亮点片区——红房子历史文化风貌区,将现代商业理念融入原生建筑肌理,以一条1公里生活轴,串联红房子街区,塑造未来潮流体验地标。

7,繁华商业比邻

约1.5万方印章商业,百年奢华酒店——JW万豪酒店首入武汉,签约华侨城并落子红坊,国际体育中心与冠军一号强强签约,国际会议中心等即将逐步兑现,健康生活方式与高瞻商务态度在此汇聚。

8,匠心品质人居

度假式“囍城里悦生活”园林,将智慧红墙、悦乐林语等空间融于一体,构筑全龄全时全享的活力聚场。

双层精装入户大堂,步步皆礼序,架空层融入主题性健身等邻里社交场景,满足生活所有畅想。

线上侨城会平台,享受华侨城联盟商家折扣及华侨城业主专属福利。

华侨城红坊/右岸

华侨城红坊/右岸售楼处电话:400-112-0302【售楼中心】

咨询高峰期请耐心等待,预约来电尊享内部优惠,专业一对一热情服务,让您用专业眼光去买房。

项目配套:

购物:共享22万方红房子商旅地标商业及2.5万方社区商业盒子。周边有众圆广场、奥山世纪城广场、印象城商圈、八大家红坊里商圈。

公园:和平公园、江滩公园、青山公园 、园林科普公园及华侨城配套的12个口袋公园

交通:在建地铁5号线,红钢城站,和平公园站;511路,514路, 365路, 555路等。

教育:项目自带9班公办幼儿园,以及片区有青山区第一幼儿园,红钢城小学,新沟桥小学,钢城四中,四十九中学,武钢三中等

医疗:华润武钢总医院,武汉市普仁医院、市九医院,车行约5分钟可达。

项目实景图:

项目户型图:

【红坊7街坊户型鉴赏】

115㎡ 三房两厅两卫

华侨城红坊/右岸

华侨城红坊/右岸售楼处电话:400-112-0302【售楼中心】

咨询高峰期请耐心等待,预约来电尊享内部优惠,专业一对一热情服务,让您用专业眼光去买房。

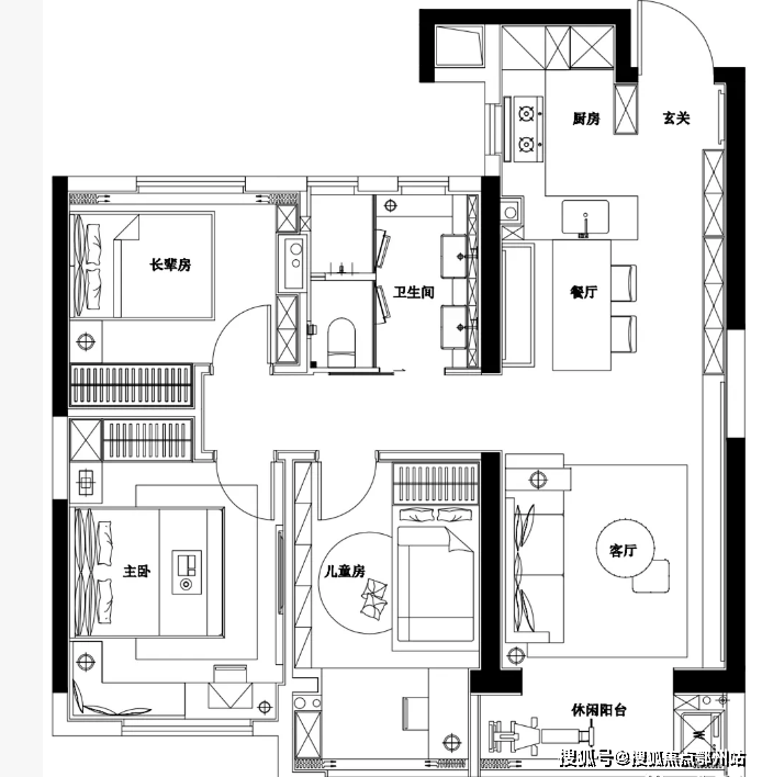
140平 三房两厅三卫

E1 175㎡ 三房两厅三卫

华侨城红坊/右岸

华侨城红坊/右岸售楼处电话:400-112-0302【售楼中心】

咨询高峰期请耐心等待,预约来电尊享内部优惠,专业一对一热情服务,让您用专业眼光去买房。

【红坊17-18街坊户型鉴赏】

78㎡ 两房两厅一卫

99㎡ 三房两厅两卫

华侨城红坊/右岸

华侨城红坊/右岸售楼处电话:400-112-0302【售楼中心】

咨询高峰期请耐心等待,预约来电尊享内部优惠,专业一对一热情服务,让您用专业眼光去买房。

郑重承诺:此房源信息真实有效,开发商直属全程营销策划,中介勿扰如有问题欢迎来电咨询,来电即可享受买房优惠!

1、本资料为要约邀请,不作为要约或承诺;买卖双方的权利义务以双方签订的《商品房买卖合同》及其补充协议、附件等书面文件为准;相关宣传内容不排除因政府相关规划、规定及出卖人分期规划、未能控制等原因发生变化;出卖人将!不定期对宣传材料进行修改,敬请留意最新资料。

2、图片来源于网络,仅作为推广示意使用;如涉及版权使用,请与我司联系。

声明:本文由入驻焦点开放平台的作者撰写,除焦点官方账号外,观点仅代表作者本人,不代表焦点立场。