巨成·璟都会售楼处电话:400-112-0302【售楼中心】巨成·璟都会是桐乡高端大平层,四水环抱,拥有中央公园景观,由振石集团开发,售价18397元/㎡,2025年底交房。
巨成·璟都会
巨成·璟都会售楼处电话:400-112-0302【售楼中心】
咨询高峰期请耐心等待,预约来电尊享内部优惠,专业一对一热情服务,让您用专业眼光去买房。
所在板块:城北
产品类型:180-240㎡大平层
最低折后单价:18397元/㎡,面价:177.29㎡,总价3261630元

项目信息:
开发商信息:振石集团巨成置业
交房标准:毛坯
产权年限:70年
总户数:350户
户型面积:180㎡/210㎡/220㎡/240㎡
层高:16/23层
学区:子恺学校
交房时间:2025年年底
层高:3.15米
物业公司:华盈物业
物业费:4.85元/㎡/月
项目位置:桐乡市秋华路北侧丁家桥港东侧

项目介绍:
翠色璟玉
四水环腰生风云
中国人居传统,上善若水,环腰为贵。巨成·璟都会,以四面环水格局写意优越滨水之境,以“四水归一"之势绘就世界尽归我怀的理想形态,大家基业在此风生水起。
于外,四水相绕,宛如翠璟环腰,写意岛居谧境。两岸芳草嘉木,晨跑漫步,沁润鲜氧,于时光之上,尽揽生活的丰盛美好。
于内,以“双环六境"将园林、庭院、绿地及住宅整体串联,打造中央公园式的景观园林。多维立体的景观层次,更为全龄业主提供丰盛互动体验。

公建立面
巨成·璟都会
巨成·璟都会售楼处电话:400-112-0302【售楼中心】
咨询高峰期请耐心等待,预约来电尊享内部优惠,专业一对一热情服务,让您用专业眼光去买房。
尊呈大都会气象
建筑大师丹尼尔·李布斯金说:一座好的建筑拥有能量,而这种能量你若未曾亲临现场永远无法捕捉,更难以用言语形容。
设计中藏哲思,简练中见自在。巨成·璟都会,围合式建筑布局,内环“中央公园”,外环河道水岸,让户户得以揽胜水岸生态与园林盛景。
在立面设计上,巨成·璟都会从国际审美出发,同时兼具立面外观与空间体验,将极简美学融于建筑肌理,摒弃复杂细节,以横向线条和大
面玻璃构筑大都会级建筑群,以恢弘卓越的建筑气象绘制桐乡荣耀天际。

以心为向
仰止塔尖新聚场
财富的终极意义,在于更有品质的生活。当物质的满足转为精神的愉悦,人居高度的真正价值,才由此慢慢兑现。
巨成·璟都会,为业主量身高定,于园区中
配置三大会所,定制尊荣私享生活。畅叙会所,可与高朋芳邻畅叙情谊,亦可临全景门窗观境下沉式庭院,静享自在品赏之趣。
整合振石大酒店餐饮资源,开启顶尖大厨定
制圈层私宴服务,家庭聚餐、宴宾会客、圈层际会等均可提供高定服务,缔造塔尖品味盛宴。高级健身会所,配置恒温泳池、多功能健身区、瑜伽区等功能区,匹配业主运动健身需求。
建筑不止是建筑,更是时代审美、尊崇生活、圈层交集的承载。在巨成·璟都会,荟聚桐乡时代人物,财富在此交联聚核,基业于此,事业升腾。

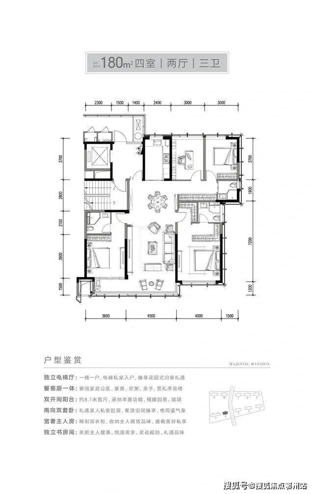
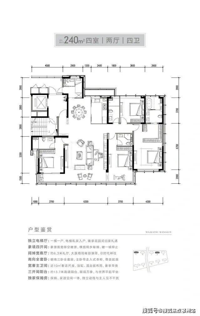
户型赏鉴:

巨成·璟都会
巨成·璟都会售楼处电话:400-112-0302【售楼中心】
咨询高峰期请耐心等待,预约来电尊享内部优惠,专业一对一热情服务,让您用专业眼光去买房。



巨成·璟都会
巨成·璟都会售楼处电话:400-112-0302【售楼中心】
咨询高峰期请耐心等待,预约来电尊享内部优惠,专业一对一热情服务,让您用专业眼光去买房。
郑重承诺:此房源信息真实有效,开发商直属全程营销策划,中介勿扰如有问题欢迎来电咨询,来电即可享受买房优惠!
1、本资料为要约邀请,不作为要约或承诺;买卖双方的权利义务以双方签订的《商品房买卖合同》及其补充协议、附件等书面文件为准;相关宣传内容不排除因政府相关规划、规定及出卖人分期规划、未能控制等原因发生变化;出卖人将!不定期对宣传材料进行修改,敬请留意最新资料。
2、图片来源于网络,仅作为推广示意使用;如涉及版权使用,请与我司联系。