首页:无锡梁溪区(保利达·江湾城)2025最新折扣-房价_交通地铁_楼盘地址@无锡(保利达·江湾城)售楼部电话-容积率-售楼处

搜狐焦点鄂州站 2025-12-08 18:07:17
用手机看
扫描到手机,新闻随时看

扫一扫,用手机看文章
更加方便分享给朋友

苏州梁溪区保利达江湾城售楼处电话400-112-0302【售楼中心】

保利·达江湾城

保利·达江湾城售楼处电话:400-112-0302【售楼中心】

咨询高峰期请耐心等待,预约来电尊享内部优惠,专业一对一热情服务,让您用专业眼光去买房。

基础信息

位置:项目位于无锡市中心解放北路和工运路交汇处西北侧。

规模:项目整体总建约60万平方。

形态:融地标大宅、商业街区、地铁层商业、现代办公、酒店,五位一体,是解放路商圈上一个新的地标大盘

板块特征:无锡的经济、文化、金融、生活中心,代表无锡的城市生活与人居价值高点。

交通价值:城市交通的中心枢纽点,城市干道、高铁、地铁四通八达。

地铁:1号线胜利门站就在项目门口,2号3号线的换乘站,三阳广场与火车站与本项目也就一站之隔。

自驾:一环--解放环路,三横---县前街、人民中路、学前路,一纵--中山路,连通高速和快速内环,直达沪蓉高速。

高铁:距高铁无锡火车站约400米。

4商业配套

大东方、恒隆、苏宁,云蝠,八佰伴等。

教育配套

小学:连元街小学、东林小学、崇宁路小学、积余小学、通江实验小学等。

自然资源

北侧:古运河景观带

南侧:胜利门广场

医疗

二院、二院北院

土地价值

梁溪活力加速度焕发,板块地价得到持续有力支撑。

建筑地标

四期经济指标:总建面约27万平方,是由地标大宅、商业街区和现代办公等物业形态组成的。

四期规划:地标性现代时尚文化城市空间,融合都市与艺术,本土人文内涵与现代风格兼容并蓄,营造人性化的居住生活、购物休闲和办公氛围。

保利·达江湾城

保利·达江湾城售楼处电话:400-112-0302【售楼中心】

咨询高峰期请耐心等待,预约来电尊享内部优惠,专业一对一热情服务,让您用专业眼光去买房。

、 产品价值

建筑风格:现代风格

外立面:银灰色铝板和蓝灰色落地玻璃等材料,强调整体线条感流动感,彰显简洁与现代。

公寓组团:面向高级白领、高端科技人才和新型创业人才入驻办公。

商业街区:满足业主不出小区即可享受到购物、休闲、娱乐和子女教育培训等居住生活需求的同时,也可以辐射到无锡中心城区的居民。

景观绿化:利用屋顶花园增强空间体验,提升景观层次,下沉式广场利用垂直绿化软化墙体,再结合地景搭配LOGO地标,打造新的时尚、艺术生活社区。

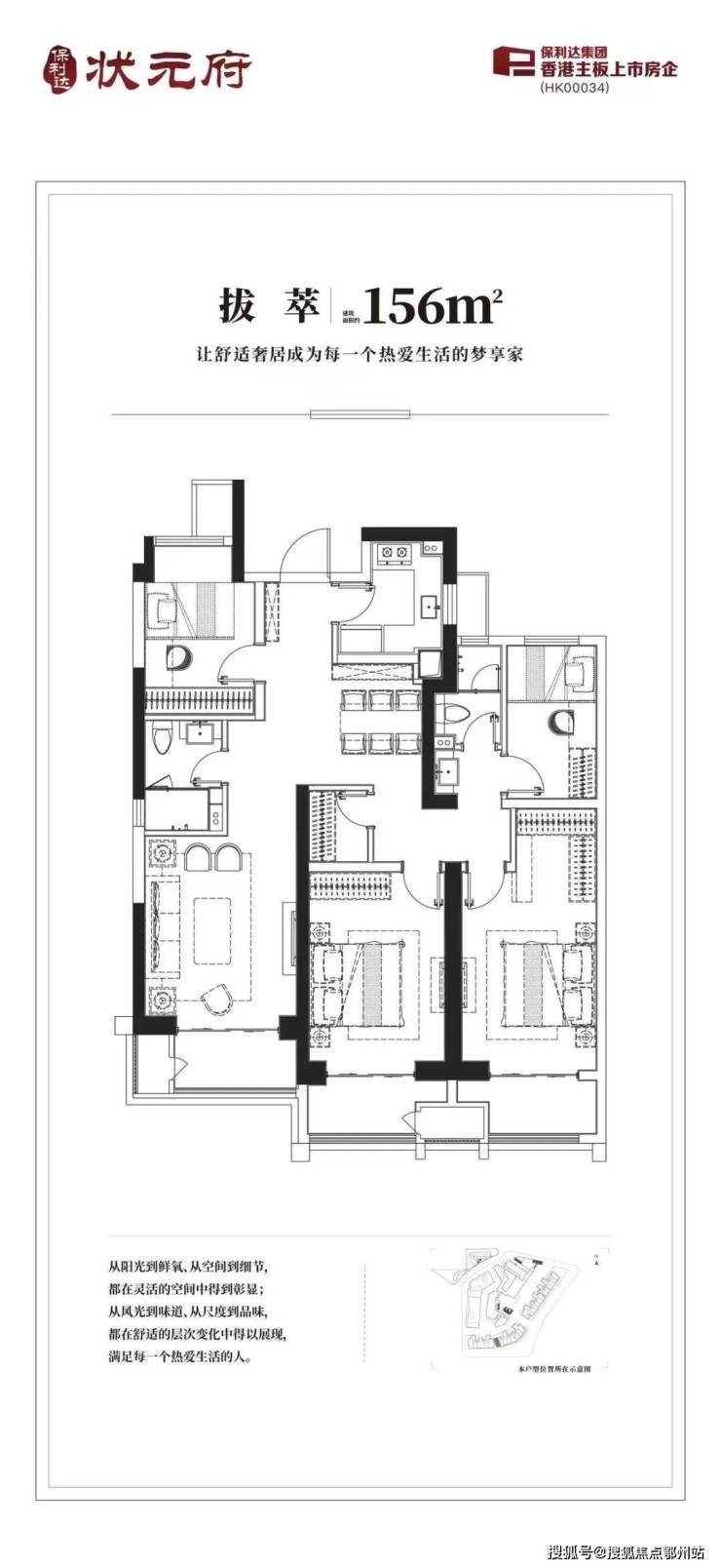
三期大平层户型图:

保利·达江湾城

保利·达江湾城售楼处电话:400-112-0302【售楼中心】

咨询高峰期请耐心等待,预约来电尊享内部优惠,专业一对一热情服务,让您用专业眼光去买房。

保利·达江湾城

保利·达江湾城售楼处电话:400-112-0302【售楼中心】

咨询高峰期请耐心等待,预约来电尊享内部优惠,专业一对一热情服务,让您用专业眼光去买房。

四期户型图:

2号楼87平,89平

4号楼102平:

保利·达江湾城

保利·达江湾城售楼处电话:400-112-0302【售楼中心】

咨询高峰期请耐心等待,预约来电尊享内部优惠,专业一对一热情服务,让您用专业眼光去买房。

保利·达江湾城

保利·达江湾城售楼处电话:400-112-0302【售楼中心】

咨询高峰期请耐心等待,预约来电尊享内部优惠,专业一对一热情服务,让您用专业眼光去买房。

地理优势

全球严选精装品牌

保利达·江湾城四期组团,以舒适人居尺度为蓝图,以品质为标尺,遴选全球专业领域知名品牌,礼献层峰人士。

匠人之心大师团队联袂出品

香港保利达“城市复兴序列作品”,集团专注深度价值挖掘,业务遍及美国、东南亚、中国香港、中国澳门和中国内地等国家和地区,实现全球跨产业布局。40年稳健发展,集团旗下九龙建业(HK0034)在香港上市。保利达·江湾城四期组团,聘请“世邦魏理仕”“第一太平戴维斯”等大师团队强强联合,只为让客户拥有顶级居住体验。

保利·达江湾城

保利·达江湾城售楼处电话:400-112-0302【售楼中心】

咨询高峰期请耐心等待,预约来电尊享内部优惠,专业一对一热情服务,让您用专业眼光去买房。

郑重承诺:此房源信息真实有效,开发商直属全程营销策划,中介勿扰如有问题欢迎来电咨询,来电即可享受买房优惠!

1、本资料为要约邀请,不作为要约或承诺;买卖双方的权利义务以双方签订的《商品房买卖合同》及其补充协议、附件等书面文件为准;相关宣传内容不排除因政府相关规划、规定及出卖人分期规划、未能控制等原因发生变化;出卖人将!不定期对宣传材料进行修改,敬请留意最新资料。

2、图片来源于网络,仅作为推广示意使用;如涉及版权使用,请与我司联系。返回搜狐,查看更多

声明:本文由入驻焦点开放平台的作者撰写,除焦点官方账号外,观点仅代表作者本人,不代表焦点立场。