金融街·融悦沁庭
金融街·融悦沁庭售楼处电话:400-112-0302【售楼中心】
咨询高峰期请耐心等待,预约来电尊享内部优惠,专业一对一热情服务,让您用专业眼光去买房。
吴中太湖新城置业地图
区位概况

交通配套:400米双轨交,地铁4号线、7号线(在建)木里站,友新高架、东太湖大道、沪常高速等环绕;
商业配套:iD PARK苏州湾歌林公园和永旺梦乐城;全国首个绿色三星级地下空间——苏州湾地下空间橙天里;板块核心的苏州湾中心广场也正式开业,包含了旗舰商业、5A超甲级写字楼、希尔顿逸林和希尔顿花园酒店、服务公寓等多种配套。
教育方面:板块内规划了22所学校,引入了华中师大资源,形成“近、优、全”的一站式全龄教育资源配套,华中师大苏州实验小学已经投用,华中师大苏州太湖实验中学总建筑面积约10万㎡,规模为20轨60班,总投资约8亿元,预计今年9月投入使用。
医疗资源:苏州市立医院一期位于吴中太湖新城天鹅荡路北侧、连柱山路西侧,项目占地面积123亩,建筑面积27.6万㎡,拟设床位1000张,建成后为三级甲等综合医院。
户型配置

户型图
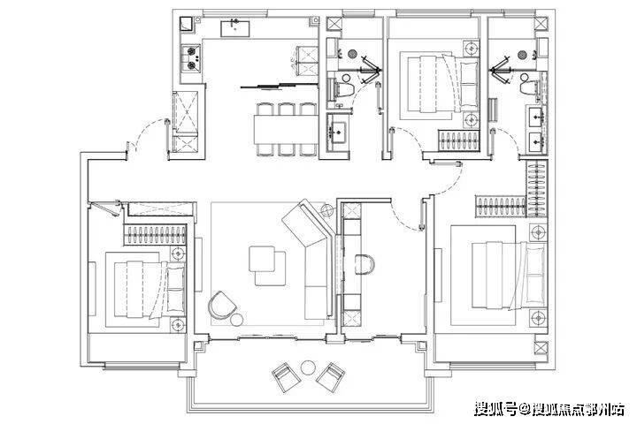
建面约115㎡三室两厅两卫

三开间朝南,约5.5米大横厅外接2米进深阳台
主卧套房,全屋飘窗设计,赠送面积较多
建面约130㎡四室两厅两卫

金融街·融悦沁庭
金融街·融悦沁庭售楼处电话:400-112-0302【售楼中心】
咨询高峰期请耐心等待,预约来电尊享内部优惠,专业一对一热情服务,让您用专业眼光去买房。
三卧朝南,LDKB一体设计,空间感十足。
主卧套房设计,独立卫生设有双台盆。
建面约152㎡四室两厅两卫

四开间朝南,南北双阳台,
厨房连接北阳台,豪华主卧套房设计。
03-价值详解



金融街·融悦沁庭
金融街·融悦沁庭售楼处电话:400-112-0302【售楼中心】
咨询高峰期请耐心等待,预约来电尊享内部优惠,专业一对一热情服务,让您用专业眼光去买房。
项目用地是苏地2023-WG-99号地块,去年12月23日,金融街以底价123345万元竞得,成交楼面价16000元/㎡。

地块位于位于吴中太湖新城东太湖路南侧、箭浮山路东侧,大家东望的西面。周边配套正在兑现中。(顶尖三甲医院、顶尖中学、隧道、地铁等配套即将交付,太湖新城迎来大爆发?)

金融街·融悦沁庭
纯洋房作为板块唯一的纯洋房社区,稀缺性不言而喻。2023年,苏州纯洋房社区的供应比仅6%左右,其得房率、舒适度是高层产品不可比拟的。


二
低密度
作为纯洋房社区,项目容积率只有1.6,这样的密度,阳光不会被过分遮挡,室内能够享受更好的日照。

金融街·融悦沁庭
金融街·融悦沁庭售楼处电话:400-112-0302【售楼中心】
咨询高峰期请耐心等待,预约来电尊享内部优惠,专业一对一热情服务,让您用专业眼光去买房。
距离4号线支线(未来7号线)木里站仅一河之隔,步行可达;

华中师范大学苏州实验中学和华中师范大学苏州湾实验小学环绕,步行可达;
项目北面是天鹅湖公园,南面距离太湖直线距离只有1.2公里;
最近的综合体苏州湾中心广场1.4公里;
距离最近的三甲医院苏州市立医院总院1.2公里;
目前太湖新城几乎没有小户型供应,融悦沁庭最小户型115㎡起,大大降低了购房的门槛。


金融街·融悦沁庭
金融街·融悦沁庭售楼处电话:400-112-0302【售楼中心】
咨询高峰期请耐心等待,预约来电尊享内部优惠,专业一对一热情服务,让您用专业眼光去买房。
郑重承诺:此房源信息真实有效,开发商直属全程营销策划,中介勿扰如有问题欢迎来电咨询,来电即可享受买房优惠!
1、本资料为要约邀请,不作为要约或承诺;买卖双方的权利义务以双方签订的《商品房买卖合同》及其补充协议、附件等书面文件为准;相关宣传内容不排除因政府相关规划、规定及出卖人分期规划、未能控制等原因发生变化;出卖人将!不定期对宣传材料进行修改,敬请留意最新资料。
2、图片来源于网络,仅作为推广示意使用;如涉及版权使用,请与我司联系。