首页:武汉江岸区(万科·云泊江岸)2025最新房源-楼盘百科→24小时热线@武汉(万科·云泊江岸)楼盘百科-2025楼盘详情-房价-户型→配套资

搜狐焦点鄂州站 2025-12-06 17:33:42
用手机看
扫描到手机,新闻随时看

扫一扫,用手机看文章
更加方便分享给朋友

武汉江岸区城建万科云泊江岸售楼处电话400-112-0302【售楼中心】

城建万科·云泊江岸

城建万科·云泊江岸售楼处电话:400-112-0302【售楼中心】

咨询高峰期请耐心等待,预约来电尊享内部优惠,专业一对一热情服务,让您用专业眼光去买房。

百步亭作为二七滨江商务区辐射区:紧邻二七滨江商务区六期,该区域定位为“金融艺术+”商务区,规划不断更新迭代,未来将发展企业总部、高端商业服务、文化旅游、创意产业等,作为江岸区新房住宅网签销量榜第4名的万科云泊江岸,如今加推二期地块,项目能在如今市场热销吗?

万科云泊江岸二期位于武汉市江岸区百步亭路以北、解放大道以西,属于后湖百步亭板块,紧邻二七滨江商务区,项目处于二至三环之间,距离二环线约800米,紧邻解放大道,是贯穿大汉口的主干道,自驾出行便利,可快速到达汉口核心区域及武昌。

总占地面积约9.6万方,总建筑面积约49.9万方,容积率3.57,绿地率25%,总户数2203户,车位比例1:1.92

二期共4栋住宅,分别为1号楼、2号楼、3号楼和4号楼。其中,1号楼和3号楼为低密小高层,2号楼和4号楼为高层建筑。

1号楼位于2号地块最北端,北面紧邻江印小区,南面、东面为二期其他住宅,西面为公园;3号楼位于地块中部,朝向较为方正;2号楼和4号楼则位于地块南侧,朝向解放大道。

1号楼:26层,2梯3户,户型方正,南向阳台赠送面积大,得房率约85%-90%。

3号楼:28层,2梯2户,私梯入户,独立玄关设计,得房率约95%-97%。

2号楼和4号楼:47层,高层设计,视野开阔,但需注意北面江印小区的采光影响

城建万科·云泊江岸

城建万科·云泊江岸售楼处电话:400-112-0302【售楼中心】

咨询高峰期请耐心等待,预约来电尊享内部优惠,专业一对一热情服务,让您用专业眼光去买房。

周边有地铁1号线已通车,南侧地块紧邻丹水池地铁站C出口,步行约779米;在建的地铁12号线预计2026年3月首开段开通,2027年全线贯通,未来将成为双地铁盘,交通出行效率极高

项目南侧约700米有新荣生鲜水产批发市场,约1.2公里处有百步亭花园里商业街,约1.5公里处的新荣天街预计下半年开业,约2.1公里处有新生活摩尔城,约4.1公里处有武汉天地壹方北馆。

项目西侧教育地块引入长春街系小学(36班)+七一系中学(42班),预计2026年9月投入使用,周边还有育才家园小学、武汉七一中学堤角校区、武汉市汉铁高级中学等学校。

三甲医院环绕:5公里内有武汉市汉口医院、中部战区总医院(汉口院区)等三甲医院,距离项目约3公里处还有刚开业的武汉市八医院。

项目北侧为江印小区,南侧为医院/体育场馆,西侧为融创御央首府小区,周边有百步亭游园,项目还将代建带状公园,规划有约8000平文化体育中心、约5700㎡的公园,包含劝学广场、儿童乐园和口袋公园等休闲区。

三重归家系统,包括32米奢阔前院、6米挑高大堂、300㎡水院,营造五星级酒店式归家体验

项目效果图:

开发商:武汉城建&万科

物业:万科物业

产品类型:住宅

产权年限:70年

水费:民水

电费:民电

物业费:3.6元/㎡/月

交房时间:2025年年底

交房标准:精装修

在售情况:108、128、143㎡三房、四房

均价:22000元/㎡

城建万科·云泊江岸

城建万科·云泊江岸售楼处电话:400-112-0302【售楼中心】

咨询高峰期请耐心等待,预约来电尊享内部优惠,专业一对一热情服务,让您用专业眼光去买房。

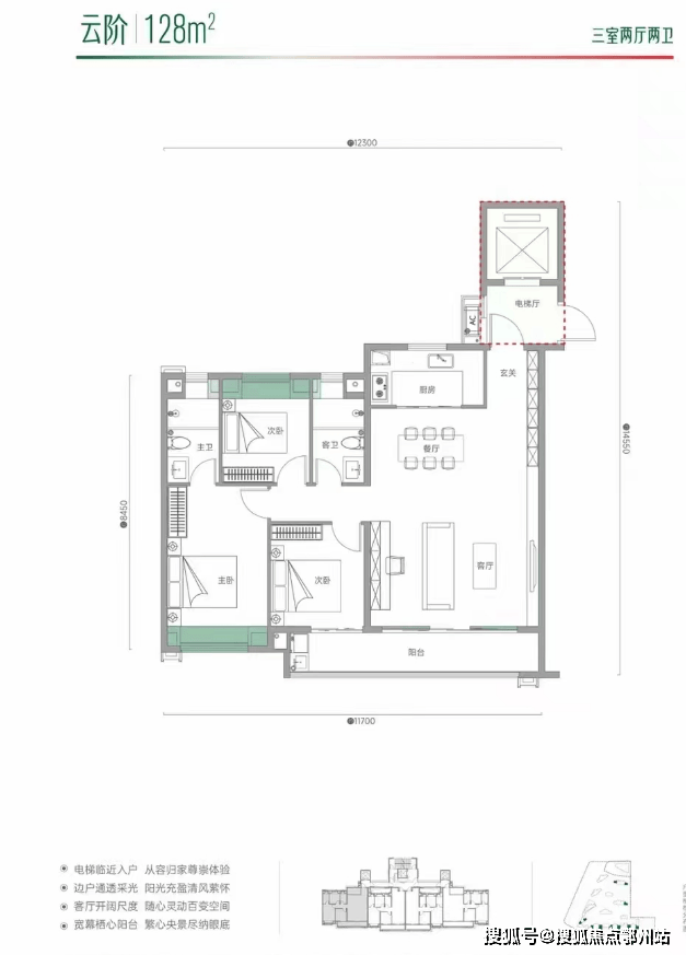
三个户型图,包含建面约108平、建面约128平及约143平。

建面约128平 三房两厅两卫

根据户型分布平面图来看,该户型所在楼栋为3梯4户格局,双连廊设计,该户型位于楼栋边户,南北通透,三开间朝南,南向有连接次卧和客厅的大阳台;户型比较方正且动静分区较好,但是过道有点浪费面积,另外根据户型图显示,该户型可以做到一梯一户的居住体验。

建面约108平 三房两厅两卫

该户型位于连廊中间户,北边对连廊,可以达到南北通透的效果,但是北边对着连廊的空间私密性会有一定影响;该户型很方正,动静分区较好,主卧带有独立卫浴且南北贯通,舒适性不错。

建面约143平 四房两厅两卫

从该户型的分布平面图来看,户型所在楼栋是两梯两户的格局,是纯板楼设计,该户型也是完全南北通透,四开间朝南且三面采光,客厅做了横厅设计,采光面很足,且房间分开布局,没有做动静分区,但是房间私密性更好,还有独立的电梯厅,是较为不错的户型。

城建万科·云泊江岸

城建万科·云泊江岸售楼处电话:400-112-0302【售楼中心】

咨询高峰期请耐心等待,预约来电尊享内部优惠,专业一对一热情服务,让您用专业眼光去买房。

郑重承诺:此房源信息真实有效,开发商直属全程营销策划,中介勿扰如有问题欢迎来电咨询,来电即可享受买房优惠!

1、本资料为要约邀请,不作为要约或承诺;买卖双方的权利义务以双方签订的《商品房买卖合同》及其补充协议、附件等书面文件为准;相关宣传内容不排除因政府相关规划、规定及出卖人分期规划、未能控制等原因发生变化;出卖人将!不定期对宣传材料进行修改,敬请留意最新资料。

2、图片来源于网络,仅作为推广示意使用;如涉及版权使用,请与我司联系。

声明:本文由入驻焦点开放平台的作者撰写,除焦点官方账号外,观点仅代表作者本人,不代表焦点立场。