2025越秀外滩樾(售楼处电话) 官方 - 越秀外滩樾售楼部电话 - 环境 - 户型 - 价格 - 地址 - 楼盘详情 - 配套 - 电话 - 交房时间 - 配套 - 电话 - 交房时间
扫描到手机,新闻随时看
扫一扫,用手机看文章
更加方便分享给朋友
越秀外滩樾售楼处电话:400-152-4009【开发商已认证】越秀外滩樾官方售楼处电话:400-152-4009【售楼处电话/地址】越秀外滩樾售楼处电话:400-152-4009【官方认证】
越秀外滩樾售楼处电话:400-152-4009【开发商已认证】越秀外滩樾官方售楼处电话:400-152-4009【售楼处电话/地址】越秀外滩樾售楼处电话:400-152-4009【官方认证】
基础信息
【项目名称】越秀·外滩樾
【开发商】上海漕越经济发展有限公司
【项目位置】上海市·虹口区·梧州路235弄
【项目类别】70年产权住宅
【项目类型】风貌别墅
【可售户数】48套(风貌)
【容积率】约1.3
越秀外滩樾:北外滩传世孤品,家族荣耀新坐标!
越秀外滩樾售楼处电话:400-152-4009【售楼中心】越秀外滩樾官方售楼处电话:400-152-4009【售楼处电话/地址】越秀外滩樾售楼处电话:400-152-4009【官方认证】
在上海这座国际大都市的黄金版图上,黄浦江与苏州河交汇的“黄金三角”地带,正以磅礴之势引领着城市的未来。外滩沉淀着历史的韵味,陆家嘴闪耀着现代的繁华,而北外滩,正以世界级会客厅的姿态,开启上海下一个百年的辉煌篇章。
就在这时代的封面之上,越秀外滩樾——内环内稀缺低密风貌别墅,犹如一颗璀璨的明珠,以仅有的 49 席家族珍藏,为传奇人物打造专属的永恒主场!
内环孤品,稀世珍藏黄金坐标,无可复制!越秀外滩樾雄踞虹口区梧州路 235 弄,直线距离外滩仅约 1 公里、陆家嘴约 1.5 公里。
越秀外滩樾售楼处电话:400-152-4009【售楼中心】越秀外滩樾官方售楼处电话:400-152-4009【售楼处电话/地址】越秀外滩樾售楼处电话:400-152-4009【官方认证】
在这里,步行范围内即可轻松拥揽北外滩、四川北路、瑞虹新城三大顶级商圈,尽享城市顶级商业资源带来的便捷与繁华。与那些位置偏远、配套不足的项目相比,越秀外滩樾的地段优势堪称一绝!稀缺属性,彰显尊贵!
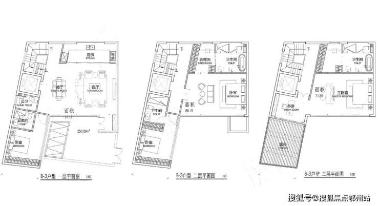
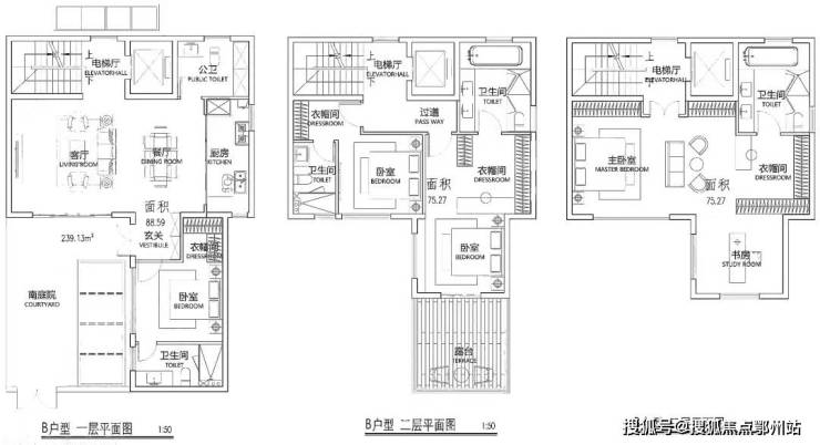
项目容积率仅约 1.3,采用纯别墅社区规划,彻底规避高低配混居的问题。48 席双拼/三拼别墅,重塑了城心墅居的纯粹性。市面上大多数别墅项目往往难以做到如此纯粹,而越秀外滩樾却做到了,真正为追求高品质生活的您打造一方纯粹的私密天地。传世产权,价值永恒!70 年住宅用地,建面约 238 - 338㎡海派院墅,总价 4500 万 - 8000 万。每一席都是独一无二的孤本,随着城市土地资源的日益稀缺,这样的内环内低密风貌别墅将成为绝唱,其收藏价值和投资价值不可估量!
奢华户型,价格彰显价值
建面约238 - 338㎡的主力双拼、三拼别墅,毛坯交付,为您打造个性化的专属空间。总价约4000万 - 9000万元。
【越秀·外滩樾】项目将呈现48套低密风貌里弄住宅,建筑面积约238-338㎡户型。户型图过程稿如下(过程稿仅供参考,最终以实际为准)。
独特优势,无可比拟
稀缺设计,创新典范
上海风貌别墅审批可能暂停,已获批项目本就稀少,而越秀外滩樾更是其中的孤品!它突破传统风貌规制,大窗墙比、大开间设计,大幅提升居住舒适度。
越秀外滩樾售楼处电话:400-152-4009【售楼中心】上海虹口越秀外滩樾官方售楼处电话:400-152-4009【售楼处电话/地址】越秀外滩樾售楼处电话:400-152-4009【官方认证】
由东方主义设计大师程绍正韬、豪宅设计专家李玮珉等大师联袂操刀,融合海派红砖、古典山墙等元素,让历史底蕴与现代美学完美交融。与普通别墅相比,它是艺术与生活的极致结合。
顶级配套,尊崇服务
交通上,邻近地铁4/10/12/19号线(在建),3站直达南京东路,6站畅达新天地,畅行无阻。
社区内配备2500㎡艺术会所,私宴厅、恒温泳池、运动空间一应俱全,提供酒店级服务,让您尽享尊贵生活。
周边还有虹口二中心小学(在建)、上海外国语大学附属外国语学校等优质教育资源,为下一代的成长保驾护航。
区域潜力,无限增值
北外滩总开发面积840万㎡,规划超40栋甲级写字楼、480米浦西第一高楼(北外滩中心),定位为“世界级会客厅”,商业能级对标陆家嘴,预计吸引2100 + 金融企业、4500 + 航运企业入驻。
在此背景下,越秀外滩樾的风貌别墅兼具居住与收藏属性,未来资产增值空间巨大,远超普通房产投资!

立即行动,把握良机
售楼处位于虹口区梧州路235弄,需提前预约参观样板间。官方电话400 - 938 -3568,可咨询房源、预约看房及优惠信息。
机会有限,先到先得,立即联系我们预约实地考察,抢占这限量房源的绝佳机会!
越秀外滩樾售楼处电话:400-152-4009【开发商已认证】越秀外滩樾官方售楼处电话:400-152-4009【售楼处电话/地址】越秀外滩樾售楼处电话:400-152-4009【官方认证】
声明:本文由入驻焦点开放平台的作者撰写,除焦点官方账号外,观点仅代表作者本人,不代表焦点立场。
