格力公园海德
格力公园海德售楼处电话:400-112-0302【售楼中心】
咨询高峰期请耐心等待,预约来电尊享内部优惠,专业一对一热情服务,让您用专业眼光去买房。
「格力公园海德」
松江9号线泗泾站旁
建面约117-191㎡理想复式房
总价约:724万~1235万
无需积分准现房 直接购买
线上预约尊享清盘折扣95%
样板间火热预约中

项目基础信息
项目名称: 【格力·公园海德】
央企开发: 由全球著名建筑大师罗杰斯勋爵及其RSHP建筑事务所倾心打l造。
在售面积: 117--197平(洋房和小高层顶复)
整体楼盘均价: 54876元/平
车位比: 1:1.3
产权: 70产权住宅
交付标准: 精装修交付(2023年6月份)

格力&罗杰斯携手打造 准现房
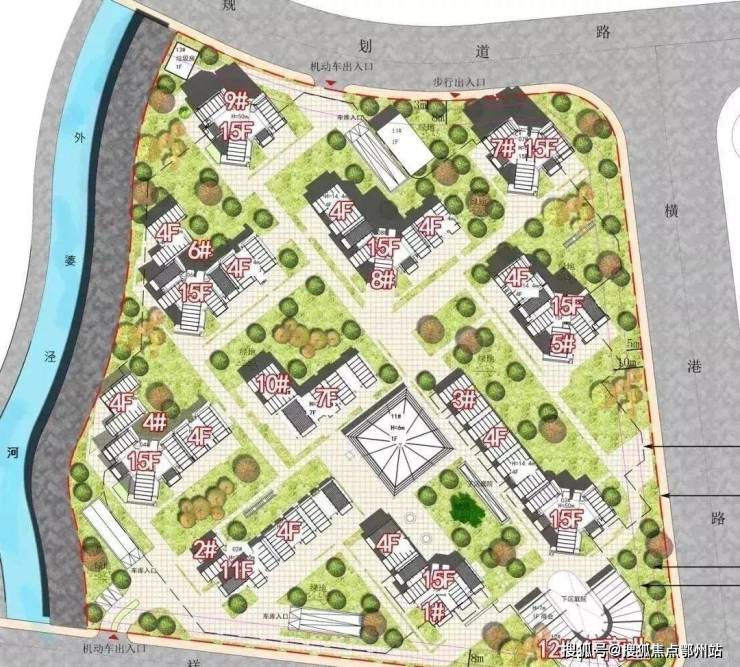
2016年5月11日,格力地产以总价19.65亿元竞得松江泗泾镇SJSB0003单元10-05号地块,楼板价37675元/㎡,溢价率109%。
格力地块规划图

项目位于松江区泗泾镇祥严路88弄,项目总占地32598.1㎡,容积率1.6,建筑面积约10.6万㎡,配建5%保障房。目前项目已是准现房。
项目是由格力地产与罗杰斯事务所携手打造 ,塔楼外立面用大面积采用玻璃、铝板、及纤维水泥板,阳台采用钢结构吊台承重,三面均为玻璃面。裙楼以及会所采用明黄色钢结构楼梯,强调工艺技术与时代感。

格力公园海德
格力公园海德售楼处电话:400-112-0302【售楼中心】
咨询高峰期请耐心等待,预约来电尊享内部优惠,专业一对一热情服务,让您用专业眼光去买房。




景观规划方面 ,格力泗泾项目将打造 12个“口袋庭院”,包含 2 个教育花园、4 个游乐中心、6 个静享花园。

在主楼与裙楼环抱形成的小型空间中,规划特色主题的 “口袋庭院” ,设计出教育花园、游玩庭院、花艺园等特色主题花园,营造丰富的生活趣味。


作为英国著名建筑大师罗杰斯的设计大作,项目将建造成一个高层、少量洋房的混合小区,另有带一幢商业楼。 共10幢住宅,其中有8幢15层、1幢11层、1幢7层,另外1-6号楼附带一些4层建筑,合计约527户。

效果图
产品户型图及样板效果图
六大亮点实现星空顶复向往
为了更好的圆满都市人居理想,公园海德为城市精英家庭、年轻家庭,倾心打造建筑面积约91-197㎡理想星空复式,每一处空间细节都竭力还原纯粹生活本真。

格力公园海德
格力公园海德售楼处电话:400-112-0302【售楼中心】
咨询高峰期请耐心等待,预约来电尊享内部优惠,专业一对一热情服务,让您用专业眼光去买房。
【公园海德】 星空顶复, N+1处天空露台 ,观星、阅读、派对、下午茶等,演绎多重生活场景;
超高层高设计(约3.2m-3.5m), 远高于传统层高,采光自然,视野明亮,自享从容天地;

无承重墙设计, 大师前卫巧思,内部格局随心打通,定制专属格调;
多室空间布局, 多一种生活想象,尽兴墅享品质生活;
双层格局, 上下轩敞有序,每位家人互不干扰,各享其乐;
高附赠空中平台、多重阳台、露台 ,拓展户外空间利用率,延伸生活意趣。

在售房源户型图▼


格力公园海德
格力公园海德售楼处电话:400-112-0302【售楼中心】
咨询高峰期请耐心等待,预约来电尊享内部优惠,专业一对一热情服务,让您用专业眼光去买房。




格力公园海德
格力公园海德售楼处电话:400-112-0302【售楼中心】
咨询高峰期请耐心等待,预约来电尊享内部优惠,专业一对一热情服务,让您用专业眼光去买房。



项目区位配套
【格力·公园海德】 位于松江泗泾核心位置,周边配套齐全。

交通配套方面: 项目与9号线泗泾站直线距离仅约600米,步行可达,可以说是真正的地铁盘,3站到七宝,9站到徐家汇,可换乘1号线和11号线。如果你是自驾的业主,附近有沪渝高速、沈海高速等,出行也十分方便。


商业配套方面: 三湘商业广场、保利悦活荟商业广场、七宝万科广场(3站直达)、奥特莱斯广场、山姆会员店等。


教育资源方面: 松江本身就占据得天独厚的教育资源,项目周边有上海师范大学附属松江实验学校、泗泾小学、松江四中等学校。

医疗资源方面: 距离项目直线距离约700米就有泗泾医院,可为应急就医提供方便。

格力公园海德
格力公园海德售楼处电话:400-112-0302【售楼中心】
咨询高峰期请耐心等待,预约来电尊享内部优惠,专业一对一热情服务,让您用专业眼光去买房。
郑重承诺:此房源信息真实有效,开发商直属全程营销策划,中介勿扰如有问题欢迎来电咨询,来电即可享受买房优惠!
1、本资料为要约邀请,不作为要约或承诺;买卖双方的权利义务以双方签订的《商品房买卖合同》及其补充协议、附件等书面文件为准;相关宣传内容不排除因政府相关规划、规定及出卖人分期规划、未能控制等原因发生变化;出卖人将!不定期对宣传材料进行修改,敬请留意最新资料。
2、图片来源于网络,仅作为推广示意使用;如涉及版权使用,请与我司联系。