上海虹口区(天潼198新湖外滩元)售楼处地址→户型→项目亮点→基础信息@上海虹口区(天潼198·别墅)售楼处地址→户型亮点→产品特色→项目概

搜狐焦点鄂州站 2026-01-23 11:16:49
用手机看
扫描到手机,新闻随时看

扫一扫,用手机看文章
更加方便分享给朋友

虹口天潼198新湖外滩元售楼处电话400-112-0302【售楼中心】

上海虹口(天潼里)

上海虹口(天潼里)售楼处电话:400-112-0302【售楼中心】

咨询高峰期请耐心等待,预约来电尊享内部优惠,专业一对一热情服务,让您用专业眼光去买房。

虹口北外滩核心 钻石地段

苏州河+黄浦江交汇之地

原新湖外滩元项目

定名「天潼198」

提供全海派风貌建筑

包含高层、多层、叠墅、合院别墅等

首发59套风貌小高层

建面约209-641㎡

15套风貌合院别墅(天潼里)

地上建面约502-907㎡

(地上地下加起来约800-1200㎡)

合院别墅总价1.8亿左右起!

天潼198位于内环内北外滩核心,天潼路近乍浦路口,独占江(黄浦江)河(苏州河)交汇上佳钻石地段,距离外白渡桥仅200余米。

项目建造历史风貌高层、多层和里弄住宅,另有少量商业、美术馆和酒店式公寓。

天潼198住宅产品户型图特别多,达到42种。包含面积段约209-641㎡高层住宅,面积段约231-400㎡多层住宅,面积段约㎡高层住宅110-433㎡叠加别墅(含平层),面积段约502-907㎡合院别墅。

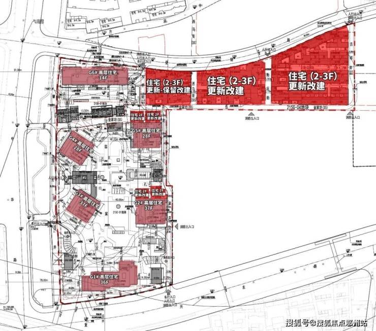
共125套住宅单元,从图示来看,全部是风貌住宅产品。以下为首开楼栋图示,59套小高层+15套合院别墅:

上海虹口(天潼里)

上海虹口(天潼里)售楼处电话:400-112-0302【售楼中心】

咨询高峰期请耐心等待,预约来电尊享内部优惠,专业一对一热情服务,让您用专业眼光去买房。

让我们来看看部分户型图,先是小高层:

上海虹口(天潼里)

上海虹口(天潼里)售楼处电话:400-112-0302【售楼中心】

咨询高峰期请耐心等待,预约来电尊享内部优惠,专业一对一热情服务,让您用专业眼光去买房。

上海虹口(天潼里)

上海虹口(天潼里)售楼处电话:400-112-0302【售楼中心】

咨询高峰期请耐心等待,预约来电尊享内部优惠,专业一对一热情服务,让您用专业眼光去买房。

项目风格复古、隽永,典型的海派风味建造。

天潼198打造约3.3万㎡的新石库门里弄洋房、海派叠墅和联排等产品。在寸土寸金的传统市中心,大尺度的别墅和花园,着实难能可贵。

上海虹口(天潼里)

上海虹口(天潼里)售楼处电话:400-112-0302【售楼中心】

咨询高峰期请耐心等待,预约来电尊享内部优惠,专业一对一热情服务,让您用专业眼光去买房。

项目由GOA大象设计创始人陆皓先生操刀,售楼处电话400-788-2939

汲取外滩西式古典建筑风格,以红砖为主材,复刻老石库门的浪漫风貌,力求打造为一处“新时代里弄住宅”。

项目效果图

「天潼198」位于北外滩核心区,距离外白渡桥非常近,外滩可以步行达,享受外滩的顶级配套。

右下地块即为项目位置

项目附近

项目 目前建造进展如火如荼。

上海虹口(天潼里)

上海虹口(天潼里)售楼处电话:400-112-0302【售楼中心】

咨询高峰期请耐心等待,预约来电尊享内部优惠,专业一对一热情服务,让您用专业眼光去买房。

1 外滩核心区

直面黄浦江+外滩北

作为虹口北外滩的上佳地段,「天潼198」坐享北外滩4平方公里的城市规划,更是成为了媲美陆家嘴的中央活动区, 直面黄浦江+外滩,拥有特别的优势!

其实,说豪宅,我们经常提到陆家嘴,售楼处电话400-112-0302因为上海已经有一个成熟的可供模仿与超越的全球规划模板。但实际上,到目前为止,真正可以 称为世界级规划的在上海只有三个:苏河湾、外滩和北外滩!

世界级规划区域

要知道,相比于其他版块, 北外滩发展后劲尤其强势, 售楼处电话400-112-0302特别在2021年7月份上海市人民政府发布“北外滩4平方公里热土开发机制”后,规划从纸上走向落地, 未来的北外滩,更将成为规划承诺兑现的高地。

白玉兰广场

国际金融航运新中心

上海虹口(天潼里)

上海虹口(天潼里)售楼处电话:400-112-0302【售楼中心】

咨询高峰期请耐心等待,预约来电尊享内部优惠,专业一对一热情服务,让您用专业眼光去买房。

苏宁宝丽嘉

提篮桥中心商业休闲区

而在它的周边,也是产业能级的至高点, 北外滩沿线的甲级写字楼现状大约是200万㎡; 3年内再建成100万㎡,规划中预计增添200万㎡,总计相当于约500万㎡甲级写字楼,或将提供约50万个高收入岗位。

示意图

再看项目的位置,选址于黄浦江与苏州河交汇处, 售楼处电话400-112-0302距离上海著名的外白渡桥仅约260米,家门巷口的这道湾就是黄浦江精华之所在,从这里可以直接步行至外滩。这里是上海市中心真正核心的优质地段!

距离外白渡桥约260米

2 新湖出品

详细介绍

「天潼198」 主要住宅部分由:小高层、叠墅和里弄合院别墅。

据了解, 新湖将保留项目所在区域的地标和文化标志建筑, 包括西本愿寺、景林庐等文保建筑。

黄浦区508-514街坊地块旧城区改造一期工程规划设计方案公示。

建设单位名称:上海亚龙古城房地产开发有限公司

用地范围:东至吉祥弄、北孔家弄售楼处电话400-112-0302,南至金家坊、复兴东路,西至肇方弄,北至昼锦路。

规划用地性质:二类住宅组团用地,售楼处电话400-112-0302三类住宅组团用地

建设工程性质:住宅、配套服务设施

上海虹口(天潼里)

上海虹口(天潼里)售楼处电话:400-112-0302【售楼中心】

咨询高峰期请耐心等待,预约来电尊享内部优惠,专业一对一热情服务,让您用专业眼光去买房。

「天潼198」 占地面积18951㎡, 总建筑面积约105000㎡, 由多层、高层住宅、商业、配套用房及三层地下室组成。

地块信息:

地理位置:东至吉祥弄、北孔家弄,西至肇方弄,南至金家坊、复兴东路,北至昼锦路

出让面积:39128.6㎡

总建筑面积:230072.96㎡

规划用地性质:住宅

工程概况:

天潼198位于上海市繁华地段-北外滩,贴邻外滩历史文化风貌区,东至吴淞路、南至天潼路、西至乍浦路、北至武昌路,旨在打造成有国际品质同时又有上海特质的高档住宅建筑。

优质地块新湖造,在上海新湖已开发包含新湖明珠城、新湖·上海青蓝在内的多个品质楼盘, 豪宅开发经验也相当丰富。

新湖明珠城实拍图

上海虹口(天潼里)

上海虹口(天潼里)售楼处电话:400-112-0302【售楼中心】

咨询高峰期请耐心等待,预约来电尊享内部优惠,专业一对一热情服务,让您用专业眼光去买房。

郑重承诺:此房源信息真实有效,开发商直属全程营销策划,中介勿扰如有问题欢迎来电咨询,来电即可享受买房优惠!

1、本资料为要约邀请,不作为要约或承诺;买卖双方的权利义务以双方签订的《商品房买卖合同》及其补充协议、附件等书面文件为准;

相关宣传内容不排除因政府相关规划、规定及出卖人分期规划、未能控制等原因发生变化;出卖人将!不定期对宣传材料进行修改,敬请留意最新资料。

2、图片来源于网络,仅作为推广示意使用;如涉及版权使用,请与我司联系。

声明:本文由入驻焦点开放平台的作者撰写,除焦点官方账号外,观点仅代表作者本人,不代表焦点立场。