首页:上海静安区(金赢108创意广场)2025最新动态-项目新动态-请看图文解析↓-上海(金赢108创意广场)售楼部→户型→项目亮点→基础信息

搜狐焦点鄂州站 2025-11-11 15:10:38
用手机看
扫描到手机,新闻随时看

扫一扫,用手机看文章
更加方便分享给朋友

上海静安金赢108创意广场售楼处电话400-112-0302【售楼中心】

香榭静安(金赢108创意广场)

香榭静安(金赢108创意广场)售楼处电话:400-112-0302【售楼中心】

咨询高峰期请耐心等待,预约来电尊享内部优惠,专业一对一热情服务,让您用专业眼光去买房。

静安内环核心地段

建面约60~95㎡精装公寓

8号线西藏北路地铁站400米

总价约:390万-723万

5.6米层高复式 得房率130%

50年商办产权 不限购 稀缺Loft公寓

静安精装公寓「嘉利108公馆」又名金赢108创意广场!60-95平复式!不限购!

项目地址位于上海静安区平型关路108号。隶属整个静安完善的市级商圈大宁板块,毗邻人民广场及虹口足球场商圈,地理位置优越、配套成熟、生活便利、公共交通四通八达。项目本身自带底商,瑞幸咖啡,全家,各类重轻餐饮(火锅、快餐、日料、酒吧)等一应俱全,生活非常便捷。地下一层就是超大型综合卖场大润发,完全可以满足您日常生活所需。

【项目基本信息】

板块区位:静安区大宁

地址:嘉利商业广场,静安区平型关路(近西藏北路)

产权:50年

容积率:2.4

总体量:20套

在售面积:复式59~95平

总价:450~723万

交付:精装全配

物业公司:中建物业管理

物业费:5元

停车:1200元/月

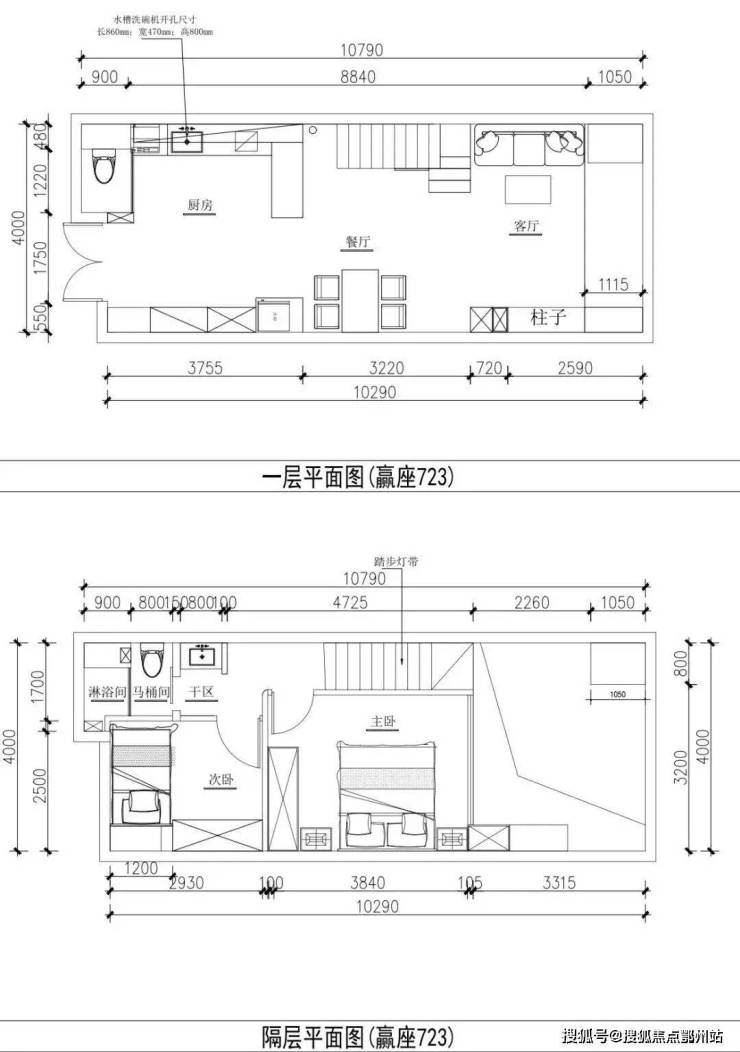
项目户型图

香榭静安(金赢108创意广场)

香榭静安(金赢108创意广场)售楼处电话:400-112-0302【售楼中心】

咨询高峰期请耐心等待,预约来电尊享内部优惠,专业一对一热情服务,让您用专业眼光去买房。

建面约63㎡样板间实拍图

香榭静安(金赢108创意广场)

香榭静安(金赢108创意广场)售楼处电话:400-112-0302【售楼中心】

咨询高峰期请耐心等待,预约来电尊享内部优惠,专业一对一热情服务,让您用专业眼光去买房。

建面约67㎡样板间实拍图

香榭静安(金赢108创意广场)

香榭静安(金赢108创意广场)售楼处电话:400-112-0302【售楼中心】

咨询高峰期请耐心等待,预约来电尊享内部优惠,专业一对一热情服务,让您用专业眼光去买房。

交通方面:步行350米到达8号线西藏北路地铁站,约1.3公里到达1号线中山北路地铁站;自驾5min内到达内环高架路及南北高架,10min可上中环。

商业方面:驱车10min以内便可到达上海著名的大宁商圈以及虹口足球场商圈:大宁国际购房广场,伍绿折扣店,红双喜专卖店,联华超市,大润发超市。

医疗方面:三甲医院有第十人民医院和同济附属口腔医院等坐镇。

香榭静安(金赢108创意广场)

香榭静安(金赢108创意广场)售楼处电话:400-112-0302【售楼中心】

咨询高峰期请耐心等待,预约来电尊享内部优惠,专业一对一热情服务,让您用专业眼光去买房。

郑重承诺:此房源信息真实有效,开发商直属全程营销策划,中介勿扰如有问题欢迎来电咨询,来电即可享受买房优惠!

1、本资料为要约邀请,不作为要约或承诺;买卖双方的权利义务以双方签订的《商品房买卖合同》及其补充协议、附件等书面文件为准;相关宣传内容不排除因政府相关规划、规定及出卖人分期规划、未能控制等原因发生变化;出卖人将!不定期对宣传材料进行修改,敬请留意最新资料。

2、图片来源于网络,仅作为推广示意使用;如涉及版权使用,请与我司联系。

声明:本文由入驻焦点开放平台的作者撰写,除焦点官方账号外,观点仅代表作者本人,不代表焦点立场。