长房·岭秀时代
长房·岭秀时代售楼处电话:400-112-0302【售楼中心】
咨询高峰期请耐心等待,预约来电尊享内部优惠,专业一对一热情服务,让您用专业眼光去买房。
长房集团 始创于2004年3月,是一家由长沙市人民政府授权组建的国有独资企业,长房集团深耕湖湘16年载,精筑70余盘,累计开发面积超1000万㎡,成就“买好房,找长房”的市场口碑。
作为湖南本土最强的房地产开发国企,所开发的项目涉及到全长沙甚至是全省各个角落,被业界尊称为本土房企的龙头老大,颇受市场好评。
长沙轨道交通集团 成立于2006年,国有独资企业,注册资金高达50亿,现已成功建设运营的轨道交通有长沙1/2/3/4/5/号地铁线,长沙首条磁悬浮快线,长株潭城际轨道。

地段区位
长沙雨花区,植物园东,京港澳高速西侧

二、周边配套
交通
项目北接湘府路,南临时代阳光大道,西侧万家丽高架纵贯南北,东侧红旗路可直达城南
时代阳光大道:向西车行10分钟可达汽车南站,长株潭城际铁路

教育
项目南北两个地块各配建一个幼儿园,南地块东侧 自建 一所规模为102亩的九年制公办学校(雅礼实验毓秀小学+中学),24个班的小学,60个班的中学,业主子女可 配套入学

商业
项目自带1.7万方的风情商业街,位于南地块南侧和西侧,能够满足全家人生活,吃喝玩乐一步到位!
向南步行十分钟可达中建mall
北上车行10分钟可达保利mall,旭辉mall以及天虹ccmall
向西车行十分钟可达德思勤,红星商圈

休闲
项目北面毗邻河东片区唯一的国家级森林公园,140公顷的 天际岭国家森林公园 拥有超过3800多种的植物,建有亚热带最大的珍稀濒危植物保护区森林,覆盖率高达90%,是城市中非常稀缺的高富氧地区

长房·岭秀时代
长房·岭秀时代售楼处电话:400-112-0302【售楼中心】
咨询高峰期请耐心等待,预约来电尊享内部优惠,专业一对一热情服务,让您用专业眼光去买房。
开发商 :长沙长房地铁置业有限公司

产品 :70年产权普通住宅
交付标准 :毛坯
占地面积 :212360㎡
建筑面积 :681388㎡
容积率 :约2.8
绿化率 :40%
梯户比 : 两梯三户,两梯四户,洋房一梯两户
在售面积 :高层114-140-160平, 小高层183.05平,洋房136-230平
价格 :高层9600-11000,小高层11000,洋房11300-14300
E3栋❽字头整栋任选,8千多任选
总层高 :31层
总楼栋 :44栋
总户数 :3866 户
车位: 4084个
物业公司 :长房物业
物业费 : 高层2.4,洋房2.4,商业3.98 元/㎡/月
交房时间 :2024年5月 -2025年10月

长房·岭秀时代
长房·岭秀时代售楼处电话:400-112-0302【售楼中心】
咨询高峰期请耐心等待,预约来电尊享内部优惠,专业一对一热情服务,让您用专业眼光去买房。
户型和样板间
高层户型




长房·岭秀时代
长房·岭秀时代售楼处电话:400-112-0302【售楼中心】
咨询高峰期请耐心等待,预约来电尊享内部优惠,专业一对一热情服务,让您用专业眼光去买房。
小高层:

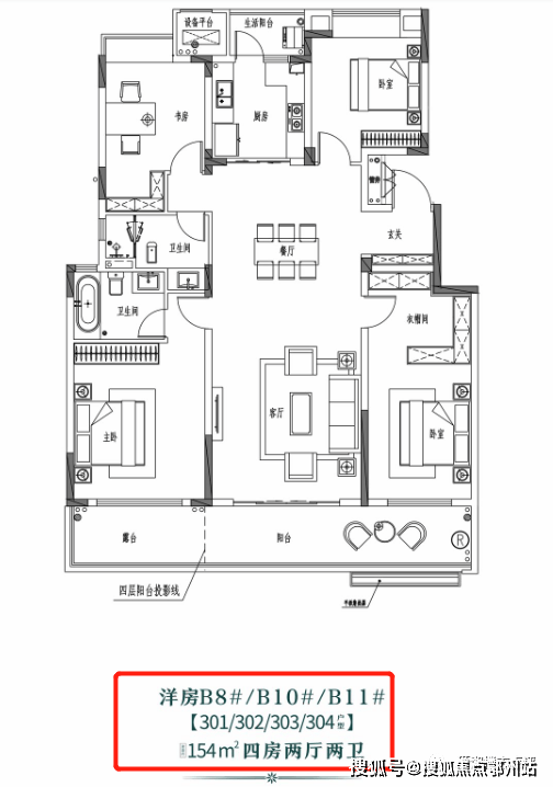
洋房户型




长房·岭秀时代
长房·岭秀时代售楼处电话:400-112-0302【售楼中心】
咨询高峰期请耐心等待,预约来电尊享内部优惠,专业一对一热情服务,让您用专业眼光去买房。


洋房B7B9#

洋房


长房·岭秀时代
长房·岭秀时代售楼处电话:400-112-0302【售楼中心】
咨询高峰期请耐心等待,预约来电尊享内部优惠,专业一对一热情服务,让您用专业眼光去买房。
郑重承诺:此房源信息真实有效,开发商直属全程营销策划,中介勿扰如有问题欢迎来电咨询,来电即可享受买房优惠!
1、本资料为要约邀请,不作为要约或承诺;买卖双方的权利义务以双方签订的《商品房买卖合同》及其补充协议、附件等书面文件为准;相关宣传内容不排除因政府相关规划、规定及出卖人分期规划、未能控制等原因发生变化;出卖人将!不定期对宣传材料进行修改,敬请留意最新资料。
2、图片来源于网络,仅作为推广示意使用;如涉及版权使用,请与我司联系。