招商一江璟城售楼处电话:400-112-0302【售楼中心】位于青山滨江CBD核心,是长江主轴与青山滨江商务区的交汇处,是新沟桥风情居住板块的居住舒适度最高的区域。项目周边有多个教育配套,包括青山区第一幼儿园和红钢城小学。
招商一江璟城
招商一江璟城售楼处电话:400-112-0302【售楼中心】
咨询高峰期请耐心等待,预约来电尊享内部优惠,专业一对一热情服务,让您用专业眼光去买房。
招商一江璟城地处武汉青山滨江CBD核心,和平大道与建设六路交汇处(地铁5号线红钢城站),扼守青山滨江和红钢城商圈核心地段,毗邻八大家商圈和建二商圈,周边华侨城,恒大,印力,万科,武地等大牌开发商汇聚于此,其商业配套与周边项目相互助推,共同成就武汉未来新兴商业消费圈。

【核心价值】
1、长江主轴·青山滨江核心板块
项目地址:位于和平大道与建设六路交汇处(地铁5号线红钢城站),扼守青山滨江商务区和红钢城商圈核心地段

青山区是建国以来伴随着武钢集团快速发展的中心城区,在武汉市主城区中绿化率最高,还是武汉投资150亿打造的海绵城市示范区,非常宜居。政府规划在青山三环与二环之间打造7.44平方公里的青山滨江商务区,承载城市吸附作用。招商一江璟城位于新沟桥风情居住板块,是整个滨江商务区居住舒适度最高的区域。
项目均价:2.1万
项目总体量:78万方
在售楼栋:B6
首付比例:首套3成,二套5成

产权:70年
交房时间:最快2021年12月底交房
层高:2.9米
贷款银行:中信/汉口/招商/农业/邮储/建行/渤海
绿化: 21%
容积率:5.44
车位比:1:1.2
车位费:800元/辆/月(租金),90元/月(管理费)
物业费:2.9元/㎡
公摊:B6:23%

招商一江璟城
招商一江璟城售楼处电话:400-112-0302【售楼中心】
咨询高峰期请耐心等待,预约来电尊享内部优惠,专业一对一热情服务,让您用专业眼光去买房。
3、王者学区C位·享15年一站式教育
项目配建青山区第一幼儿园(市级示范),划片红钢城小学(市级重点);近邻青山区目前仅有的两所示范重点中学:武汉市第四十九中学、另外中国高中教育50强、重点大学录取率超95%的武钢三中就在家门口。

4、邻地铁·升值潜力无限
地铁5号线预计今年底通车,项目距离地铁5号线红钢城站地铁口约300米,更享地铁物业升值潜力。

全维配套·凝萃繁华
三大商圈环伺:自带约5.3万方潮流商街,比邻武汉众圆广场、奥山世纪城、印象城购物中心,盛享一站式繁华体验。

三甲医院护航:武钢总医院、普仁医院等三甲医院环伺,为家人保驾护航。
三大公园醇享:约580米直达青山江滩公园,和平公园、青山公园环绕,享有城市内核天然大氧吧。

(青山江滩实景图)
中国物业服务TOP10·呵护品质生活
招商物业,拥有国家一级物业管理企业资质,业务遍布全国40多个城市和区,服务客户人数超百万,服务范围涵盖中高端住宅、城市综合体、商业地产等多种物业形态,2019年为武汉军运会赛事场馆提供服务保障;疫情期间,火速支援火神山医院修建,彰显央企担当。本着“以人为本、以客为先”的服务理念,使得其行业口碑长盛不衰。

招商一江璟城
招商一江璟城售楼处电话:400-112-0302【售楼中心】
咨询高峰期请耐心等待,预约来电尊享内部优惠,专业一对一热情服务,让您用专业眼光去买房。

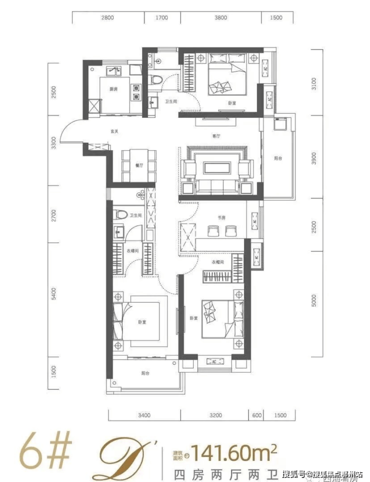
户型图讲解视频样板间图





招商一江璟城
招商一江璟城售楼处电话:400-112-0302【售楼中心】
咨询高峰期请耐心等待,预约来电尊享内部优惠,专业一对一热情服务,让您用专业眼光去买房。
郑重承诺:此房源信息真实有效,开发商直属全程营销策划,中介勿扰如有问题欢迎来电咨询,来电即可享受买房优惠!
1、本资料为要约邀请,不作为要约或承诺;买卖双方的权利义务以双方签订的《商品房买卖合同》及其补充协议、附件等书面文件为准;相关宣传内容不排除因政府相关规划、规定及出卖人分期规划、未能控制等原因发生变化;出卖人将!不定期对宣传材料进行修改,敬请留意最新资料。
2、图片来源于网络,仅作为推广示意使用;如涉及版权使用,请与我司联系。