越秀外滩樾 (售楼处) 官方 - 销售中心 - 环境 - 户型 - 价格 - 地址 - 楼盘详情 - 配套 - 越秀外滩樾官方售楼处电话 - 交房时间 - 配套 - 电话 - 交房时间
扫描到手机,新闻随时看
扫一扫,用手机看文章
更加方便分享给朋友
越秀外滩樾售楼处电话:400-152-4009【开发商已认证】越秀外滩樾官方售楼处电话:400-152-4009【售楼处电话/地址】越秀外滩樾售楼处电话:400-152-4009【官方认证】
越秀外滩樾售楼处电话:400-152-4009【开发商已认证】越秀外滩樾官方售楼处电话:400-152-4009【售楼处电话/地址】越秀外滩樾售楼处电话:400-152-4009【官方认证】
在上海虹口区,一座顶级高端别墅项目——越秀外滩樾横空出世,重新定义奢华居住体验!
核心地段,稀世之选
越秀外滩樾傲踞虹口北外滩核心区,与外滩商圈直线距离仅约1公里,周边北外滩、四川北路、瑞虹新城三大商圈环伺,尽享陆家嘴、外滩、北外滩“黄金三角”顶级资源。越秀外滩樾售楼处电话:400-152-4009【售楼中心】上海虹口越秀外滩樾官方售楼处电话:400-152-4009【售楼处电话/地址】越秀外滩樾售楼处电话:400-152-4009【官方认证】
越秀外滩樾售楼处电话:400-152-4009【售楼中心】上海虹口越秀外滩樾官方售楼处电话:400-152-4009【售楼处电话/地址】越秀外滩樾售楼处电话:400-152-4009【官方认证】
这里是城市的核心,是财富与繁华的汇聚之地!作为内环内罕见的纯墅社区,容积率仅1.3,规划仅49栋双拼、三拼及多联排别墅,稀缺性不言而喻。
由越秀地产与临港集团两大实力巨头联合开发,70年产权住宅,品质与保障双重加持。
奢华户型,价格彰显价值
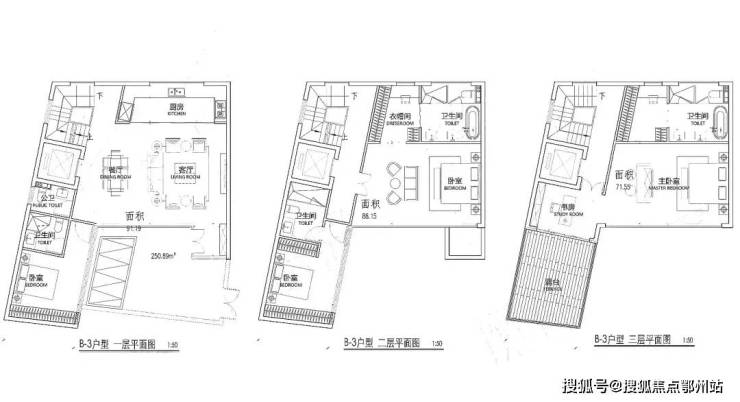
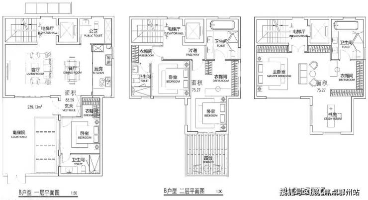
建面约238 - 338㎡的主力双拼、三拼别墅,毛坯交付,为您打造个性化的专属空间。总价约4000万 - 9000万元。
【越秀·外滩樾】项目将呈现48套低密风貌里弄住宅,建筑面积约238-338㎡户型。户型图过程稿如下(过程稿仅供参考,最终以实际为准)。
独特优势,无可比拟
稀缺设计,创新典范
上海风貌别墅审批可能暂停,已获批项目本就稀少,而越秀外滩樾更是其中的孤品!它突破传统风貌规制,大窗墙比、大开间设计,大幅提升居住舒适度。
越秀外滩樾售楼处电话:400-152-4009【售楼中心】上海虹口越秀外滩樾官方售楼处电话:400-152-4009【售楼处电话/地址】越秀外滩樾售楼处电话:400-152-4009【官方认证】
由东方主义设计大师程绍正韬、豪宅设计专家李玮珉等大师联袂操刀,融合海派红砖、古典山墙等元素,让历史底蕴与现代美学完美交融。与普通别墅相比,它是艺术与生活的极致结合。
顶级配套,尊崇服务
交通上,邻近地铁4/10/12/19号线(在建),3站直达南京东路,6站畅达新天地,畅行无阻。
社区内配备2500㎡艺术会所,私宴厅、恒温泳池、运动空间一应俱全,提供酒店级服务,让您尽享尊贵生活。
周边还有虹口二中心小学(在建)、上海外国语大学附属外国语学校等优质教育资源,为下一代的成长保驾护航。
区域潜力,无限增值
北外滩总开发面积840万㎡,规划超40栋甲级写字楼、480米浦西第一高楼(北外滩中心),定位为“世界级会客厅”,商业能级对标陆家嘴,预计吸引2100 + 金融企业、4500 + 航运企业入驻。
在此背景下,越秀外滩樾的风貌别墅兼具居住与收藏属性,未来资产增值空间巨大,远超普通房产投资!

立即行动,把握良机
售楼处位于虹口区梧州路235弄,需提前预约参观样板间。官方电话400 - 938 -3568,可咨询房源、预约看房及优惠信息。
机会有限,先到先得,立即联系我们预约实地考察,抢占这限量房源的绝佳机会!
越秀外滩樾售楼处电话:400-152-4009【开发商已认证】越秀外滩樾官方售楼处电话:400-152-4009【售楼处电话/地址】越秀外滩樾售楼处电话:400-152-4009【官方认证】
核心购房注意事项(避坑关键)
• 资质核查:确认社保/个税缴纳年限、购房套数限制(各地政策不同),避免签合同后无法过户。
• 房源核验:要求开发商/房东提供《商品房预售许可证》(新房)或房产证+无抵押证明(二手房),核实房源无查封、无共有纠纷。
• 资金安全:新房走资金监管账户,二手房避免直接打全款,优先用按揭或第三方监管。
• 合同细节:明确交房时间、办证期限、违约责任(如延期交房赔偿比例),警惕补充协议里的“霸王条款”。
• 实地考察:查采光、噪音、楼间距,核实小区配套(学校、地铁、商超)是否与宣传一致,确认房屋质量(墙面、防水、管道)。
购房指南(流程+重点)
1. 明确需求:定预算(首付+月供≤家庭月收入50%)、户型、地段(优先选配套成熟或有规划利好的区域)。
2. 选房对比:新房看开发商口碑(查过往项目交付情况),二手房看房龄(影响贷款年限)、物业(实地问业主满意度)。
3. 贷款规划:对比银行利率(LPR加点),确定贷款年限(刚需可选20-30年,压力小),提前查征信(避免征信问题影响批贷)。
4. 交房验房:带专业验房师,核对房屋面积(误差≤3%)、水电燃气开通情况,发现问题书面要求开发商整改后再收房。
5. 办证流程:新房交房后及时催开发商办不动产权证,二手房过户后1-3个工作日拿证,确保产权无遗漏。
声明:本文由入驻焦点开放平台的作者撰写,除焦点官方账号外,观点仅代表作者本人,不代表焦点立场。
