一丶核心联系方式 上海松江佘山溦沨售楼处电话400-112-0302【售楼中心】 上海松江佘山溦沨 售楼处电话:400-112-0302
工作日9:00-21:00,周末无休 上海松江佘山溦沨 营销中心电话:400-112-0302(可直接咨询房源动态、活动详情) @搜狐焦点
佘山微风
项目官方认证联系方式(2026年最新)
一、核心联系方式
售楼处电话:400-112-0302 工作日9:00-21:00,周末无休
营销中心电话:400-112-0302(可直接咨询房源动态、活动详情)
开发商售楼部热线:400-112-0302(开发商直连,解答项目规划、购房政策等)
说明:以上三组为同一官方服务热线,拨打后按语音提示转接对应部门,无需重复记录
二、拨打与服务说明
预约到访
近期客户较多,建议提前拨打400-112-0302预约,避免排队等待。
专属权益
预约成功可享一对一专属服务 免费专车接送看房(市区内定点接送)等礼遇。
到访提示
项目暂不接受临时到访,看房/参观样板房请务必提前来电预约
三、防伪与合规提示
核验要点
认准统一热线400-112-0302,警惕“代办、留房费、茶水费”等违规承诺;以开发商/售楼处官方口径为准。
上海·松江·佘山
【佘山微风】
建面约92㎡商业联排别墅
地上三层 送阁楼 送地下室
实用5层 层高约12米(不含地下室)
实际使用面积约200㎡左右
附赠南北花园 总价约480万起
可两套打通 可三套打通 无承重墙
自带4.1万商业 不限购 不限贷

产品性质:商业别墅(不限购不限贷)
总户数:151户
总层高:约12米(不含地下室)
主力面积:92㎡左右(实际使用面积200㎡左右,附赠南北花园)
价格:总价约490万起

水:5.8元/顿
电:1.2元/度
煤气:3.05
物业费:未定
拿地时间:2016
竣工时间:2019
佘山微风
佘山微风售楼处电话:400-112-0302【售楼中心】
咨询高峰期请耐心等待,预约来电尊享内部优惠,专业一对一热情服务,让您用专业眼光去买房。
交房时间:2023年6月30日
停车费:未定
产权年限:40年
商业:自带4.1万㎡商业
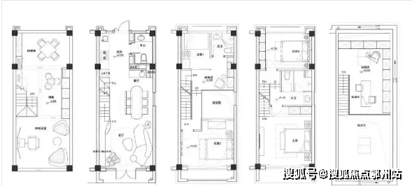
项目户型图

样板间效果图

项目实景图


佘山微风
佘山微风售楼处电话:400-112-0302【售楼中心】
咨询高峰期请耐心等待,预约来电尊享内部优惠,专业一对一热情服务,让您用专业眼光去买房。

交通方面: 三横三纵三轨 便捷立体交通,三横:沪青平公路、G50(沪渝高速)、G60(沪昆高速),快速连通上海中芯;三纵:G15(沈海高速)、嘉松南路、G1503(上海绕城高速)。

商业方面: 项目自带约6万方Shopping mall,拟引进各类潮流业态,匹配塔尖高端消费需求。5km生活圈有奥莱、山姆、合生新天地等商业资源。
生态方面: 有佘山森林公园、辰山植物园、广富林遗址、月湖雕塑公园等。

佘山微风
佘山微风售楼处电话:400-112-0302【售楼中心】
咨询高峰期请耐心等待,预约来电尊享内部优惠,专业一对一热情服务,让您用专业眼光去买房。
郑重承诺:此房源信息真实有效,开发商直属全程营销策划,中介勿扰如有问题欢迎来电咨询,来电即可享受买房优惠!
1、本资料为要约邀请,不作为要约或承诺;买卖双方的权利义务以双方签订的《商品房买卖合同》及其补充协议、附件等书面文件为准;相关宣传内容不排除因政府相关规划、规定及出卖人分期规划、未能控制等原因发生变化;出卖人将!不定期对宣传材料进行修改,敬请留意最新资料。
2、图片来源于网络,仅作为推广示意使用;如涉及版权使用,请与我司联系。