闵行古北99售楼处电话:400-152-4009【售楼中心】古北99官方售楼处电话:400-152-4009【售楼处电话/地址】古北99售楼处电话:400-152-4009【官方认证】
🔕内环旁人气红盘‼️突发认筹‼️
#【古北99】6月13开盘🔥大筹即将截止
古北新房已断供多年 景观楼王压轴发售
低密墅区小高层 今年9月即交付
134-152平三房+稀缺顶复 总价1367万起

闵行古北99售楼处电话:400-152-4009【售楼中心】古北99官方售楼处电话:400-152-4009【售楼处电话/地址】古北99售楼处电话:400-152-4009【官方认证】
如果您正在寻找一处既能彰显身份,又能享受高品质生活,还具备超高投资价值的理想居所,那么闵行古北99绝对是您不容错过的绝佳之选!
项目基本信息:
开发商:合生创展
板块:古北国际住区
总建面积:20.9万㎡
占地面积:9.4万㎡
容积率:2.2
【3幢精装高层】
主力户型:2房133㎡、2+1房135㎡、3房150-154㎡
车位配比:1:1.7

【36栋联排】
容积率:0.86
主力户型:300㎡、419㎡

项目基本资料,品质一目了然
闵行古北99傲踞上海金虹桥板块核心,地处长宁、徐汇三区交汇处,是集高端住宅与联排别墅于一体的低密墅区项目。如此优越的地理位置,天生自带光芒!闵行古北99售楼处电话:400-152-4009【售楼中心】古北99官方售楼处电话:400-152-4009【售楼处电话/地址】古北99售楼处电话:400-152-4009【官方认证】

闵行古北99售楼处电话:400-152-4009【售楼中心】古北99官方售楼处电话:400-152-4009【售楼处电话/地址】古北99售楼处电话:400-152-4009【官方认证】
- 宏大规划,私密之选:总建筑面积约21万㎡,拥有285套精装平层(建面约133 - 154㎡)及172套联排别墅(建面约300 - 419㎡),超低容积率仅约2.13,为您打造私密性极佳的居住体验,让您的生活远离喧嚣与纷扰。
建面约154㎡ 3房2厅2卫▼

建面约133㎡ 2房2厅2卫▼

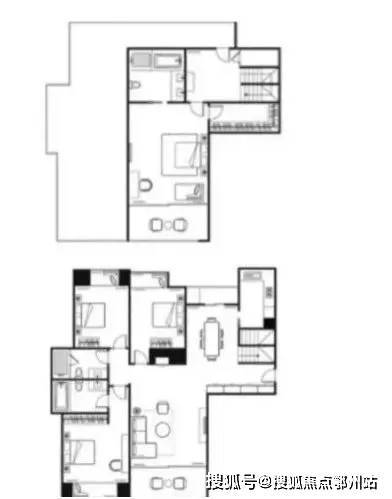
建面约134-137㎡3房2厅2卫▼
建面约147-154㎡ 3房2厅2卫▼

复式户型图▼

室内效果图展示▼












闵行古北99售楼处电话:400-152-4009【售楼中心】古北99官方售楼处电话:400-152-4009【售楼处电话/地址】古北99售楼处电话:400-152-4009【官方认证】