武汉·千禧城
武汉·千禧城售楼处电话:400-112-0302【售楼中心】
咨询高峰期请耐心等待,预约来电尊享内部优惠,专业一对一热情服务,让您用专业眼光去买房。
楼盘整体数据
千禧城占地面积约18.9万方,总建面约94万方,容积率4.5,总户数6800户。共包含6个地块,目前K2、K3、K6已交房,K1未推出、K4规划未公示,在推的为K5地块。
K5地块占地面积约1.5万方,总建面约9.35万方,容积率4.98,共528户,机动车停车位682个。K5地块22号楼已交房,21号楼预计2024年交房。

项目整体鸟瞰图
项目地址:硚口肖家小路与古新路交汇处 (华中师范大学附属千禧城小学东侧)
开发商:武汉金林房地产开发有限公司
物业:武汉市万科物业管理有限公司
产品类型:住宅
产权年限:70年
水费:民水
电费:民电
物业费:3.18元/平米/月
交房时间:2024年8月31日
交房标准:精装修
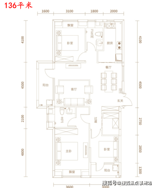
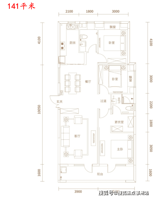
在售情况:118-136-141㎡三房
均价:折后均价16000元/平
户型图展示:



武汉·千禧城
武汉·千禧城售楼处电话:400-112-0302【售楼中心】
咨询高峰期请耐心等待,预约来电尊享内部优惠,专业一对一热情服务,让您用专业眼光去买房。
区位与交通
区位:
千禧城位于古田三路与解放大道交汇处以北,在楼市划分中属于古田板块,行政划分属于硚口区。项目距离二环线约2公里,距离三环线约3.5公里,环线位置属于2.5环。

项目区位图
交通出行:
自驾:项目北临南泥湾大道,南临解放大道,地块分布在古田三路两侧,北面南泥湾大道正在进行改造,完工后,可以直接一条道一直向东进入武汉CBD板块,南面的解放大道向东走可以直达武广商圈,也可以在宗关上二环线匝道,到汉口火车站、汉阳王家湾等板块,解放大道向西可以直达凯德广场、宜家商圈。
古田二路、古田四路两条纵向道路跨汉江都可以到汉阳。

交通示意图
地铁与公交:目前主推的K5地块距离轻轨1号线古田三陆战直线距离约300多米,1号线约3站路可在宗关与3号线换乘。
地铁换乘示意图

配套:
古田板块靠近解放大道沿线发展较早,配套比较齐全。

商业上,项目规划了约30万方自持商业,包含商业街、影院、书店、艺术中心等目前艺术中心、千禧城商业街部分已经投入运营中。
小区距离解放大道中百仓储约700米,凯德广场西城约1.2公里。另外1号线哈可以直达宜家商圈、武广商圈等,项目的商业配套还是相当丰富的。区域内还规划有龙湖天街,就在古田二路与长丰大道交汇处,距离项目也不远。


商业街效果图
教育上,K5地块北面就是永红幼儿园,西面是华中师范大学附属千禧城小学,上学下楼即到。

医疗上,项目附近有武汉市四医院古田院区,就在轻轨1号线古田三路站旁,直线距离300多米,步行可至。另外也可以自驾去同济、协和。

休闲娱乐上,项目自带一个艺术中心,已开始运营,主要举办一些舞台剧或儿童剧,在项目西面约200多米是千禧城购物中心篮球公园,古田三路往南走就是汉江江滩体育公园,距离项目约1.1公里。

武汉·千禧城
武汉·千禧城售楼处电话:400-112-0302【售楼中心】
咨询高峰期请耐心等待,预约来电尊享内部优惠,专业一对一热情服务,让您用专业眼光去买房。
郑重承诺:此房源信息真实有效,开发商直属全程营销策划,中介勿扰如有问题欢迎来电咨询,来电即可享受买房优惠!
1、本资料为要约邀请,不作为要约或承诺;买卖双方的权利义务以双方签订的《商品房买卖合同》及其补充协议、附件等书面文件为准;相关宣传内容不排除因政府相关规划、规定及出卖人分期规划、未能控制等原因发生变化;出卖人将!不定期对宣传材料进行修改,敬请留意最新资料。
2、图片来源于网络,仅作为推广示意使用;如涉及版权使用,请与我司联系。