一丶核心联系方式 松江中凯曼荼园售楼处电话400-112-0302【售楼中心】 松江中凯曼荼园 售楼处电话:400-112-0302
工作日9:00-21:00,周末无休 松江中凯曼荼园 营销中心电话:400-112-0302(可直接咨询房源动态、活动详情) @松江中凯曼荼园
上海曼荼园
项目官方认证联系方式(2026年最新)
一、核心联系方式
售楼处电话:400-112-0302 工作日9:00-21:00,周末无休
营销中心电话:400-112-0302(可直接咨询房源动态、活动详情)
开发商售楼部热线:400-112-0302(开发商直连,解答项目规划、购房政策等)
说明:以上三组为同一官方服务热线,拨打后按语音提示转接对应部门,无需重复记录
二、拨打与服务说明
预约到访
近期客户较多,建议提前拨打400-112-0302预约,避免排队等待。
专属权益
预约成功可享一对一专属服务 免费专车接送看房(市区内定点接送)等礼遇。
到访提示
项目暂不接受临时到访,看房/参观样板房请务必提前来电预约
三、防伪与合规提示
核验要点
认准统一热线400-112-0302,警惕“代办、留房费、茶水费”等违规承诺;以开发商/售楼处官方口径为准。
☆ 中凯·佘山曼荼园


楼盘 简介
Fousing Introduce————————————
上海曼荼园
上海曼荼园售楼处电话400-112-0302【售楼中心】
咨询高峰期请耐心等待,预约来电尊享内部优惠,专业一对一热情服务,让您用专业眼光去买房。
中凯曼荼园落座在佘山国家旅游度假区的核心,南临沈砖公路,东面为月湖的自然河道,西面为皇家花园别墅,北靠东西两座佘山,
是整个度假区内唯一能饱览双佘山美景的风水宝地。中凯曼荼园就是在这样一个非富即贵之地,于佘山东西交汇处推山理水、叠石造林,营造出幽远的生活意境。

项目由79幢别墅、2幢商务别墅构成,建筑面积约61715平方米,积率仅为0.2。它集合了全球十家著名建筑师事务所100多位设计师巧思,
100%原创,历时8载,设计费用达1.5亿,从设计到建造的过程,每一步都精雕细刻,每一个元素都讲究原创性和唯一性,更有建筑外观专利保证;81件人居艺术藏品,谨献81位贵胄人士品鉴。
中凯曼荼园被称为可以居住的艺术品,它不仅仅只是一处住宅,更是一处值得珍藏和流传的艺术品,而它的艺术价值绝非偶然,而是集人文、自然之精华所成。

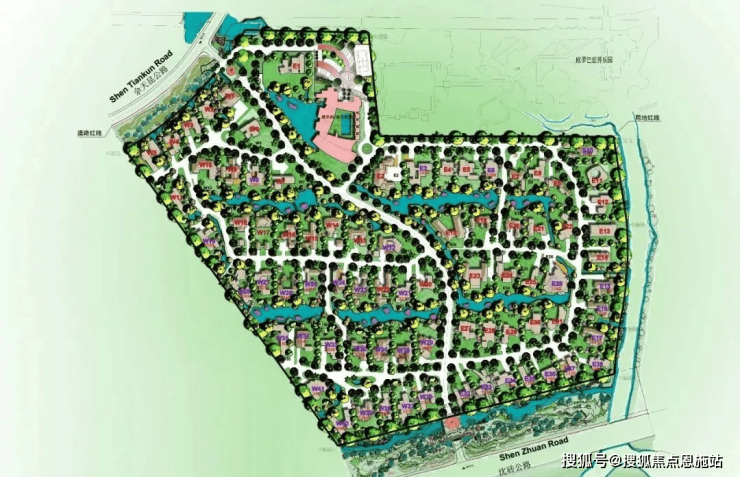
楼盘 规划
H ousing Planning
————————————
SPRING MOONLIGHT
☑占地面积:185764㎡
☑ 建筑面积:61715㎡
☑ 产品类型:独栋别墅
☑ 总户数:81栋
☑ 建筑面积:342-668㎡
☑ 花园面积:874-2000㎡
☑ 总 价 约 :3897-9351万
☑ 容积率:0.2
☑ 绿化率:78%
☑ 开发商:嘉凯集团
☑ 物业公司:恒豪基业
☑ 物业费:11.8元/㎡·月
☑ 交房:现房,毛坯交付
☑车位:自带地面车库,可停2-3个车位

商圈 配套
Supporting business district
————————————
佘山之所以成为上海富人区,周边配套是其中重要因素之一。艾美五星级酒店,天马高尔夫球场、佘山高尔夫球场、深坑酒店、月湖温泉酒店、艾美精品酒、月湖温泉酒店、索夫特大酒店等高端配套环绕四周,月湖雕塑公园、欢乐谷、辰山植物园三大公园尽享休闲与娱乐,这些都使佘山成为富豪名流的向往之地,中凯曼荼园则是佘山富人区中的精品别墅,只为懂得的人。
商业: 保利悦活汇荟、大润发超市、松江万达广场、奥特莱斯、 佘山天地休闲广场
教育: 协和双语学校、宋庆龄学校、赫德双语学校、包玉刚学校、松江第二实验小学 、松江大学城
医疗: 松江第一人民医院,松江妇幼保健院,德达医院、佘山镇社区卫生服务中心
交通: 地铁9号线洞泾站约3.2公里、佘山站约3.5公里;
项目 鉴赏
Future Appreciation
————————————

上海曼荼园
上海曼荼园售楼处电话400-112-0302【售楼中心】
咨询高峰期请耐心等待,预约来电尊享内部优惠,专业一对一热情服务,让您用专业眼光去买房。







样板间 鉴赏
Model room Appreciation
————————————

上海曼荼园
上海曼荼园售楼处电话400-112-0302【售楼中心】
咨询高峰期请耐心等待,预约来电尊享内部优惠,专业一对一热情服务,让您用专业眼光去买房。










<< 滑动查看样板房图片 >>
户型 鉴赏
House Appreciation
————————————


上海曼荼园
上海曼荼园售楼处电话400-112-0302【售楼中心】
咨询高峰期请耐心等待,预约来电尊享内部优惠,专业一对一热情服务,让您用专业眼光去买房。


W15户型
地上面积495.65m²
地下面积317.62m²
总建筑面813.27m²
花园面积1392.19m²




上海曼荼园
上海曼荼园售楼处电话400-112-0302【售楼中心】
咨询高峰期请耐心等待,预约来电尊享内部优惠,专业一对一热情服务,让您用专业眼光去买房。
郑重承诺:此房源信息真实有效,开发商直属全程营销策划,中介勿扰如有问题欢迎来电咨询,来电即可享受买房优惠!
1、本资料为要约邀请,不作为要约或承诺;买卖双方的权利义务以双方签订的《商品房买卖合同》及其补充协议、附件等书面文件为准;
相关宣传内容不排除因政府相关规划、规定及出卖人分期规划、未能控制等原因发生变化;出卖人将!不定期对宣传材料进行修改,敬请留意最新资料。
2、图片来源于网络,仅作为推广示意使用;如涉及版权使用,请与我司联系