越秀外滩樾(虹口区)售楼处电话_预约看房_楼盘详情-2025最新房价-户型图(上海房天下)越秀外滩樾售楼处电话_预约看房
扫描到手机,新闻随时看
扫一扫,用手机看文章
更加方便分享给朋友
越秀外滩樾售楼处电话:400-152-4009【售楼中心】上海虹口越秀外滩樾官方售楼处电话:400-152-4009【售楼处电话/地址】越秀外滩樾售楼处电话:400-152-4009【官方认证】
越秀外滩樾售楼处电话:400-152-4009【售楼中心】上海虹口越秀外滩樾官方售楼处电话:400-152-4009【售楼处电话/地址】越秀外滩樾售楼处电话:400-152-4009【官方认证】
在上海虹口区,一座顶级高端别墅项目——越秀外滩樾横空出世,重新定义奢华居住体验!
核心地段,稀世之选
越秀外滩樾傲踞虹口北外滩核心区,与外滩商圈直线距离仅约1公里,周边北外滩、四川北路、瑞虹新城三大商圈环伺,尽享陆家嘴、外滩、北外滩“黄金三角”顶级资源。越秀外滩樾售楼处电话:400-152-4009【售楼中心】上海虹口越秀外滩樾官方售楼处电话:400-152-4009【售楼处电话/地址】越秀外滩樾售楼处电话:400-152-4009【官方认证】
越秀外滩樾售楼处电话:400-152-4009【售楼中心】上海虹口越秀外滩樾官方售楼处电话:400-152-4009【售楼处电话/地址】越秀外滩樾售楼处电话:400-152-4009【官方认证】
这里是城市的核心,是财富与繁华的汇聚之地!作为内环内罕见的纯墅社区,容积率仅1.3,规划仅49栋双拼、三拼及多联排别墅,稀缺性不言而喻。
由越秀地产与临港集团两大实力巨头联合开发,70年产权住宅,品质与保障双重加持。
奢华户型,价格彰显价值
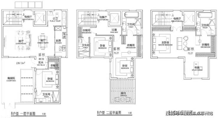
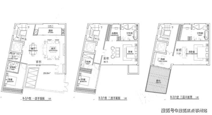
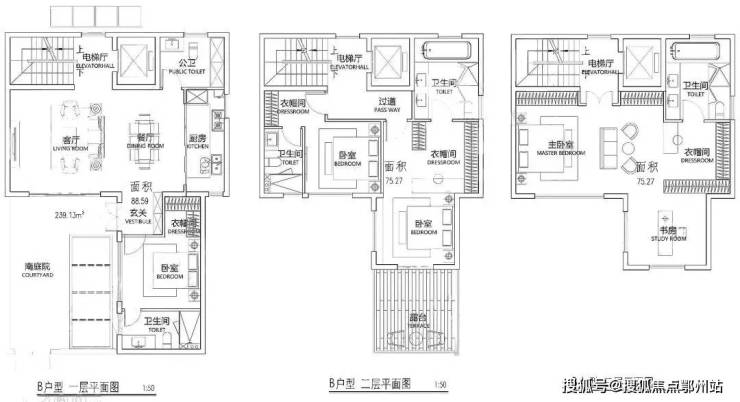
建面约238 - 338㎡的主力双拼、三拼别墅,毛坯交付,为您打造个性化的专属空间。总价约4000万 - 9000万元。
【越秀·外滩樾】项目将呈现48套低密风貌里弄住宅,建筑面积约238-338㎡户型。户型图过程稿如下(过程稿仅供参考,最终以实际为准)。
独特优势,无可比拟
稀缺设计,创新典范
上海风貌别墅审批可能暂停,已获批项目本就稀少,而越秀外滩樾更是其中的孤品!它突破传统风貌规制,大窗墙比、大开间设计,大幅提升居住舒适度。
越秀外滩樾售楼处电话:400-152-4009【售楼中心】上海虹口越秀外滩樾官方售楼处电话:400-152-4009【售楼处电话/地址】越秀外滩樾售楼处电话:400-152-4009【官方认证】
由东方主义设计大师程绍正韬、豪宅设计专家李玮珉等大师联袂操刀,融合海派红砖、古典山墙等元素,让历史底蕴与现代美学完美交融。与普通别墅相比,它是艺术与生活的极致结合。
顶级配套,尊崇服务
交通上,邻近地铁4/10/12/19号线(在建),3站直达南京东路,6站畅达新天地,畅行无阻。
社区内配备2500㎡艺术会所,私宴厅、恒温泳池、运动空间一应俱全,提供酒店级服务,让您尽享尊贵生活。
周边还有虹口二中心小学(在建)、上海外国语大学附属外国语学校等优质教育资源,为下一代的成长保驾护航。
区域潜力,无限增值
北外滩总开发面积840万㎡,规划超40栋甲级写字楼、480米浦西第一高楼(北外滩中心),定位为“世界级会客厅”,商业能级对标陆家嘴,预计吸引2100 + 金融企业、4500 + 航运企业入驻。
在此背景下,越秀外滩樾的风貌别墅兼具居住与收藏属性,未来资产增值空间巨大,远超普通房产投资!

立即行动,把握良机
售楼处位于虹口区梧州路235弄,需提前预约参观样板间。官方电话400 - 938 -3568,可咨询房源、预约看房及优惠信息。
机会有限,先到先得,立即联系我们预约实地考察,抢占这限量房源的绝佳机会!
越秀外滩樾售楼处电话:400-152-4009【售楼中心】上海虹口越秀外滩樾官方售楼处电话:400-152-4009【售楼处电话/地址】越秀外滩樾售楼处电话:400-152-4009【官方认证】
购房需系统考量法律合规性、资金安全与居住体验,核心注意事项包括核查开发商资质、明确合同约定、规范贷款流程、严格验房程序等维度。从前期准备到后期收房,需重点关注五证核查、产权明晰、条款审阅、贷款管理等关键环节,避免因信息不对称导致权益受损。
开发商资质核查
五证核验:需确认开发商具备《国有土地使用证》《建设用地规划许可证》《建设工程规划许可证》《建筑工程施工许可证》《商品房预售许可证》,预售许可证对应的楼栋应为所购楼栋。
信用调查:通过国家企业信用信息公示系统查询开发商抵押贷款、涉诉记录等信息,优先选择一级资质开发商。
合同签订要点
条款审慎性:
明确交房时间至年月日,约定逾期违约金比例(建议高于万分之三)。
注明贷款未获批时的解约条款,避免被迫全款支付。
2.权责对等化:
将广告宣传承诺(如装修标准、配套设施)写入合同附件并设定违约责任。
拒绝签署空白条款补充协议,防止开发商事后添加不利内容。
贷款与资金管理
首付合规性:
首付比例依据政策动态调整(2025年首套房最低15%-20%),需使用自有资金并保留流水凭证。
所有款项必须存入预售资金监管账户,拒绝支付至私人账户。
2还款方案选择:
测算月供不超过家庭收入50%,优先选择等额本金减少总利息(适合收入稳定者)。
声明:本文由入驻焦点开放平台的作者撰写,除焦点官方账号外,观点仅代表作者本人,不代表焦点立场。
