保利·姑苏臻悦
保利·姑苏臻悦售楼处电话:400-112-0302【售楼中心】
咨询高峰期请耐心等待,预约来电尊享内部优惠,专业一对一热情服务,让您用专业眼光去买房。
纯叠墅!仅8栋
建发金门47号地块项目,即,苏地2024-WG-Z47号地块,位于姑苏区金阊街道金门路北,馨泓路东地块,4月2日,建发以总价53104万元竞得,成交楼面价26054元/平,溢价率23.77%。

该项目的地块用途为城镇住宅用地,占地面积17723.6平。
根据规划信息,项目的总建筑面积35531.39平, 容积率1.15.
根据规划,项目拟建 8栋4-6F住宅,其中,1栋4F住宅、7栋6F住宅。
4F住宅:4#;
6F住宅:1#、2#、3#、5#、6#、7#、8#;

保利·姑苏臻悦
保利·姑苏臻悦售楼处电话:400-112-0302【售楼中心】
咨询高峰期请耐心等待,预约来电尊享内部优惠,专业一对一热情服务,让您用专业眼光去买房。
项目的容积率为1.15,为低密住宅社区;
2,项目为纯叠墅,分为4F叠墅和6F叠墅,6F叠墅为主;
3,项目公布的效果图来看,外立面也是以大面积玻璃窗为主;

项目公布的立面图上来看,6F叠墅的一层层高都是3.4米。二层则是3.2米;

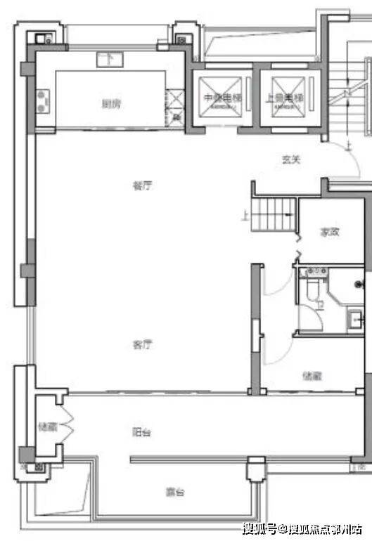
项目公示了3#的户型标准层示意图。



来看看下叠的规划户型图!

保利·姑苏臻悦
保利·姑苏臻悦售楼处电话:400-112-0302【售楼中心】
咨询高峰期请耐心等待,预约来电尊享内部优惠,专业一对一热情服务,让您用专业眼光去买房。

整体来看,户型设计是很一般的,一层是动区,做了个带暗卫的书房,把阳台改造进去可以做个套房,但是因为一楼只有一个卫生间,房间的私密性会比较差。
二层也是一个带暗卫的卧室,客厅上空可以改造,北面还有一个卫生间和卧室!
中叠的一层平面图也公布了!

比较有亮点的是南向除了阳台,还有一个露台,此外,还有一个储藏间!
周边界面不错!板块还有新项目
建发47号地块位于姑苏区金阊街道金门路北、馨泓路东。位置上来看其实还不错,周边基本都是住宅小区,居住氛围比较浓。而且项目周边还有一个项目在售,一个项目待售,算是姑苏区存货比较充足的板块。

周边配套来看,目前也是比较齐全的。
交通上,小区南面就是金门路,直接连接新区。西面靠近喜欢快速路,也是东西向大动脉。小区距离1号线桐泾公园站约1公里,往东一站可以换乘2号线。

商业上面,北面是来客茂时尚中心,吃喝玩乐可以一站式满足,此外,南面有彩香一村菜场,日常生活也是比较方便的!大型商业设施上面,东面是石路商圈,有天虹商场、石路步行街、华贸中心(在建)等。
教育设施上面,小区南面有金阊外国语实验学校、苏州市一中分校、第五中学等!
此外,项目周边还有金阊医院、苏大附二院等设施。
板块房价来看,其实很久没有别墅类入市了,板块上一个入市的项目是保利姑苏臻悦,该项目是洋房+小高层的设计,备案均价在4.7-4.8W,如果参照这个价格,你觉得这个项目值吗?
另外,值得关注的是,同板块内另一个项目瑞嘉发展金门8号地块项目,即,苏地2024-WG-Z08号地块在最近也发布了规划公示,根据规划,项目拟建5栋3-7F住宅,是联排+洋房的配置,与建发47号地块是有差异的,这两个项目,你会选谁呢?
保利·姑苏臻悦
保利·姑苏臻悦售楼处电话:400-112-0302【售楼中心】
咨询高峰期请耐心等待,预约来电尊享内部优惠,专业一对一热情服务,让您用专业眼光去买房。
郑重承诺:此房源信息真实有效,开发商直属全程营销策划,中介勿扰如有问题欢迎来电咨询,来电即可享受买房优惠!
1、本资料为要约邀请,不作为要约或承诺;买卖双方的权利义务以双方签订的《商品房买卖合同》及其补充协议、附件等书面文件为准;相关宣传内容不排除因政府相关规划、规定及出卖人分期规划、未能控制等原因发生变化;出卖人将!不定期对宣传材料进行修改,敬请留意最新资料。
2、图片来源于网络,仅作为推广示意使用;如涉及版权使用,请与我司联系。