上海虹口上豪大厦
上海虹口上豪大厦售楼处预约热线:400-112-0302【24小时预约热线】
上海虹口上豪大厦丨楼盘详情丨价格丨更多优惠丨机不可失丨欢迎致电丨诚邀品鉴
上海虹口上豪大厦售楼处电话丨售楼处位置丨特价房丨工抵房丨剩余房源丨户型图丨最新消息
温馨提示:看房需提前预约,感谢您的配合!


上豪大厦位于邯郸路,松花江路口。由一幢18层小高层组成,正对复旦大学校舍,位居大柏树商贸区核心。周边生活设施齐全完善,交通方便快捷。
项目区位图


上海虹口上豪大厦
上海虹口上豪大厦售楼处预约热线:400-112-0302【24小时预约热线】
上海虹口上豪大厦丨楼盘详情丨价格丨更多优惠丨机不可失丨欢迎致电丨诚邀品鉴
地铁口18号线复旦大学站
带煤气、精装修交付,拎包入住
毗邻高登学府复旦大学~人文环境优越
高层景观、繁华似锦、尽收眼底
项目参数

项目地址:邯郸路
产权类型:办公楼
竣工时间:1999年
土地时间:1999-2049年
产权年限:50年
总 层 高 :18层
梯 户 比:2梯6户
交付标准:精装修含软配
层 高:3米
物 业 费:4元/月/平,
电 费:1.23元/KW,
燃 气 费:3.77元,
水 费:5.5元/T
停 车 位:800元/月
项目外景


周边配套

交通配置:
地铁18号线复旦大学站300米
18/10号国权路站1.3KM
中环上闸口200米、内环上闸口1.5公里
公交960路、139路、329路、405路、59路

周边商场:
大润发 、绿色米兰奥特莱斯、城市奥特莱斯,九龙方生活广场,金储广场,
紫金广场,万达、合生汇、巴黎春天、百联又一城、万达广场、悠迈生活广场

上海虹口上豪大厦
上海虹口上豪大厦售楼处预约热线:400-112-0302【24小时预约热线】
上海虹口上豪大厦丨楼盘详情丨价格丨更多优惠丨机不可失丨欢迎致电丨诚邀品鉴



教育配套:
复旦大学、同济大学、上海财经大学、上海体育学院等等品牌学府

上海虹口上豪大厦
上海虹口上豪大厦售楼处预约热线:400-112-0302【24小时预约热线】
上海虹口上豪大厦丨楼盘详情丨价格丨更多优惠丨机不可失丨欢迎致电丨诚邀品鉴
医疗配套:
杨浦区控江医院、三甲交大附属新华医院、第二军医大学东方肝胆医院、长海医院、市东医院、上海肺科医院、杨浦中心医院、上海市第一人民医院



周边银行: 浦发银行、上海银行、工商银行
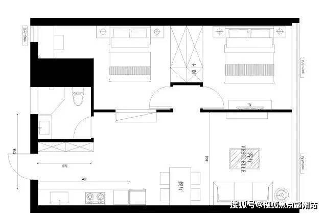
在售户型图


样板房照片







上海虹口上豪大厦
上海虹口上豪大厦售楼处预约热线:400-112-0302【24小时预约热线】
上海虹口上豪大厦丨楼盘详情丨价格丨更多优惠丨机不可失丨欢迎致电丨诚邀品鉴
上海虹口上豪大厦售楼处电话丨售楼处位置丨特价房丨工抵房丨剩余房源丨户型图丨最新消息
温馨提示:看房需提前预约,感谢您的配合!