蓝天湖岸售楼处电话:400-112-0302【售楼中心】蓝天湖岸位于汉阳墨水湖畔,主打临湖豪宅,首付126万起,2021年12月交房,3栋住宅,179-185平四房,均价23500元/平。
蓝天湖岸
蓝天湖岸售楼处电话:400-112-0302【售楼中心】
咨询高峰期请耐心等待,预约来电尊享内部优惠,专业一对一热情服务,让您用专业眼光去买房。
基础信息
首套首付3成 二套首付7成
楼盘地址:汉阳区墨水湖公园(1号门)环湖绿道120米
占地面积: 约1.2万方
建筑面积: 约4.9万方
交房时间:2021年12月
总户数:122户
车位数:480个
车位配比:1:1.8
容积率:2.91
公摊:22%
物业费:待定
物业公司:武汉鱼水情物业管理有限公司
开发商:湖北蓝天置业有限公司
蓝天湖岸位于武汉二环边,靠近墨水湖,是一个一线临湖住宅。项目体量不大,只有3栋住宅,全部是板楼设计,预计2021年12月交房,该项目购房门槛较高,首付126万起,算是主城区临湖豪宅,适合终极置业。
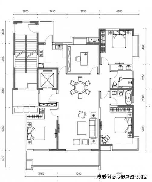
楼栋和户型
蓝天湖岸由3栋住宅组成,其中1号楼不对外卖,2、3号楼待售。从楼栋位置来看, 3号楼是正南北朝向,采光较好,且东南面为墨水湖,景观视野好;2号楼是东南朝向,看湖效果最好,但采光没有3号楼好。项目预计8月首推3号楼179、185平。

效果图 | 蓝天湖岸楼栋
待售楼栋:
3号楼 西边32层/东边29层 二梯二户 2个单元
待售户型:
179平四房、185平四房
均价:
23500元/平
(含3500元/平装修 地暖+新风+中央空调)
户型展示
179平四室两厅两卫

户型点评:179平为四房户型,南北通透,自带南向8.65米超大阳台,可俯瞰墨水湖景观。独门独户的设计,更增加了豪宅居住感,首付门槛126万,总价420万。
185平四房两厅两卫

户型点评:185平同样是四房设计,位于3号楼两头,南北通透,自带8.65米超大阳台,景观视野好。该户型主卧带有浴缸、转角飘窗,私密性强;同时可优化空间较大,包含电梯前室、厨房连接的空间等,首付门槛130万,总价435万。
蓝天湖岸
蓝天湖岸售楼处电话:400-112-0302【售楼中心】
咨询高峰期请耐心等待,预约来电尊享内部优惠,专业一对一热情服务,让您用专业眼光去买房。
周边配套
区位:项目 位于墨水湖北岸,距离二环线约500米,算是汉阳中心。项目北面是规划住宅用地,南面是墨水湖公园、墨水湖,东面是墨水湖绿道、墨水湖,西面是钰龙旭辉半岛一期、汉桥路。毫不夸张的说, 整个项目环墨水湖而言,做到了真正的一线临湖,且周边有桃花岛老小区,生活配套成熟,居住氛围好。
图 |区位图

交通路网:区域内有 主干道二环线、江城大道、芳草路等。从项目出发,沿着二环线,往西直达龙阳大道,到达王家湾商圈;往东直达江城大道,到达五里墩、钟家村,或过墨水湖大桥到达沌口永旺,自驾便利。
地铁: 项目距离地铁4号线七里庙站约1公里,可乘坐4号线往东2站后到达王家湾商圈;往西3站后达到钟家村商圈,地铁出行便利,但从项目步行到地铁站有一定距离。
公交:距离 项目200米处有汉桥路桃花街站,现已开通390路公交, 可直达王家湾、黄金口等,但来往车辆较少,预计每趟要等20分钟。

图 |周边地铁、公交一览
蓝天湖岸
蓝天湖岸售楼处电话:400-112-0302【售楼中心】
咨询高峰期请耐心等待,预约来电尊享内部优惠,专业一对一热情服务,让您用专业眼光去买房。
教育配套:项目周边1公里内有七里小学、七里中学、五里墩小学等,其中 七里小学距离项目最近,但口碑一般,教育资源并不出彩,且小区打造的是纯居住区,无幼儿园规划。

图 |周边教育资源一览
商业配套:项目旁边为桃花岛老小区,商业配套完善,有中百仓储大型超市,桃花岛小吃一条街等,相当热闹。周边2.5公里内有王家湾商圈、钟家村商圈;周边8公里内还有沌口永旺、江汉路等。
项目周边商业一览
医疗配套:项目距离汉阳医院约2.5公里,驾车约10分钟;距离武汉市第五医院约6公里,驾车约15分钟;距离武汉市中医医院(汉阳院区)约7.3公里,驾车约15分钟;医疗配套相对充足。

项目医疗配套一览
生态环境:项目门口就是墨水湖公园。目前已形成沿3.5公里湖岸线的环湖绿道,沿湖漫步,可以游览“三台五园十八景”。 一墙之隔,还有全民健身中心,作为免费的大空间公共运动场所,含括青少年运动中心、足球场、网球场、篮球场、健身广场及辅助设施等,功能齐全。
图 |墨水湖公园

品质:小区采用 精装入户大堂设计, 挑高达到6.1米,简约大气、小区内设置有阳光大草坪、儿童乐园、休闲区、会客厅等,满足各个年龄段。此外,装修标准为3500元/平, 配置有地暖+新风+中央空调,比较良心!

项目实拍


蓝天湖岸
蓝天湖岸售楼处电话:400-112-0302【售楼中心】
咨询高峰期请耐心等待,预约来电尊享内部优惠,专业一对一热情服务,让您用专业眼光去买房。
郑重承诺:此房源信息真实有效,开发商直属全程营销策划,中介勿扰如有问题欢迎来电咨询,来电即可享受买房优惠!
1、本资料为要约邀请,不作为要约或承诺;买卖双方的权利义务以双方签订的《商品房买卖合同》及其补充协议、附件等书面文件为准;相关宣传内容不排除因政府相关规划、规定及出卖人分期规划、未能控制等原因发生变化;出卖人将!不定期对宣传材料进行修改,敬请留意最新资料。
2、图片来源于网络,仅作为推广示意使用;如涉及版权使用,请与我司联系。