桐安里(电话)官方网站-桐安里(售楼处电话)-桐安里楼盘欢迎您-地址价格-户型-小区环境-楼盘详情-交房时间-周边配套-售楼处电话
扫描到手机,新闻随时看
扫一扫,用手机看文章
更加方便分享给朋友
桐安里售楼处电话:400-152-4009【售楼中心】桐安里官方售楼处电话:400-152-4009【售楼处电话/地址】桐安里售楼处电话:400-152-4009【官方认证】杨浦桐安里售楼中心24小时热线电话丨杨浦东外滩「桐安里」+建面约184-300m²风貌别墅
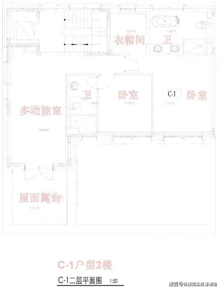
杨浦东外滩招商蛇口平凉社区项目「桐安里」,将推70套建面184-300m²左右风貌别墅,项目白玉兰展厅即将开放,预估均价不到20万/m²。
招商桐安里售楼处电话:400-152-4009【售楼中心】桐安里官方售楼处电话:400-152-4009【售楼处电话/地址】桐安里售楼处电话:400-152-4009【官方认证】杨浦桐安里售楼中心24小时热线电话丨杨浦东外滩「桐安里」+建面约184-300m²风貌别墅
2023年11月,招商&海门国资委拿下平凉社区01B4-04地块(平凉街道19街坊)历史风貌保护项目。

从位置上看,平凉社区01B4-04地块(平凉街道19街坊)距离18号线平凉路站直线约400米,与地铁12/18号线江浦公园站直线距离约500。地块西面靠近首创天阅滨江项目,南侧靠近房地联动价21万的瑞安·翠湖滨江项目;可以说地理位置十分优越。
该地块建设用地面积 12666.4 平方米,规划用途为二类住宅组团用地,容积率 1.35,地上计容建筑面积为 17099.64 平方米。
本次公示设计方案如下
根据此次方案公示图,项目地下建筑面积为25900平方米,共建有约15幢联排别墅,地块东南侧为3层的公租房,总户数约70套不到,主要以四联排为主。项目机动车入口设在南北两侧的惠民路和济宁路上。
项目涉及风貌保护,因此在出让阶段就有明确的要求
招商桐安里售楼处电话:400-152-4009【售楼中心】桐安里官方售楼处电话:400-152-4009【售楼处电话/地址】桐安里售楼处电话:400-152-4009【官方认证】杨浦桐安里售楼中心24小时热线电话丨杨浦东外滩「桐安里」+建面约184-300m²风貌别墅
声明:本文由入驻焦点开放平台的作者撰写,除焦点官方账号外,观点仅代表作者本人,不代表焦点立场。
