滨江兴耀·鸣澜里
滨江兴耀·鸣澜里售楼处电话:400-112-0302【售楼中心】
咨询高峰期请耐心等待,预约来电尊享内部优惠,专业一对一热情服务,让您用专业眼光去买房。
预计10月底11月初,拱墅区运河新城红盘 滨江兴耀·鸣澜里将公示二开预售证,1#,共96套房,面积103-126-139方,均价预计3万+/平!

户型&样板间介绍
建面约103-139方,实得率高达94%
鸣澜里整盘规划6栋17-24层高层,容积率2.7、绿地率约35%,构筑建面约103-139方覆盖首置、改善人群,包括5大户型,其中建面约103方大三房、约120方-126方-139方为大四房,深受关注。

(鸣澜里立面效果示意图)
建面约103方3房2卫,「入门即改善」的典范

南向三开间朝南,约9.8米大面宽,约7米阔绰阳台,餐客厅贯通,并连接阳台,百变待客空间;套房式主卧,南联阔景飘窗,栖居更温馨舒适。
在降低总价门槛的同时,也让年轻购房者能轻松享受到「改善性的大三房」,对于总价3打头的户型来说,不管是实用性、空间感优势都格外突出。
建面约126方4房2卫,270°稀缺边套四房

如果追求视野和仪式感,该户型完美契合。四开间朝南的王者格局,主卧配约3.5米飘窗,叠加约6.1米观景宽幕,你的家就像“运河第一排观景座”,运河船只往来间,镌刻下永不落幕的风景。
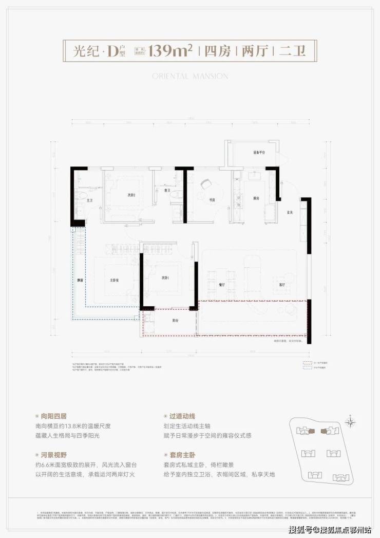
建面约139方4房2卫,宝藏款社交型大宅


约139方则分为横竖两款,全部为边套,两梯两户设计,尊崇感和私密感兼备。“横版”是四开间朝南+大方厅+L型转角飘窗的“全景舱主卧”+超级双联阳台;“竖版”有大边厅带超长观景飘窗+约10米南向三开间+酒店式套房……房源数量很少,且摇且珍惜。
滨江兴耀·鸣澜里
滨江兴耀·鸣澜里售楼处电话:400-112-0302【售楼中心】
咨询高峰期请耐心等待,预约来电尊享内部优惠,专业一对一热情服务,让您用专业眼光去买房。
项目日照攻略发布
采光不错
分析结果是这样:计算已考虑周边所有建筑的影响,结果表明南边住宅不会对本次开盘楼栋产生遮挡,楼栋仅受地块内部影响。(说明:本文日照数据基于公示规划图纸文件,使用专业制作工具完成,仅供参考)


春分秋分(9-15时)在售楼栋日照时间和动图



夏至(9-15时)在售楼栋日照时间和动图


大寒(9-15时)在售楼栋日照时间和动图


滨江兴耀·鸣澜里
滨江兴耀·鸣澜里售楼处电话:400-112-0302【售楼中心】
咨询高峰期请耐心等待,预约来电尊享内部优惠,专业一对一热情服务,让您用专业眼光去买房。
周边配套介绍
既有现在,更有未来
或许你会好奇,为什么「运河新城+滨江造」总能创造热销奇迹?我想以下几点值得关注。
其一、城北之芯运河新城,产业集聚,人才扎堆,居住、置换的需求巨大。
作为杭州主城留白地、拱墅「举全区之力」重点建设的城北之芯,运河新城打出“文化+地标”、“生态+生活”、“经济+产业”三大组合拳,让其含金量持续飙涨。
人文荟萃:诸如京杭大运河博物院(在建)、大运河未来艺术科技中心(规划)等7大城市级艺文地标环伺,人文艺术气息拉满。


宜居胜地:未来,千年运河旁生长出一条世界级的滨水空间带,全长18公里山水景观环链,放置14个不同主题的水岸活力公园。

(京杭大运河航拍图,源自图虫,已授权)
科创引领:杭州首个创新型小镇智慧网谷,已经吸引了新浪、360、联想、华为等大批高新互联网企业入驻,虹吸海量高素质人才。

(智慧网谷规划图,源自网络)
不仅如此,杭钢数字经济小镇(规划),国资云、气象云、健康云三大省级数字基座在此扎根。

(杭钢半山数字经济小镇示意图,源自网络)
杭州又一国字号“中国算谷”即将诞生(也是“杭州科创六谷”之一)正在建设中,这里或将成为下一轮科技爆发的原点!

(中国算谷示意图,源自网络)
北部康桥健康产业能源产业也逐步落地。如此高层次的战略部署,运河新城起飞模式已经开启。
其二、运河新城C位,占位黄金生活圈,鸣澜里拥享醇熟生活优配。

(鸣澜里区位示意图)
除了板块潜力无限,鸣澜里本身的占位亦不容小觑。
项目位居“大城北历史年轮带”与“大运河风光文化带”这两大轴线交汇点,极强的CP加持,鸣澜里隐形价值更加刺激。
交通方面,地铁4号线平安桥站直线距离约700米,15号线康桥路站(在建)约320米,加上康桥路、丽水北路、上塘高架等,出行便捷。
周边城北万象城、拱墅万达、运河上街、乐堤港等5大商业综合体环伺,让购物和聚会变得轻松愉快。

(育才大城北学校实景图,源自网络)
此外,教育资源云集,如育才大城北学校,以及文渊小学(新城校区)、杭十四中附属学校,杭十四中康桥校区,家门口还规划一所九年一贯制学校等。(注:具体学区以教育局官方文件为准)
值得一提的是,项目直线距离约300米运河水岸,出园可到运河游步道,近揽一线京杭大运河缤纷胜景,可以安放杭州人都有的运河情结。
滨江兴耀·鸣澜里
滨江兴耀·鸣澜里售楼处电话:400-112-0302【售楼中心】
咨询高峰期请耐心等待,预约来电尊享内部优惠,专业一对一热情服务,让您用专业眼光去买房。
郑重承诺:此房源信息真实有效,开发商直属全程营销策划,中介勿扰如有问题欢迎来电咨询,来电即可享受买房优惠!
1、本资料为要约邀请,不作为要约或承诺;买卖双方的权利义务以双方签订的《商品房买卖合同》及其补充协议、附件等书面文件为准;相关宣传内容不排除因政府相关规划、规定及出卖人分期规划、未能控制等原因发生变化;出卖人将!不定期对宣传材料进行修改,敬请留意最新资料。
2、图片来源于网络,仅作为推广示意使用;如涉及版权使用,请与我司联系。