海上清和玺售楼处电话:400-112-0302【售楼中心】徐汇区唯一总价2000万左右的四房新盘,四房两卫满足家族式需求,类一梯一户私密设计重塑归家礼仪。户型设计大开大合,南北通透,独立餐客厅舒适通透,空间美学与功能平衡。143㎡大师样板已开放,预计6月加推,
海上清和玺
海上清和玺售楼处电话:400-112-0302【售楼中心】
咨询高峰期请耐心等待,预约来电尊享内部优惠,专业一对一热情服务,让您用专业眼光去买房。
,【海上-清和玺】四期加推25席洋房,于6月28日开盘,选房过程用时不到半个小时,即宣告本批次清盘售罄。

徐汇目前唯一新房,即将压轴加推!
前期少量建面约112-120-135㎡3房在售
均价112800元/㎡,总价1200万起

不管是多功能会所的规划效果、还是创意展示空间的实景呈现,都带给人很强的视觉冲击力!
项目会所效果图,仅供参考



海上清和玺
海上清和玺售楼处电话:400-112-0302【售楼中心】
咨询高峰期请耐心等待,预约来电尊享内部优惠,专业一对一热情服务,让您用专业眼光去买房
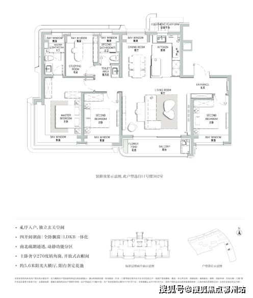
户型图赏鉴
作为徐汇区当前唯一总价2000万左右的四房新盘,在土地资源开发成本日渐高昂的徐汇,低密洋房堪称“绝版资产”,而兼具功能性与收藏属性的「四房真洋房」,更堪称时代孤品。可以说, 这一次之后,很难再有!

除了本身稀缺性之外,这一次143㎡洋房的产品设计也有诸多亮点。
01、全生命周期产品,四房两卫满足家族式需求
02、类一梯一户,舒适独立入户空间
03、南向四开间,面宽约15.5m,独立餐客厅,南北通透
04、是徐汇唯一2000万左右能买到四房的新盘
以「 全生命周期住宅」为核心理念,海上·清和玺洋房以 四房两卫的家族式空间布局,精准匹配多代共居的进阶需求, 以「类一梯一户」的私密设计,重塑归家礼仪的尊崇感。
户型设计上 约15.5米南向四开间,以大开大合的格局重构空间美学与功能的平衡。 独立餐客厅南北贯通,舒适通透十足,同时 6-7层低密真洋房形态,打破传统高层压抑感,将光照提升至极致。
无论是三代同堂的欢声笑语,抑或私密静谧的独处时光,皆能在此找到理想载体。
据悉,143㎡大师样板现已开放,预计6月加推,臻稀席位仅25个!预约从速!


编辑

编辑

编辑

编辑

招商在以往的成功经验基础上,调研了大量客户需求,为户型设计带来重磅升级:
项目舍弃了传统逼仄的百平三房,将最小面积提升到了建面约112㎡,而这12个平方的提升,让整体户型的空间尺度感达到了新的高度。
在户型细节方面, 全系高层户型,配置S墙。把传统直墙做成弯的,为相邻两户创造出了额外的凹槽空间,扩展了收纳。
这是一个非常巧妙的设计,比如将冰箱塞入这个凹槽,从而释放厨房的冰箱空间,延伸灶台的面积,或者可以做岛台...
而在 建面约134㎡ 3房,配置了主卧套房,更是配置了270°环幕级景观飘窗,正如同全面屏一样,带来IMAX级的宽幕视野!
海上清和玺
海上清和玺售楼处电话:400-112-0302【售楼中心】
咨询高峰期请耐心等待,预约来电尊享内部优惠,专业一对一热情服务,让您用专业眼光去买房。
郑重承诺:此房源信息真实有效,开发商直属全程营销策划,中介勿扰如有问题欢迎来电咨询,来电即可享受买房优惠!
1、本资料为要约邀请,不作为要约或承诺;买卖双方的权利义务以双方签订的《商品房买卖合同》及其补充协议、附件等书面文件为准;相关宣传内容不排除因政府相关规划、规定及出卖人分期规划、未能控制等原因发生变化;出卖人将!不定期对宣传材料进行修改,敬请留意最新资料。
2、图片来源于网络,仅作为推广示意使用;如涉及版权使用,请与我司联系。