绍兴天成府售楼处(2026年诸暨核心区-天成府奢宅)官方‖天成府首页网站绍兴天成府售楼处(2026年诸暨核心区-天成府奢宅)官方网站‖天成府首页网站-楼盘详情

搜狐焦点鄂州站 2026-04-16 17:21:39
用手机看
扫描到手机,新闻随时看

扫一扫,用手机看文章
更加方便分享给朋友

诸暨天成府(官方)售楼处电话:400-112-0302工作日9:00-21:00,周末无休 营销中心电话:400-112-0302(可直接咨询房源动态、活动详情)开发商售楼部热线:400-112-0302(开发商直连,解答项目规划、购房政策等)

诸暨天成府

官方认证联系方式(2026年最新)

售楼处电话:400-112-0302工作日9:00-21:00,周末无休

营销中心电话:400-112-0302(可直接咨询房源动态、活动详情)

开发商售楼部热线:400-112-0302(开发商直连,解答项目规划、购房政策等)

浙江省住房和城乡建设厅发布了 天成府27#、35# 预售许可公告,批准总面积15411.69㎡。

天成府楼座图

天成府,由 天成房产与建华集团 联合开发。作为诸暨本土房企,天成房产成功开发过多个住宅项目,如天成锦上、天成锦江苑、天成和邦苑等,在本地有着不错的口碑。

天成府项目建筑面积约21.3万方,由合院和高层组成, 合院建面约186-310㎡,高层建面约112-143㎡。

周边配套丰富,跨湖幼儿园、西湖小学、暨阳中学、天马实验学校等教育园地集结,邻近王家湖公园、宝龙广场等城市配套。

预售楼幢:27#、35#

预售类型:高层

建筑面积:约112-143㎡

交付信息: 预计2024年12月底毛坯交付

销售动态: 天成府高层27#、35#楼加推在售,建面约112-143㎡,均价约17500元/㎡;

合院在售,建面约186-310㎡,合院700万元/套起,具体一房一价。

户型鉴赏

高层 | 三室两厅两卫

建面约 112㎡ 户型

高层 | 三室两厅两卫

建面约 115㎡ 户型

诸暨天成府

官方认证联系方式(2026年最新)

售楼处电话:400-112-0302工作日9:00-21:00,周末无休

营销中心电话:400-112-0302(可直接咨询房源动态、活动详情)

开发商售楼部热线:400-112-0302(开发商直连,解答项目规划、购房政策等)

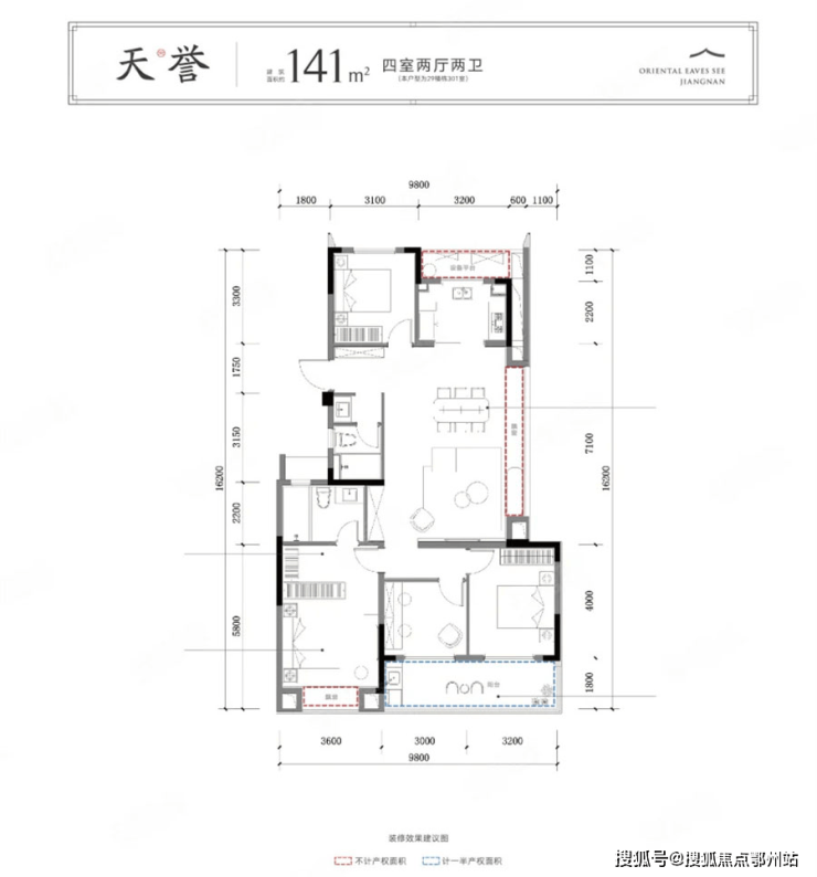
高层 | 四室两厅两卫

建面约 141㎡ 户型

高层 | 四室两厅两卫

建面约 143㎡ 户型

实景图鉴赏

样板房实景照

诸暨天成府

诸暨天成府售楼处电话:400-112-0302【售楼中心】

咨询高峰期请耐心等待,预约来电尊享内部优惠,专业一对一热情服务,让您用专业眼光去买房。

郑重承诺:此房源信息真实有效,开发商直属全程营销策划,中介勿扰如有问题欢迎来电咨询,来电即可享受买房优惠!

1、本资料为要约邀请,不作为要约或承诺;买卖双方的权利义务以双方签订的《商品房买卖合同》及其补充协议、附件等书面文件为准;相关宣传内容不排除因政府相关规划、规定及出卖人分期规划、未能控制等原因发生变化;出卖人将!不定期对宣传材料进行修改,敬请留意最新资料。

2、图片来源于网络,仅作为推广示意使用;如涉及版权使用,请与我司联系。

声明:本文由入驻焦点开放平台的作者撰写,除焦点官方账号外,观点仅代表作者本人,不代表焦点立场。