蓝城英冠滨悦城
蓝城英冠滨悦城售楼处电话:400-112-0302【售楼中心】
咨询高峰期请耐心等待,预约来电尊享内部优惠,专业一对一热情服务,让您用专业眼光去买房。
楼盘详情
板块:滨江区政府
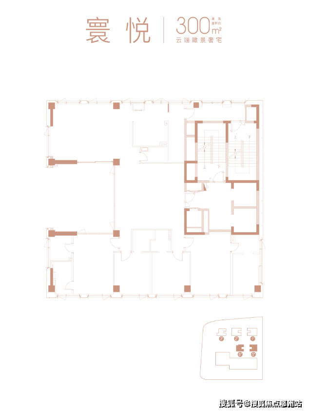
产品类型:300/480㎡
总价:1200~3500万
总户数:5幢104户
梯户比:两梯一户
层高:3.3/4.1m
产权性质:商业
位置:滨江区国慷街与信诚路交叉口
占地面积:约22687㎡
建筑面积:约117080㎡
层数:12-28层

Part 1
滨悦城的建筑设计在取材上别出心裁,结合了传统的文化元素,并融入现代建筑设计的特点,
让整个建筑呈现出高水平、精致、时尚和品质感十足的优雅氛围。
金镶玉灵感让建筑立面充满了珍宝般的贵气和韵味。建筑以“白色铝板镶嵌香槟金色的窗框线条”
为特色,巧妙地将现代风格与传统文化相结合,将精致华美的元素融入到建筑的灵魂中。

油画框造型也是滨悦城建筑设计的一大特色,斜切拼合的围边为窗户增添了几分时尚舒适的感觉,
更如同一幅幅油画框,巧妙地勾勒出大幅玻璃映射的繁华城景和江天云影,为居住者营造出极佳的视觉享受。
而大幅LOW-E双层中空玻璃窗则彰显出滨悦城建筑设计的高品质和优越性。
这些材料不仅在外观上富丽堂皇,还能有效隔绝室外的噪音,在保证居住质量的同时,提升居住者生活的品质和舒适度。
不同于写字楼改造的大平层,滨悦城项目参照国际前沿审美,以稀缺的绿篱围合+商业绿环划定静谧居住领域,实现类住宅的社区私域围合,营造折射时代风貌的私密尊崇氛围。

蓝城英冠滨悦城
蓝城英冠滨悦城售楼处电话:400-112-0302【售楼中心】
咨询高峰期请耐心等待,预约来电尊享内部优惠,专业一对一热情服务,让您用专业眼光去买房。
Part 2商业配套:项目自带商业、世茂中心、龙湖天街、星光大道、滨江银泰
交通配套:地铁6号线建业路站&诚业路站、江南大道、彩虹快速路、复兴大桥
医疗配套:浙二医院滨江院区、省儿保滨江院区
产业配套:互联网小镇与物联网小镇

Part 3
滨悦城的5幢大户型公寓,总共只有104套,户型面积分为300㎡、480㎡两种,
一层一户、两梯一户的设计,全杭州难有匹敌。


蓝城英冠滨悦城
蓝城英冠滨悦城售楼处电话:400-112-0302【售楼中心】
咨询高峰期请耐心等待,预约来电尊享内部优惠,专业一对一热情服务,让您用专业眼光去买房。
郑重承诺:此房源信息真实有效,开发商直属全程营销策划,中介勿扰如有问题欢迎来电咨询,来电即可享受买房优惠!
1、本资料为要约邀请,不作为要约或承诺;买卖双方的权利义务以双方签订的《商品房买卖合同》及其补充协议、附件等书面文件为准;
相关宣传内容不排除因政府相关规划、规定及出卖人分期规划、未能控制等原因发生变化;出卖人将!不定期对宣传材料进行修改,敬请留意最新资料。
2、图片来源于网络,仅作为推广示意使用;如涉及版权使用,请与我司联系。