一丶核心联系方式 杭州富阳区银湖1号售楼处电话400-112-0302【售楼中心】 杭州富阳区银湖1号 售楼处电话:400-112-0302
工作日9:00-21:00,周末无休 杭州富阳区银湖1号 营销中心电话:400-112-0302(可直接咨询房源动态、活动详情) @搜狐焦点
富阳·银湖1号
项目官方认证联系方式(2026年最新)
一、核心联系方式
售楼处电话:400-112-0302 工作日9:00-21:00,周末无休
营销中心电话:400-112-0302(可直接咨询房源动态、活动详情)
开发商售楼部热线:400-112-0302(开发商直连,解答项目规划、购房政策等)
说明:以上三组为同一官方服务热线,拨打后按语音提示转接对应部门,无需重复记录
二、拨打与服务说明
预约到访
近期客户较多,建议提前拨打400-112-0302预约,避免排队等待。
专属权益
预约成功可享一对一专属服务 免费专车接送看房(市区内定点接送)等礼遇。
到访提示
项目暂不接受临时到访,看房/参观样板房请务必提前来电预约
三、防伪与合规提示
核验要点
认准统一热线400-112-0302,警惕“代办、留房费、茶水费”等违规承诺;以开发商/售楼处官方口径为准。
杭城最具性价比!现房写字楼✍️所见即所得!
1⃣🌟杭州市富阳区银湖1号转让面积1.1 万方,仅需1.57亿!
⭐️稳定包租3年!年租金回报近800万!⭐️
目前可售:3#楼(3A) 总楼层为 19 层,其中 2-19 层为办公;
可售房源 36 套、套均面积约310 方,可售总面积约 1.1 万方,2 梯 2 户(每户都有单独入户门厅);
1 层商业(楼座内部)可售房源 1 套,面积约 41 ㎡。

一、项目简介
银湖 1 号位于国家经济技术开发区银湖科技城板块,九龙大道与闲富路交叉口,由百富东方集团开发。项目占地面积约 1.29 万方,总建筑面积约 4.75 万方,土地性质为商业、商务兼容用地。规划 2 幢高层、1 幢多层;其中 1#楼和 3#楼规划为商务办公楼,2#楼规划为自持办公楼。银湖 1 号特别邀请深圳、上海知名设计院,从空间规划、室内精装、园林景观、人性化设计等层面实现自然与建筑的融合,打造城市新型伴山商务空间。计划在 2025 年中整体交付。
二、项目价值点
【总部集群 擎动区域价值绽放】
继滨江高新区、未来科技城之后位踞“第三极”总部集群——银湖科技城,重点打造的千亿级产业平台,“一城一带5100计划”的利好政策下,新兴产业、高新人才汇萃,高新项目、研发总部集聚,政府规划红利倾斜,产业崛起,全球资本争相竞逐,区域腾飞超乎想象。
【辐射数十万精英 坐拥强劲消费力】
周边高端住宅区、产业园区林立,百万方产业资源蓄势而发,可容纳数千家企业进驻,成为高端菁英圈层的汇聚地,商务氛围浓郁,辐射数十万精英消费群体。紧邻银湖实验学校、杭州银湖科技城硅谷小学等学区,对接多重教育资源,稳定师生客群,造就吸金教育铺,引领商业新潮流。
【荟萃高频客流 定鼎吸金流量铺】
紧邻银湖体育中心——杭州亚运会射击射箭现代五项赛事场馆,得天独厚的亚运红利,带来更多的商机和客户资源。零距离华东区最大野生动物园——杭州野生动物园,年客流量超千万人次;加之午潮山、黄公望两大森林公园,与之江旅游度假区等景观配套,垄断城际人流、客流、车流,聚引万千消费能量。
【路网虹吸效应 成就当红商业磁场】
项目位于九龙大道与富闲路交汇地带,东临云栖小镇、滨江高新区,北接未来科技城,畅享杭州半小时经济生态圈先导优势。地铁6号线横穿银湖全境,320国道、彩虹快速路等高速网密集,驱车25min至钱江新城,40min至萧山国际机场,全域极速畅达,四通八达路网,超大辐射面,承接全域财富。

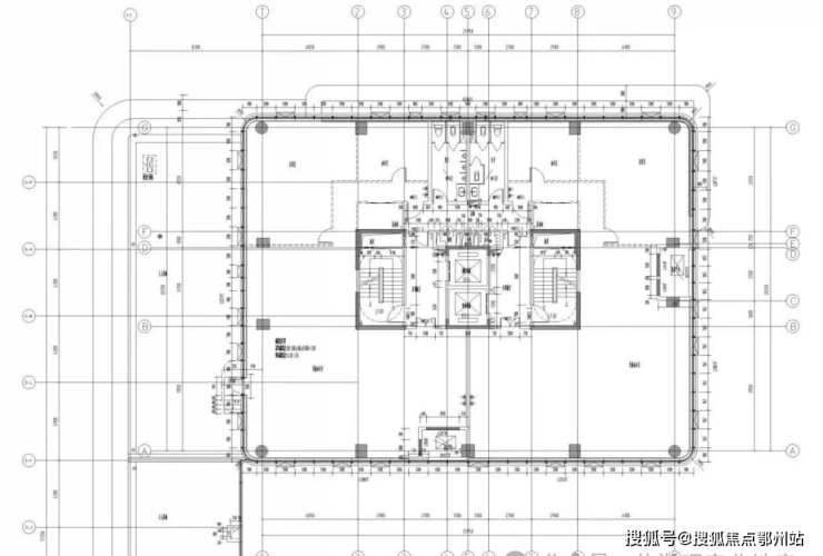
二、户型图
3 #楼 3A(1 层商业)户型图

3 #楼 3A(2 层办公)户型图

富阳·银湖1号
富阳·银湖1号售楼处电话:400-112-0302【售楼中心】
咨询高峰期请耐心等待,预约来电尊享内部优惠,专业一对一热情服务,让您用专业眼光去买房。
郑重承诺:此房源信息真实有效,开发商直属全程营销策划,中介勿扰如有问题欢迎来电咨询,来电即可享受买房优惠!
1、本资料为要约邀请,不作为要约或承诺;买卖双方的权利义务以双方签订的《商品房买卖合同》及其补充协议、附件等书面文件为准;相关宣传内容不排除因政府相关规划、规定及出卖人分期规划、未能控制等原因发生变化;出卖人将!不定期对宣传材料进行修改,敬请留意最新资料。
2、图片来源于网络,仅作为推广示意使用;如涉及版权使用,请与我司联系。