苏州旭辉溪前雅居
开发商售楼处咨询/预约热线:400-112-0302(销售中心)
看房需要提前电话预约,避免临时案场无人接待!
预约来电尊享内部优惠,开发商案场销售一对一热情服务,看房不收取任何费用!

溪前雅居位于相城区太平街道聚金路东、新开路南,是2022年9月28日,太平城乡一体化&中惠房地产以底价151716万元竞得,成交楼面价8500元/㎡。
根据规划,项目拟建44栋5-26F住宅,其中,28栋5F叠墅、7栋6-10F洋房9栋20-26F高层,体量较大,以低密叠墅和洋房为主。

此前规划曝光38#洋房户型,4房2厅2卫,2梯4户。

根据出让要求,户型面积不小于100㎡,装标不低于1500元/㎡,由 旭辉操盘,案名已经公布,预计即将入市,且拿地价较低,未来价格或许会有惊喜~
华发渭塘38、39号地块,打造叠墅+洋房+联排,户型150-350㎡,即将入市
溪前雅居南侧就是华发渭塘38、39号地块。这2宗地位于相城区渭塘镇聚金路东、凤起南路南,都是在2023年8月被华发竞得,成交价分别为3.94亿、3.57亿,成交楼面价均为10000元/㎡!
这也是华发首进渭塘,拟建 15栋3F联排+31栋4F叠墅+3栋洋房,户型面积 150-350㎡,仅398户。
项目的地块用途为纯住宅用地,占地面积99161平。
根据公示信息,项目总建筑面积268330.64平,计容建筑面积178489.8平, 容积率1.8.

叠墅4F 172㎡-235㎡;
洋房6-10F 128㎡/143㎡;
高层20F-26F 107㎡/120㎡
高层/洋房精装交付,叠墅毛坯交付
叠墅外立面由白色铝板+米色仿石涂料+香槟金铝板+香槟金金属漆+灰色仿石涂料+灰色金属型材组成。
高层效果图也已经公布,大面玻璃设计,绝对的区域高颜值。
此外,项目的洋房户型也有公示,两大户型均为4房2卫。
南向四开间朝南,3卧朝南+全飘窗设计+超大双联阳台,LDK一体化空间,是改善最需要的家庭互动区;主卧豪华套房,独立卫浴与衣帽间,尊贵性和私密性兼备。
▋低密墅区作品,高端宜居
根据规划,溪前雅居拟建44栋5-26F住宅,其中,28栋5F叠墅、7栋6-10F洋房,9栋20-26F高层,以低密叠墅和洋房为主。

▲项目总平图,图源网络
苏州旭辉溪前雅居
开发商售楼处咨询/预约热线:400-112-0302(销售中心)
看房需要提前电话预约,避免临时案场无人接待!
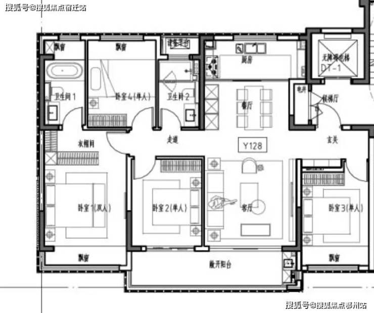
目前规划公示有三种户型,分别为洋房及叠墅,高层户型暂未公示。 叠墅外立面由白色铝板+米色仿石涂料+香槟金铝板+香槟金金属漆+灰色仿石涂料+灰色金属型材组成。叠墅公示为一层户型,1室1卫,大横厅+开敞阳台+超大U型厨房。可以说空间是相当的大,阳光充足。

▲13#叠墅一层平面图,图源网络
洋房公示有2个户型,均为4房2卫,3卧朝南+全飘窗设计+超大双联阳台;其中洋房户型2还设有家政间,可谓是周边改善首选了。

▲洋房户型图,图源网络

▲洋房户型图,图源网络
高层效果图也已经公布,大面玻璃设计,绝对的区域高颜值。

▲高层效果图,图源网络
叠墅全朝南创新户型
溪前雅居业态丰富,包括了叠墅、洋房和高层,因此涉及的户型比较多,目前公开的有叠墅和洋房户型。
下叠建面约235㎡,4室2厅4卫,三套房设计。这个户型亮点,卧室做了全朝南设计!
独立入户门厅,双开门,保证了私密性。
一层带大花园,空间上大横厅+南向套房,生活的舒适和别墅该有的气派体面,都照顾到了。LDK一体化,不仅在空间上成为了划分功能区的隔断,还增加了家庭成员的互动。
二层为休息区,主卧配置了豪华衣帽间与五星级酒店式卫浴,双联极致观景大阳台,能将整个社区的美景尽收眼底。

叠墅建面约 170㎡-235㎡;洋房128㎡/143㎡;高层105㎡/120㎡。高层、洋房精装交付,叠墅毛坯交付。

交通上:周边有G524国道南接苏州主城区东环路等,阳澄西湖南隧道已经通车,阳澄湖第三隧道正在建设中,通车后可快速抵达苏州各中心,板块内规划的13号线经过。
教育上:项目周边公立、私立学校皆有, 太平中学、珍珠湖小学、新加坡伊顿国际幼儿学校等。同时板块还规划了4所国际学校。
商业上:项目毗邻高铁新城,可同享高铁新城优质商业配套。
医疗上:相城区太平人民医院、相城区第三人民医院距离不远。

总体来看,该项目位于北苏州太平板块,靠近高铁新城,周边自然资源丰富。仅1.8低密墅区,打造叠墅+洋房+高层产品,市面上非常少见。
苏州旭辉溪前雅居
开发商售楼处咨询/预约热线:400-112-0302(销售中心)
看房需要提前电话预约,避免临时案场无人接待!
预约来电尊享内部优惠,开发商案场销售一对一热情服务,看房不收取任何费用!