武汉知音盛棠
武汉知音盛棠售楼处电话:400-112-0302【售楼中心】
咨询高峰期请耐心等待,预约来电尊享内部优惠,专业一对一热情服务,让您用专业眼光去买房。
汉阳别墅《华中文谷-知音盛棠》稀缺别墅+总价400万起
知音盛棠,城市一线山湖院墅,一山二湖三公园环绕,出门即后官湖绿道,坐拥两个千亿级新城门户,尽享独一无二的天然大氧。

超多赠送面积,赠送有产权的院子、带采光井地下室、品牌电梯、多个大露台。185㎡实得约300㎡,加上院子,使用面积约430㎡,得房率约230%,528亩,仅305席,容积率低至0.4,院子有产权。
院墅风格:6种新中式建筑风格,同清华大学美术学院进行外立面二次深化设计,经典立面、纯正现代中式院落。

院墅房源信息:
多拼【A、B户型】:


面积:独栋280-1500㎡ 少量双拼190-265平
总价:400万起
赠送有产权院内花园面积:136㎡起
赠送带采光井地下室:63㎡起
赠送露台:12㎡起
挑空面积:27㎡起
双拼及独栋户型:
面积区间:287-1200㎡
总价:700万起
赠送有产权院内花园面积:320㎡起
赠送带采光井地下室:126㎡起
赠送露台:23㎡起
挑空面积:41㎡起
不含其他未计入销售面积
在售户型:185-1200㎡

主力户型:185-230㎡
产权花园赠送:136㎡起
户型结构:地上2-3层,地下1层;客厅至少6.7米奢华挑高;送有产权的院子、院内车位、带采光井地下室、品牌电梯交付即可使用、多个大露台等。
首付比例: 5成
产权年限:40年(不限购、不限贷)
交房时间:现房,即买即住
总价:440w起
物业:第一太平戴维斯(savills)
物业费:4.5元/平

占地面积:约35万方
计容面积:约14.4万方
容积率:0.4
绿地率:40%

武汉知音盛棠
武汉知音盛棠售楼处电话:400-112-0302【售楼中心】
咨询高峰期请耐心等待,预约来电尊享内部优惠,专业一对一热情服务,让您用专业眼光去买房。
230㎡说是双拼,确是按照独栋院落理念设计。 “前院意境、侧院生活” ,地下 6 米深桩奠定稳固根基,3米挑高围墙围合200多㎡合围式庭院。前院栽花、侧院休憩、后院种菜,儿童游乐区的欢笑声、老人侍弄花草的背影、主人茶歇会友谈笑风声,真正做到「一家三代各有天地」。

1F平面图 宴宾层 建筑面积约:105㎡
步入室内,10米进深的奢阔客厅,全明餐厨区与茶室形成洄游动线。水槽、冰箱、洗碗机等设备全系标配,实现拎包入住,无论是家族聚餐还是朋友雅集都尽显从容。
长辈房配独立衣帽间与全景落地窗,保姆房可灵活改造为书房,细节之处尽显对生活的深度考量。

二楼双套房带全赠送露台,将自然与生活完美融合,晨起可赏马鞍山云雾缭绕。暮色降临时,余晖为云雾镀上金边,如梦似幻。

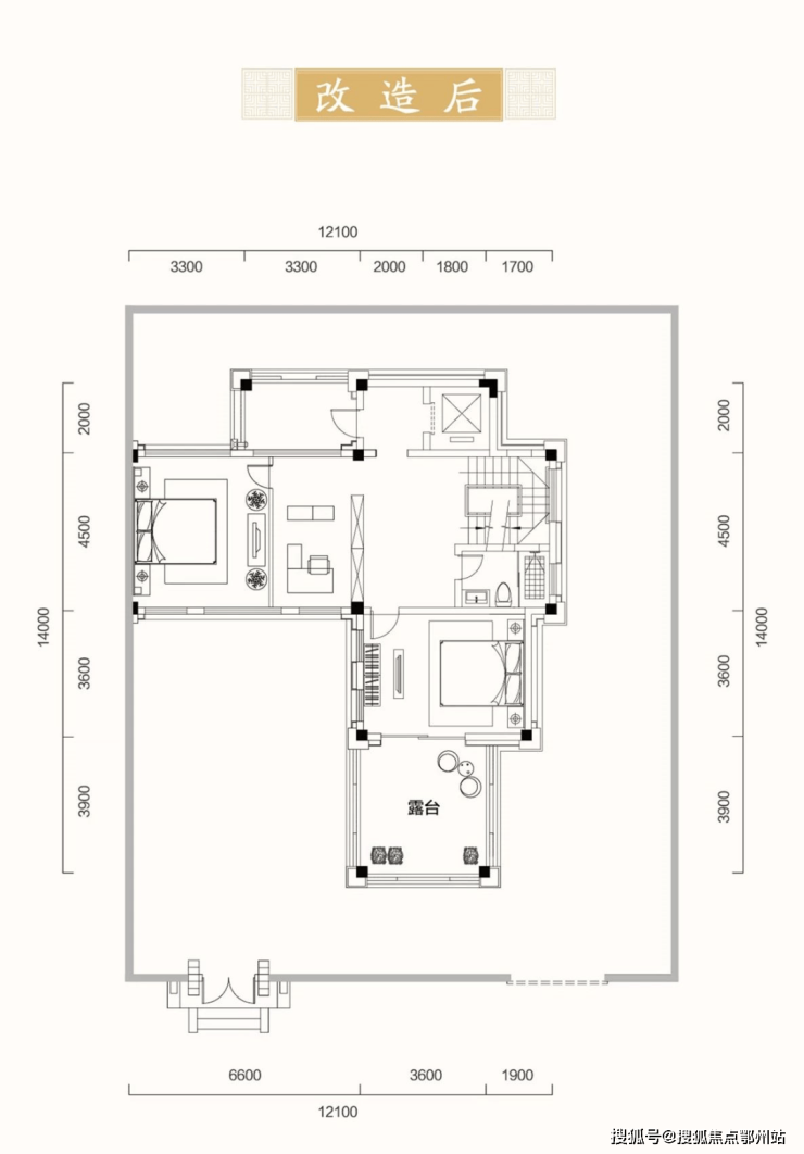
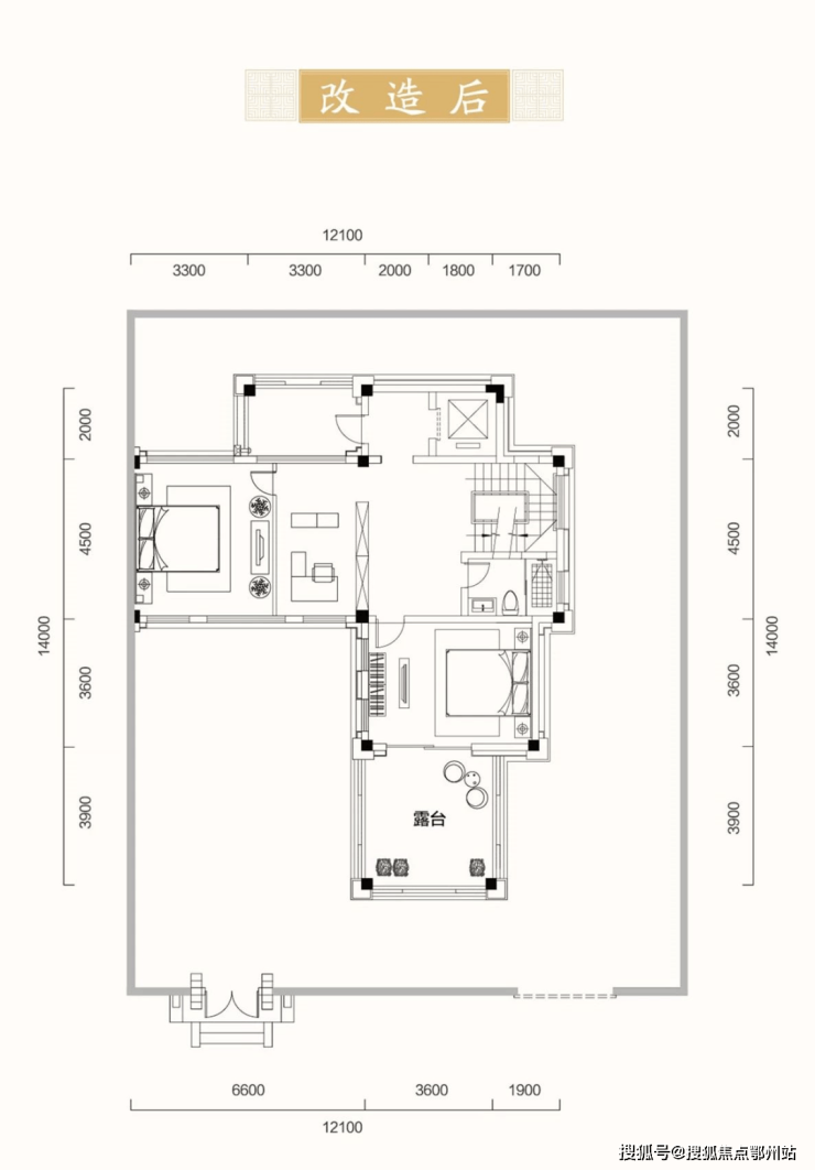
改造后2F平面图 家庭层
本层建筑面积约:83㎡
三楼主人层尊享步入式衣帽间与 20㎡星空露台,坡顶设计营造 4.5 米开阔层高,躺看星河、坐观云起。川派干挂大理石外立面搭配实木美人靠,让建筑本身成为流动的风景。

3F平面图 主人层
本层建筑面积约:66㎡
中式美学

地下75㎡娱乐空间全赠送,采光天井引入自然光,台球桌、红酒吧台、家庭影院随心布局,电梯直达四层的便捷设计,让每一层都成为生活的主场。
0.4容积率的低密社区里,有山有湖有院,私藏四季风光,让别墅生活真正回归 “有天有地” 的本真。

家,是三代人的温暖港湾,是心灵的栖息之所。知音盛棠新中式院墅,买两层送两层,一层一代人,有山有湖有院,私藏四季风光,让别墅生活真正回归 "有天有地" 的本真。
第九批次精装封藏之作,热售中,毛坯房源亦臻席递减。

荆楚风格院墅实景图
武汉知音盛棠
武汉知音盛棠售楼处电话:400-112-0302【售楼中心】
咨询高峰期请耐心等待,预约来电尊享内部优惠,专业一对一热情服务,让您用专业眼光去买房。
知音盛棠
先生的圈子·太太的院子
建面约185-287㎡双拼及多拼
建面约276-1200㎡独栋现代中式电梯纯院墅
例:A户型,有证面积约185㎡,实得使用面积约320㎡,另赠送院子花园面积约150㎡,特价385万起
实景现墅 先买先得先珍藏
约3米高墙私家院落
首层约6.7米—9米挑高
买二层送二层 户户赠送电梯、花园、带采光井地下室、多个大露台

实景图






武汉知音盛棠
武汉知音盛棠售楼处电话:400-112-0302【售楼中心】
咨询高峰期请耐心等待,预约来电尊享内部优惠,专业一对一热情服务,让您用专业眼光去买房。
郑重承诺:此房源信息真实有效,开发商直属全程营销策划,中介勿扰如有问题欢迎来电咨询,来电即可享受买房优惠!
1、本资料为要约邀请,不作为要约或承诺;买卖双方的权利义务以双方签订的《商品房买卖合同》及其补充协议、附件等书面文件为准;相关宣传内容不排除因政府相关规划、规定及出卖人分期规划、未能控制等原因发生变化;出卖人将!不定期对宣传材料进行修改,敬请留意最新资料。
2、图片来源于网络,仅作为推广示意使用;如涉及版权使用,请与我司联系。