常州钟楼·世家九号
常州钟楼·世家九号售楼处电话:400-112-0302【售楼中心】
咨询高峰期请耐心等待,预约来电尊享内部优惠,专业一对一热情服务,让您用专业眼光去买房。

小区规划
绿化率:35%
楼栋总数:2栋
停车位描述:600
建筑面积:75000㎡
物业费:商业7.5元/㎡·月
物业费描述:全球五大行高力国际
物业公司:上海高力国际物业服务有限公司常州分公司
楼层状况:1#28F:2梯2户、2梯3户,129平米、133平米、159平米、196平米、228平米、293平米。2#23F:2梯2户、2梯3户,93平米、160平米、163平米、195平米、215平米、257平米。

项目介绍
世家九号位于局前街南侧、化龙巷西侧、官保巷北侧、县直街东侧,用地面积9065平方米,项目用地面积9065㎡,总建面约7.5万㎡,其中包含了2栋办公和1栋商业楼,包含地下室4层设200个停车位。项目由常州德泰置业公司建设,2019年开工,预计2021年完工。区位介绍
世家九号原为北大街东侧D地块,项目的位置在局前街南侧、化龙巷西侧、官保巷北侧、县直街东侧、北侧即为京城豪苑,地理位置十分优越。 地段优越,商业交通医疗便捷!项目位于市中心地段,周边生活配套丰富。规划设计

世家九号原为北大街东侧D地块,去年年底项目效果图曝光,包含了2栋办公和1栋商业楼,包含地下室4层设200个停车位。项目打造93㎡-225㎡精装房。 项目soho部分将打造成精装修产品,配套有社交咖啡馆、高端健身房、高端洗衣店、黑珍珠餐厅等商业系统。景观特色
商业气息浓郁,绿化率不高,高端时尚。建筑风格
项目采用玻璃幕墙建筑风格,当然也正式因为这种建造属性,也就注定了它不可能是住宅产品。360°全景的玻璃幕墙的外观设计,在常州是有地标性建筑意义的。项目优势

项目定位高端,邀请海内外名师团队共同打造,打造筑建高端居住体系。 比如项目与世界第一幕墙玻璃品牌德国Schueco联手合作,保证了璃隔音、隔热、保温等功能,显现了全落地幕墙玻璃超大面宽的优势。 另外开发商世家集团采用旗下世家装饰集,其打造过全国最高等级的两个丽思卡尔顿酒店,上海静安香格里拉大酒店。所以这次世家九号的装修上也是花了心思的。

常州钟楼·世家九号
常州钟楼·世家九号售楼处电话:400-112-0302【售楼中心】
咨询高峰期请耐心等待,预约来电尊享内部优惠,专业一对一热情服务,让您用专业眼光去买房。
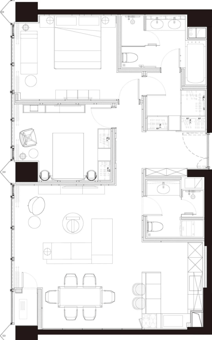
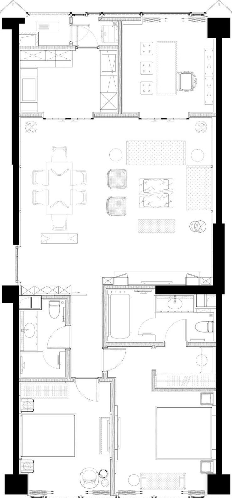
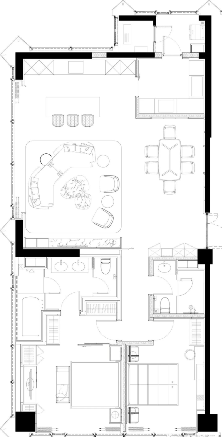
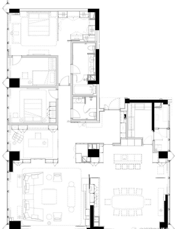
【户型鉴赏】
建筑面积约129.19m2

建筑面积约133.82m2

建筑面积约160.65m2

建筑面积约163.87m2

建筑面积约293.59m2

常州钟楼·世家九号
常州钟楼·世家九号售楼处电话:400-112-0302【售楼中心】
咨询高峰期请耐心等待,预约来电尊享内部优惠,专业一对一热情服务,让您用专业眼光去买房。
郑重承诺:此房源信息真实有效,开发商直属全程营销策划,中介勿扰如有问题欢迎来电咨询,来电即可享受买房优惠!
1、本资料为要约邀请,不作为要约或承诺;买卖双方的权利义务以双方签订的《商品房买卖合同》及其补充协议、附件等书面文件为准;相关宣传内容不排除因政府相关规划、规定及出卖人分期规划、未能控制等原因发生变化;出卖人将!不定期对宣传材料进行修改,敬请留意最新资料。
2、图片来源于网络,仅作为推广示意使用;如涉及版权使用,请与我司联系。