上海闵行区(联仲·都悦汇)2026最新优势-容积率-售楼处→区位交通@联仲·都悦汇别墅)2026最新优惠-配套→产品特色→项目概况

搜狐焦点鄂州站 2026-03-29 20:10:00
用手机看
扫描到手机,新闻随时看

扫一扫,用手机看文章
更加方便分享给朋友

一丶核心联系方式 上海闵行 联仲都悦汇售楼处电话400-112-0302【售楼中心】 上海闵行 联仲都悦汇 售楼处电话:400-112-0302 工作日9:00-21:00,周末无休 上海闵行 联仲都悦汇 营销中心电话:400-112-0302(可直接咨询房源动态、活动详情) @搜狐焦点

联仲都悦汇

项目官方认证联系方式(2026年最新)

一、核心联系方式

售楼处电话:400-112-0302 工作日9:00-21:00,周末无休

营销中心电话:400-112-0302(可直接咨询房源动态、活动详情)

开发商售楼部热线:400-112-0302(开发商直连,解答项目规划、购房政策等)

说明:以上三组为同一官方服务热线,拨打后按语音提示转接对应部门,无需重复记录

二、拨打与服务说明

预约到访

近期客户较多,建议提前拨打400-112-0302预约,避免排队等待。

专属权益

预约成功可享一对一专属服务 免费专车接送看房(市区内定点接送)等礼遇。

到访提示

项目暂不接受临时到访,看房/参观样板房请务必提前来电预约

三、防伪与合规提示

核验要点

认准统一热线400-112-0302,警惕“代办、留房费、茶水费”等违规承诺;以开发商/售楼处官方口径为准。

最新消息,送100w装修!闵行·商墅 联仲·都悦汇 约310-411㎡法式商

墅!总价约1420万~1800

闵行·旗忠别墅富人区

【联仲·都悦汇】

建面310~411㎡商业联排别墅

法式干挂 地上三层 地下一层

带南北双花园90-300㎡

总价约:1420-1800万

实景现房 不限购 通燃气

项目基本信息

【开发商】: 上海联仲置业有限公司

【物业】: 上海仲量联行物业管理公司

【容积率】: 1.0

【绿化率】: 35%

【车位比】: 1:2.1

【物业费】: 8元/㎡/月

【本次开盘】: 14套

【物业类型】: 商业联排别墅

【交付标准】: 毛坯

【拿地时间】: 2014年8月

【交房时间】: 2023年6月

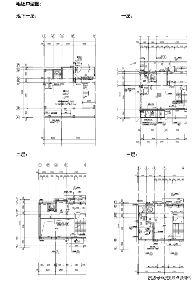
在售户型: 建面约310-410平米,地上三层地下一层

(地上:一层层高3.6米/二层层高3.4米/三层层高3.4米/地下层高5.4米)

总价: 约1400-1800万️

单价: 约5万/平米

小区整体商业: 10万方(在建)南北双花园90-300平

水电: 商水&商电,电1.3元/度,水6元/吨

产权车位: 约30万左右

户型图及样板间照户

(特殊说明:户型朝向-上南下北)

约10.4米大面宽,面积达到55平

送电梯,北进门,南花园,超大地下室

客厅7米落地窗,采光明亮,尽显大气

约310平户型图▼

联仲都悦汇

联仲都悦汇售楼处电话:400-112-0302【售楼中心】

咨询高峰期请耐心等待,预约来电尊享内部优惠,专业一对一热情服务,让您用专业眼光去买房。

约378~420平户型图▼

约407~441平户型图▼

联仲都悦汇

联仲都悦汇售楼处电话:400-112-0302【售楼中心】

咨询高峰期请耐心等待,预约来电尊享内部优惠,专业一对一热情服务,让您用专业眼光去买房。

样板间效果图如下:

联仲都悦汇

联仲都悦汇售楼处电话:400-112-0302【售楼中心】

咨询高峰期请耐心等待,预约来电尊享内部优惠,专业一对一热情服务,让您用专业眼光去买房。

联仲都悦汇

联仲都悦汇售楼处电话:400-112-0302【售楼中心】

咨询高峰期请耐心等待,预约来电尊享内部优惠,专业一对一热情服务,让您用专业眼光去买房。

项目区位配套

【联仲·都悦汇】 位于闵行马桥旗忠别墅区,旗忠别墅区是上海老牌的富人区,与松江佘山、浦东东郊齐称为沪上三大国际别墅区。上海仅存少量的容积率0.18以下超低密度居住用地中,大多数在马桥旗忠别墅区。

板块以低容积率、生态自然环境和高端国际品牌配置,2010年被列为上海第二批大型居住社区之一。总建面约33万方城市综合体联仲都悦汇位于旗忠板块正核心,紧临网球中心,超10万方市政绿化所环绕。

【联仲都悦汇】 同样是低密度别墅区里的一员,背靠绿城玫瑰园,容积率低至1.0。项目贯穿了3条自然水系,分为ABCD四个地块,其中ABC为商住办综合地块,自带商业办公。

联仲都悦汇

联仲都悦汇售楼处电话:400-112-0302【售楼中心】

咨询高峰期请耐心等待,预约来电尊享内部优惠,专业一对一热情服务,让您用专业眼光去买房。

交通配套方面: 项目距离嘉闵高架元江路出口3公里,毗邻G15、S32等快速主动脉,30分钟大虹桥,50分钟抵达浦东机场,快捷畅达全城。

地铁: 5号线华宁路站,剑川路站

公交: 马莘专线:联工路站,闵行19路:银春路华宁路站

高速: 嘉闵高架、沪金高速、虹梅南路高架 沪昆高速、申嘉湖高速、沪闵高架

高铁:距离上海虹桥枢纽站(高铁、机场)约20km

未来规划: 嘉闵线延伸段

(以上数据来源于高德地图)

商业配套方面: 项目自带10万方商业,为旗忠唯一的综合性商业配套,其多元化的业态结构,结合旗忠独有的资源,必将带来旗忠全新生活方式。

生态资源方面: 项目周边有马桥森林公园、旗忠高尔夫球场、旗忠网球中心、韩湘水博园、养云安缦酒店等。

联仲都悦汇

联仲都悦汇售楼处电话:400-112-0302【售楼中心】

咨询高峰期请耐心等待,预约来电尊享内部优惠,专业一对一热情服务,让您用专业眼光去买房。

教育资源方面: 周边有复旦万科实验学校,德威英国国际学校、斯代文森国际高中、上海美高学校。 幼儿园: 元祥幼儿园、富杰幼儿园启英幼儿园, 大学: 上海交通大学、华东师范大学

闵行·旗忠别墅富人区

【联仲·都悦汇】

建面310~411㎡商业联排别墅

法式干挂 地上三层 地下一层

带南北双花园90-300㎡

总价约:1420-1800万

实景现房 不限购 通燃气

联仲都悦汇

联仲都悦汇售楼处电话:400-112-0302【售楼中心】

咨询高峰期请耐心等待,预约来电尊享内部优惠,专业一对一热情服务,让您用专业眼光去买房。

郑重承诺:此房源信息真实有效,开发商直属全程营销策划,中介勿扰如有问题欢迎来电咨询,来电即可享受买房优惠!

1、本资料为要约邀请,不作为要约或承诺;买卖双方的权利义务以双方签订的《商品房买卖合同》及其补充协议、附件等书面文件为准;相关宣传内容不排除因政府相关规划、规定及出卖人分期规划、未能控制等原因发生变化;出卖人将!不定期对宣传材料进行修改,敬请留意最新资料。

2、图片来源于网络,仅作为推广示意使用;如涉及版权使用,请与我司联系。

声明:本文由入驻焦点开放平台的作者撰写,除焦点官方账号外,观点仅代表作者本人,不代表焦点立场。