车都·凤鸣桃源售楼处电话:400-112-0302【售楼中心】位于约446公顷的朱山湖畔,山水环抱,鸟语林与春笋商圈直线距离约3.3公里。项目四周汇聚有同济康复医学中心、爱莎国际学校等优质配套,为全家人的品质生活保驾护航。车都·凤鸣桃源纯正中式味道,让您体验世
车都·凤鸣桃源
车都·凤鸣桃源售楼处电话:400-112-0302【售楼中心】
咨询高峰期请耐心等待,预约来电尊享内部优惠,专业一对一热情服务,让您用专业眼光去买房。
市场上少有人做中式宅院这件事,也不难理解。
院墅产品本就极为“吃地”,容积率远低于一众墅类。“限墅令”严控下,符合条件的地块本就极少。
而且中式项目的精髓,在于中式园林的气韵格局,建设难度和成本更是呈指数级上升。
项目实景图

除了容积率和建设上的严苛,中式宅院对于环境的要求,也不低。
传统中式宅院,讲究卜居相地,不是随便哪块地都能做的。
否则,千辛万苦做出来的产品,遇到懂行的人一看,就知道不是那么回事儿。
所以,这也是为什么,徐sir会觉得下面要说的这个项目—— 车都·凤鸣桃源,很难得。
项目区位图

先看地段,这片中式院落群, 北临约446公顷硃山湖,东靠4A级风景区龙灵山,山水环抱,藏风聚气,土地禀赋得天独厚。
住在这里,清晨推开窗,迎接你的是满屏的绿意,翠峦叠嶂,湖光水色,仿佛身处天然氧吧。
项目门前,就是龙灵山鸟语林,在这个百鸟天堂里,你可以带着孩子认知世界,感受大自然的神奇。
假期出游,不用担心订不到房,在家就能有出游体验。
车都·凤鸣桃源
车都·凤鸣桃源售楼处电话:400-112-0302【售楼中心】
咨询高峰期请耐心等待,预约来电尊享内部优惠,专业一对一热情服务,让您用专业眼光去买房。

没有人不喜欢住在景区里,但现代人也难以割舍城市的繁华与便利。
车都·凤鸣桃源位于军山新城的主干道通顺大道,与军山新城地标“春笋”直线距离约3.3公里,开车大概几首歌的时间就能抵达 经开永旺。
项目周边,还汇聚有 同济康复医学中心、爱莎国际学校等一批重磅级配套,为全家人的品质生活保驾护航。
前一刻还身处繁华商场,下一刻就回归到世外桃源,这样的居住体验,是不是很奇妙?
NO. 2|贰
难得的是,车都·凤鸣桃源在产品上所营造的纯正中式味道。
走进项目,目之所及,是一片完整的中式建筑群,层层递进的归家礼序,高低起伏的粉墙黛瓦,曲径通幽的游廊巷道,不动声色间,都是中式独有的韵律。

项目示范区实景图

从影壁、水院、屋顶的飞檐斗拱、地面的花街铺地、入户的抱鼓石……处处都是精妙繁复的细节。
为什么说中式产品难做?
因为很多细节,都需要匠人手工打造,很难量产。
一小片花街铺地,可能需要匠人从挑选石头开始,手工镶嵌,3天也仅能拼出1平米,出货量非常小。
一座小亭,采用的是传统木构榫卯技法,对技术上的难度与人工成本相当高。
项目示范区实景图

也正是因为这样的定制级工艺,才会成就传统中式园林不过时的传世之美。
除了示范区极尽工巧,产品设计更是深度还原传统中式宅院形制。
古典深宅大院,即要有庭院深深的极致私密,也要有高堂阔院的大气开阖。
在私密性上,项目一期仅规划百余席,由中式合院、独栋和叠拼组成。
其中 中式合院容积率仅约0.38,是罕见的地上两层建筑,严格遵循了传统中式建筑层高。
在尺度感上,项目为 三开间朝南的格局,客厅、餐厅和一楼套房一字朝南排开,阔绰敞亮,从室内推开门,就能直达露台/庭院,与天地亲密接触。
而且项目利用地势由高到低排布,每一户都能纳入更多的阳光与清风。
车都·凤鸣桃源
车都·凤鸣桃源售楼处电话:400-112-0302【售楼中心】
咨询高峰期请耐心等待,预约来电尊享内部优惠,专业一对一热情服务,让您用专业眼光去买房。

面积段上,项目也尽显东方高门大宅风范。
阔绰的面积段,足够让一家几代人从容居住。
一楼套房可以留给长辈,二楼双套房,就留给大人和小孩,两代人不同的生活作息,互不相扰。
阔绰的主卧套房,足够打造出一间书房,雨天练字,听窗外闲雨敲瓦,别有一番意味。
项目样板间实景图

多功能区同样配置有卫生间,家政间、家庭休闲客厅、棋牌室、私人影院都能放在这里。
这个隔绝外界喧嚣的空间,将是身心放松的绝佳圣地。
至于前庭后院,前庭可以挖一个鱼塘,养几尾锦鲤,后院适合种些果蔬,尽享田园之乐。
项目样板间实景图

东方居住理想中的悠闲宁静,都藏在日常生活细节之中。
NO. 3|叁
能出现这样的传统中式产品,也离不开项目背后的开发商——车都集团。
近年来,很多购房者买房都倾向于国企、央企。
原因很简单,国企、央企实力更雄厚,而且受政府单位多级监管,安全系数更高。
车都集团,乃是武汉经开区直属国有独资企业,从基建配套、城市更新到人居提升,车都集团一直都是经开发展建设的中坚力量。
与城市共生共荣的本土国企,自然更熟悉区域发展步调。
在这个时机拿出这样的改善项目,是因为板块在飞速蝶变,需要承接导入的高精尖人口居住需求。
近年以来,经开区的布局之快,定位之准,落地之快速,远远超出我们的想象。
汽车产业本就是武汉支柱产业,新能源领域,作为我国实现经济弯道超车的领军行业,地位举足轻重。
经开区依托于原有的汽车产业优势,吸引了 路特斯全球总部、小鹏汽车、中航锂电、华为智能网联等一批新能源头部企业进驻,形成了集整车生产、电池制造、智能化检测的一条龙全产业链。
路特斯全球总部智造中心项目效果图

车都·凤鸣桃源
车都·凤鸣桃源售楼处电话:400-112-0302【售楼中心】
咨询高峰期请耐心等待,预约来电尊享内部优惠,专业一对一热情服务,让您用专业眼光去买房。
路特斯等新能源头部企业集聚的军山新城,正在大力布局以高校为依托的创新科研平台。
华中科技大学军山校区预计明年9月建成一期, 武汉理工大学“三院”项目一期预计明年6月建成,将为人工智能和新能源汽车等产业战略研究提供强有力支撑。
华中科技大学军山校区效果图

除高校平台外,目前军山新城还集聚了武汉先进院、中开院(武汉)科技孵化有限公司等近十家新型研发机构,形成了电池材料、气凝胶等多个领域的原创成果。
资金、产业、人口的持续流入,不止为板块带来强大的势能,也将催生庞大的居住需求。
可以预见,自带稀缺与传世属性的车都·凤鸣桃源,将会引来更多高净值人士心驰神往。
何况项目除中式合院外,还有 建面约95-246m²滨湖叠墅,叠墅风格更偏现代,中式的古典高雅,现代的时尚大气,两种风格供你选择。
总价约120万起,就能拥有一座高赠送率的揽湖墅居,尽享湖畔清幽,是不是很值得?
最新消息:车都·凤鸣桃源目前在售建面约217-410m²中式山水合院、建面约95-246m²揽湖新奢叠墅,
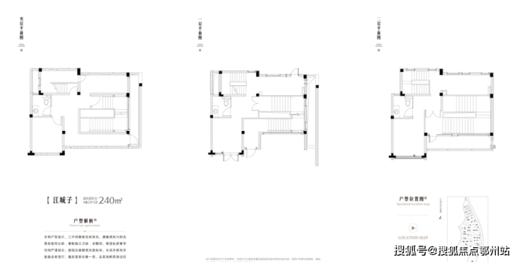
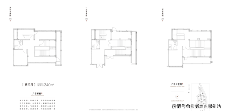
【户型赏析】
合院经典户型赏析





车都·凤鸣桃源
车都·凤鸣桃源售楼处电话:400-112-0302【售楼中心】
咨询高峰期请耐心等待,预约来电尊享内部优惠,专业一对一热情服务,让您用专业眼光去买房。





叠拼户型赏析




车都·凤鸣桃源
车都·凤鸣桃源售楼处电话:400-112-0302【售楼中心】
咨询高峰期请耐心等待,预约来电尊享内部优惠,专业一对一热情服务,让您用专业眼光去买房。
郑重承诺:此房源信息真实有效,开发商直属全程营销策划,中介勿扰如有问题欢迎来电咨询,来电即可享受买房优惠!
1、本资料为要约邀请,不作为要约或承诺;买卖双方的权利义务以双方签订的《商品房买卖合同》及其补充协议、附件等书面文件为准;相关宣传内容不排除因政府相关规划、规定及出卖人分期规划、未能控制等原因发生变化;出卖人将!不定期对宣传材料进行修改,敬请留意最新资料。
2、图片来源于网络,仅作为推广示意使用;如涉及版权使用,请与我司联系。