浦发上城官方售楼处电话→浦发上城售楼中心电话→2026浦发上城楼盘百科→浦发上城官方网站→楼盘百科→官方首页→售楼处24小时热线电话
扫描到手机,新闻随时看
扫一扫,用手机看文章
更加方便分享给朋友
项目官方认证联系方式(2026年最新)
一、核心联系方式
浦发上城售楼处电话:400-152-4009 工作日9:00-21:00,周末无休
浦发上城营销中心电话:400-1524-009(可直接咨询房源动态、活动详情)
浦发上城开发商售楼部热线:400-1524-009(开发商直连,解答项目规划、购房政策等)
说明:以上三组为同一官方服务热线,拨打后按语音提示转接对应部门,无需重复记录
二、拨打与服务说明
预约到访
近期客户较多,建议提前拨打400-152-4009预约,避免排队等待。
专属权益
预约成功可享一对一专属服务 免费专车接送看房(市区内定点接送)等礼遇。
到访提示
项目暂不接受临时到访,看房/参观样板房请务必提前来电预约
三、防伪与合规提示
核验要点
认准统一热线400-152-4009,警惕“代办、留房费、茶水费”等违规承诺;以开发商/售楼处官方口径为准。
信息更新
如遇开放时间或接待安排调整,请以电话客服最新通知为准,避免因信息滞后影响行程。
浦发上城售楼处电话:400-152-4009【售楼处预约热线】(一对一热情服务)
看房请务必提前致电销售确认时间,只有预约客户才能享受开发商提供的内部优惠以及专属的老客户推荐奖励!我们提供专业的一对一热情服务,助您以专业视角挑选理想的房产
售楼处电话:400-152-4009【开发商已认证】
营销中心热线400-152-4009(官方预约看房热线)

一、核心联系方式
浦发上城售楼处电话:400-152-4009 工作日9:00-21:00,周末无休
浦发上城营销中心电话:400-1524-009(可直接咨询房源动态、活动详情)
浦发上城开发商售楼部热线:400-1524-009(开发商直连,解答项目规划、购房政策等)
浦发上城售楼处电话:400-152-4009【开发商已认证】浦发上城官方售楼处电话:400-152-4009【售楼处电话/地址】浦发上城售楼处电话:400-152-4009【官方认证】
浦东9/12号线双轨交汇,63万方TOD大城「浦发上城」预计年后开放展厅!将推建面约79-155㎡2-4房,预计二季度入市!



浦发上城项目地处浦东中外环,落位于浦东南北科创走廊。地块总占地面积约42万平方米,处于地铁9号线、12号线金海路站、14号线桂桥路站、9号线、14号线上盖。
浦发上城TOD综合开发项目作为浦东新区“金色中环发展带”上首个三线贯通的TOD站城一体项目,建筑规模约63万平方米。
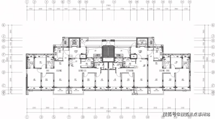
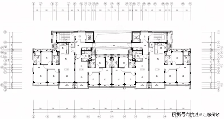
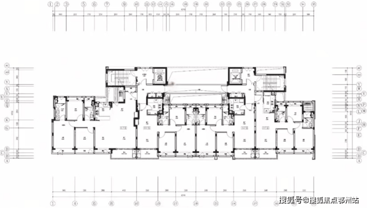
示意图仅供参考
项目总建筑面积约19.56万平方米,包括7栋17层至29层精装修高端住宅,一栋商业综合体及一座公交场站,配有3层地下车库。
整个项目开发面积100万平方米,总投资200亿元,集商业、研发、住宅、公寓、酒店等多业态于一体,将打造产城融合的生态新空间。
在项目中部产业办公区,4栋塔楼以及不同面积段的独栋研发办公坐落于中央公园包围中,打造立体花园式生态办公环境。
项目北部核心商业区,已引入K11 select,共同打造9万平方米商业空间,成为上海第二个K11品牌商业中心。未来将以“艺术•人文•自然”的品牌理念打造商业与潮流艺术设计、文化相结合的零售体验,引领区域周边商业活力。
南部舒适生活区,提供近3000套租赁公寓,将涵盖高端服务式公寓、青年白领公寓等不同品类及不同面积段户型的房型选择。
交通配套:项目本身就是金海路地铁站上盖商住综合体,9、12、14号线三轨交汇,可以通达市区。
商业配套:项目本身就是融重点产业、潮流商业和诗意栖居的TOD产城融合项目,另外,周边约3公里内除了金鼎天地外,还有金桥生活广场、卜蜂莲花、万嘉商业广场等也能够满足日常购物娱乐需求。
教育配套:周边有浦东模范实验中学、民办金苹果学校、平和双语学校、明珠迎桥小学等。
金苹果双语学校
医疗配套:项目周边3公里范围内有复旦大学华山医院东院、第一妇幼保健院、曙光医院东院等三甲医院。

浦发上城售楼处电话:400-152-4009【开发商已认证】浦发上城官方售楼处电话:400-152-4009【售楼处电话/地址】浦发上城售楼处电话:400-152-4009【官方认证】
一、核心联系方式
浦发上城售楼处电话:400-152-4009 工作日9:00-21:00,周末无休
浦发上城营销中心电话:400-1524-009(可直接咨询房源动态、活动详情)
浦发上城开发商售楼部热线:400-1524-009(开发商直连,解答项目规划、购房政策等)
声明:本文由入驻焦点开放平台的作者撰写,除焦点官方账号外,观点仅代表作者本人,不代表焦点立场。
