镇江·汇鸿天悦售楼处电话:400-112-0302【售楼中心】镇江·汇鸿天悦位于市中心,集高端资源、便捷交通、优质教育、医疗于一体,主打10栋住宅,户型多样,品质可靠,环境优雅。
镇江·汇鸿天悦
镇江·汇鸿天悦售楼处电话:400-112-0302【售楼中心】
咨询高峰期请耐心等待,预约来电尊享内部优惠,专业一对一热情服务,让您用专业眼光去买房。

汇鸿天悦选址 解放路以东,江滨医院以南,在市中心大市口,拉开了一幅城市顶配生活图鉴。

• 核心地段:寸土寸金大市口,资源丰盛
生态:滨江风光带、北固山公园近享诗意人生;
交通:解放路、大西路、长江路等主干道纵横贯通,多条公交路线通达全城;
商业:苏宁广场、八佰伴等信步可达,自身还规划约8000㎡商业街区;
教育:大地幼儿园、镇江市实验小学、镇江市第三中学等多所学校近在眼前;
医疗:江滨医院、镇江第一人民医院举步即达。

产品打造上,汇鸿天悦规划10栋住宅,体量适中, 由省属国企开发,资金充裕,实力雄厚,不仅传递出坚实的安全感,品控也更加值得信赖。

镇江·汇鸿天悦
镇江·汇鸿天悦售楼处电话:400-112-0302【售楼中心】
咨询高峰期请耐心等待,预约来电尊享内部优惠,专业一对一热情服务,让您用专业眼光去买房。
其立面选取现代简约风,高级灰色调搭配,大面积玻璃运用,园林引入温润森系的现代风格景观体系。
为了丰富业主的社交活动空间, 多栋楼均设有架空层泛会所,满足一家老少全龄阶层的日常美好生活。

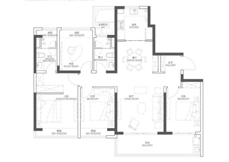
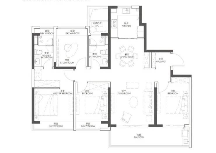
户型设计上,建面约110㎡设计方正,动静分离, 南向约6.7米双联阳台,主卧套房,独立卫浴。
建面约110㎡三室两厅两卫▼

(户型图仅为装修装饰设计效果展示,硬装软装等均非交付标准,具体以买卖合同及实际交付为准)
建面约125㎡几乎没有过道设计,空间利用率极高, 南向连接约7米双联阳台,室内全明通透。
建面约125㎡三室两厅两卫▼

(户型图仅为装修装饰设计效果展示,硬装软装等均非交付标准,具体以买卖合同及实际交付为准)
建面约147㎡户型 四开间朝南,南向超大面宽,尺度拉到满格,空间感更加奢阔。
建面约147㎡四房两厅两卫▼

(户型图仅为装修装饰设计效果展示,硬装软装等均非交付标准,具体以买卖合同及实际交付为准)
镇江·汇鸿天悦
镇江·汇鸿天悦售楼处电话:400-112-0302【售楼中心】
咨询高峰期请耐心等待,预约来电尊享内部优惠,专业一对一热情服务,让您用专业眼光去买房。
建面约180㎡户型采用BLDK一体开放式布局,打造无界家庭生活厅。
建面约180㎡四房两厅两卫▼

(户型图仅为装修装饰设计效果展示,硬装软装等均非交付标准,具体以买卖合同及实际交付为准)
其L型广角阳台,270°超大采光面。

▲示意图
值得一提的是, 项目高层住宅均为3米层高,比镇江市面绝大部分高层、甚至部分洋房层高还要高。

镇江·汇鸿天悦
镇江·汇鸿天悦售楼处电话:400-112-0302【售楼中心】
咨询高峰期请耐心等待,预约来电尊享内部优惠,专业一对一热情服务,让您用专业眼光去买房。
郑重承诺:此房源信息真实有效,开发商直属全程营销策划,中介勿扰如有问题欢迎来电咨询,来电即可享受买房优惠!
1、本资料为要约邀请,不作为要约或承诺;买卖双方的权利义务以双方签订的《商品房买卖合同》及其补充协议、附件等书面文件为准;相关宣传内容不排除因政府相关规划、规定及出卖人分期规划、未能控制等原因发生变化;出卖人将!不定期对宣传材料进行修改,敬请留意最新资料。
2、图片来源于网络,仅作为推广示意使用;如涉及版权使用,请与我司联系。