2025中海姑苏第售楼处电话-中海姑苏第首页网站-中海姑苏第最新房价-户型-容积率-小区配套-楼盘详情/价格/户型
扫描到手机,新闻随时看
扫一扫,用手机看文章
更加方便分享给朋友
苏州中海姑苏第售楼处电话:400-152-4009【售楼中心】中海姑苏第官方售楼处电话:400-152-4009【售楼处电话/地址】中海姑苏第售楼处电话:400-152-4009【官方认证】

苏州中海姑苏第售楼处电话:400-152-4009【售楼中心】中海姑苏第官方售楼处电话:400-152-4009【售楼处电话/地址】中海姑苏第售楼处电话:400-152-4009【官方认证】
项目基础档案
项目名称:中海姑苏第
地块编号:苏地2023-WG-49号地块
开发品牌:中海地产
地段位置:姑苏区沧浪街道劳动路南、彩虹河西
占地面积:约1.6万方,容积率1.8,186套
住宅产品:拟建2栋14F小高层,4栋17F小高层
户型面积:主力户型建面约130/155/183m²
装修配置:装修交付,装标不低于3000元/㎡
车位配比:1.96:1(364个)
价格信息:楼面价28750元/㎡;备案均价47495元/㎡,总价区间:542-776万
【中海姑苏第】
姑苏城芯|双轨站前 |胥江天街|一河双园
苏州中海姑苏第售楼处电话:400-152-4009【售楼中心】中海姑苏第官方售楼处电话:400-152-4009【售楼处电话/地址】中海姑苏第售楼处电话:400-152-4009【官方认证】
(1)时间的海:隶属于中国建筑集团,44年90余城服务超300万家庭
◎央企背景:中海地产1979年成立于香港,隶属于中国建筑集团,中国建筑位于世界500强第9位。基于央企背景,母公司中国建筑和中海地产有幸参与了一系列世界级、国家级的重要项目,如世界第一高楼迪拜塔、香港迪士尼、雄安第一标雄安市民服务中心、水立方、中央电视台、港珠澳大桥等。
◎全球布局:44年布局全球90余城,业务遍布内地、港澳、美国、英国、澳大利亚等多个国家和地区,服务超300万家庭。
◎三大产业:目前已经构建了包含住宅开发、城市运营、创意设计及现代服务三大产业群。
(2)幸福的海:“8大幸福理念”、“168个幸福触点”和“1个幸福后盾”
中海物业,上市公司,13个香港政府机构的御用管家,超1/5世界500强公司指定物业服务商。
(3)城市的海:深耕苏州19年36子,曾8年市场占有率第一
中海地产深耕苏州19年,在6大区累计开发项目36个,连续多年斩获苏城市场占有率第一名。中海一直是板块的引领者,所谓中海所在中心在,在姑苏区布局了多个代表项目。
◎胥江府:中海在姑苏区首个作品,也是苏州新中式社区的代表作品。
◎凤凰熙岸:临近本案,曾多次斩获板块销冠。
◎竹辉环宇荟:苏州首个滨水园林开放式街区,新晋网红打卡点,引入了苏州最高端的酒店之一金普顿酒店,本案隐奢的设计灵感来源于该酒店的风格。
西至凤凰熙岸(云庭路)、苏州中海姑苏第售楼处电话:400-152-4009【售楼中心】中海姑苏第官方售楼处电话:400-152-4009【售楼处电话/地址】中海姑苏第售楼处电话:400-152-4009【官方认证】东至龙湖天赋(华亭路)、北至劳动路、南至胥江(枣市街)
姑苏区是全国首个,也是唯一“国家历史文化名城保护区”,姑苏是中国“江南文化”的载体,文化流衍于世界。
胥江始终是苏州腹地,姑苏繁华之源。2500年前伍子胥开建的胥江,是世界上最早的人工河。因水而兴,见证了朝代更迭与商贸崛起。一轴《姑苏繁华图》记录胥江的繁华,如今,我们回归繁华初始的地方,与姑苏同频,再续2500年繁华。
姑苏区难得城市更新样板
中海·姑苏第择址COD核心区,落位资源浓度与高阶人居密度交融的“胥江高阶生活带”,与姑苏文化深度共鸣,兑现国际生活的全新预见,成为与时代并肩的风景,收获这座城市给予的掌声回响。
“两轨六轴“接轨TOD时代
古城之上的城市TOD,突破姑苏天际线,为苏州,重塑人居坐标。中海·姑苏第以TOD双轨交通为引领,擎速未来生活认识,将商业、居住、文化结合一体,突破空间桎梏,随古城澎湃向前。
姑苏第择址胥江COD板块,板块近年来多个全新打造高档品质社区,形成以高端人居界面为核心的“胥江高阶居住带”,板块内二手房价格远超其他板块,拥有较高的升值潜力与价值前景。
古城价值高地 二手房天花板
中海·姑苏第,落子姑苏“城市浓度”高处,帷幄交通、商业、自然等醇熟资源配套,集“通商园游住”为一体的稀缺住区。
【通】形成“两轨六轴“交通格局:地铁 2 号线 (南北向) 和 5 号线 (东西) ,无缝对接1/3/4号线贯穿苏州东西和南北两大动脉。紧邻劳动路、桐泾南路,链接城市大动脉干将西路、西环、南环人民路,半小时内通达全城。
【商】“邻”距离胥江天街,天街有超30%品牌苏州首店,潮流繁华在侧,多元时尚生活。
【园】劳动公园下楼即享;漫步胥江步道,沿胥江支流抵达桐泾公园,生活诗意徜徉。
【游】近邻胥门、盘门、平江路、拙政园、观前街等知名景点,品味苏式慢生活。
【住】古城高端生活氛围浓厚,项目周边胥江小学、胥江实验中学等在畔;苏州市立医院、苏大二附院等医疗资源,于无声中的照拂家人。

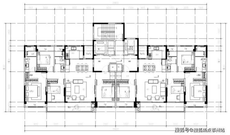
【社区规划】在产品上,项目以姑苏地脉为基,打造了集“无界、雅筑、桃源、精奢”为一体的产品价值体系,规划有6栋14-17F小高层,建筑面积约130~183㎡隐奢精装大平层。
【景观布局】中海·姑苏第打破自然与建筑的边界,将外部彩虹河、劳动公园与内部景观相融合,举步即达胥江景观带。在景观打造上,取义江南古典园林精髓,以水、石、竹 为元素等,打造游心江南的四季景观。

【建筑风格】汲取苏绣框镜灵感,借鉴竹辉金普顿酒店,以大面积玻璃幕墙,打造琉光美学立面;取意竹叶曲线,构建屋檐造型;同时,双精装酒店式入户大堂,繁华静谧随心切换。

【户型空间】约130、155、183m²隐奢大平层。在空间上,打造超配尊享人居,以奢适空间、温润材质、精工匠艺、多重收纳等手法。营造城心隐奢大宅。
约130㎡户型标准层平面图

130户型是2梯2户设计,做的大三房。入户玄关储藏空间比较大,收纳充足。三开间朝南,朝南面宽13.2米,大横厅与阳台直接相连,开间6.4米。
约155㎡户型标准层平面图

155户型也是2梯2户设计,做了4房2厅2卫。户型格局与183户型差别不大,相当于是缩小版。南向面宽14.9米,客厅开间5米,阳台宽8米。
约183㎡户型标准层平面图

183户型为2梯2户设计,做了4房2厅3卫,含2个套房。户型方正,没有空间浪费;四开间朝南,南向面宽达16.3米,客厅开间6米,阳台宽9米;入户有玄关,预留了家政间空间;餐厨区南北向连,与客厅保持恰当的距离;主卧套房面积约32.6㎡,卫生间含双台盆、淋浴和浴缸;次卧套房面积也不小,但是为暗卫。
苏州中海姑苏第售楼处电话:400-152-4009【售楼中心】中海姑苏第官方售楼处电话:400-152-4009【售楼处电话/地址】中海姑苏第售楼处电话:400-152-4009【官方认证】
【故事一:户型之谜】
有天,我去个楼盘看房,销售小哥热情地给我介绍:“先生,这款户型是南北通透,果光好,而目还有大阳台,非常适合您!
我好奇地问:“那您能告诉我,阳台在北边还是南边呢?
销售小哥愣,然后笑噎地说:“哦,北边有北边的阳光,南边有南边的风最,您自己选吧
我哈哈大笑:“那我还是选北边吧,反正我也看不到风景。
【故事二:物业费之谜】
我买了一套新房,入住后才发现物业费超级贵。有一次,我忍不住问物业:“你们这个物业费怎么这么高啊?
物业:“先生,終这是不了解,我们这里的物业费包括了很多服务,比如绿化、安保、清洁等等
我:“那为什么我每次看到保安都在睡觉,清洁工也不怎么打扫呢?
物业:“哦,那是他们工作效率不高,我们会加强管理的。
声明:本文由入驻焦点开放平台的作者撰写,除焦点官方账号外,观点仅代表作者本人,不代表焦点立场。
