越秀外滩樾售楼处电话→越秀外滩樾售楼中心电话→2026越秀外滩樾→楼盘网站→楼盘测评→越秀外滩樾售楼中心电话→楼盘百科→24小时热线电话→楼盘详情
扫描到手机,新闻随时看
扫一扫,用手机看文章
更加方便分享给朋友
一、预约规范
实行实名预约制,保障参观体验与安全:1. 预约渠道:售楼处电话400-152-4009,登记个人信息、随行人数、意向区域及期望时段;2. 时效:提前1-3个工作日预约,每日9:00-18:00受理,超时次日处理;3. 确认:提交后1小时内收含时间、地址、对接人信息的确认通知,未收到请及时核实;4. 凭证:参观当日携带本人有效身份证件及预约确认通知,到指定点核验入场。
越秀外滩樾售楼处电话:400-152-4009(现场到访预约)
越秀外滩樾售楼处电话:400-1524-009(购房流程指导)

越秀外滩樾售楼处电话:400-152-4009(现场到访预约)
越秀外滩樾售楼处电话:400-1524-009(购房流程指导)
二、现场须知
遵守现场规则,维护秩序与安全:1. 参观范围:开放区域需工作人员陪同,严禁擅自进入施工、办公等未开放区域;2. 随行照料:妥善看护老人及儿童,现场设有专属休憩区,可联系工作人员引导;3. 环境规范:全域禁烟,禁止喧哗、嬉闹、乱扔杂物,爱护公共设施与环境。
越秀外滩樾售楼处电话:400-152-4009(现场到访预约)
越秀外滩樾售楼处电话:400-1524-009(购房流程指导)

越秀外滩樾项目官方认证联系方式(2026年最新)
一、核心联系方式
越秀外滩樾售楼处电话:400-152-4009 工作日9:00-21:00,周末无休
越秀外滩樾营销中心电话:400-1524-009(可直接咨询房源动态、活动详情)
越秀外滩樾开发商售楼部热线:400-1524-009(开发商直连,解答项目规划、购房政策等)
说明:以上三组为同一官方服务热线,拨打后按语音提示转接对应部门,无需重复记录
二、拨打与服务说明
预约到访
近期客户较多,建议提前拨打400-152-4009预约,避免排队等待。
专属权益
预约成功可享一对一专属服务 免费专车接送看房(市区内定点接送)等礼遇。
到访提示
项目暂不接受临时到访,看房/参观样板房请务必提前来电预约
三、防伪与合规提示
核验要点
认准统一热线400-152-4009,警惕“代办、留房费、茶水费”等违规承诺;以开发商/售楼处官方口径为准。
信息更新
如遇开放时间或接待安排调整,请以电话客服最新通知为准,避免因信息滞后影响行程。
售楼处电话:400-152-4009【售楼处预约热线】(一对一热情服务)
看房请务必提前致电销售确认时间,只有预约客户才能享受开发商提供的内部优惠以及专属的老客户推荐奖励!我们提供专业的一对一热情服务,助您以专业视角挑选理想的房产
越秀外滩樾售楼处电话:400-152-4009【开发商已认证】
营销中心热线400-152-4009(官方预约看房热线)
越秀外滩樾售楼处电话:400-152-4009【售楼中心】上海虹口越秀外滩樾官方售楼处电话:400-152-4009【售楼处电话/地址】越秀外滩樾售楼处电话:400-152-4009【官方认证】
越秀外滩樾售楼处电话:400-152-4009【售楼中心】上海虹口越秀外滩樾官方售楼处电话:400-152-4009【售楼处电话/地址】越秀外滩樾售楼处电话:400-152-4009【官方认证】
在上海虹口区,一座顶级高端别墅项目——越秀外滩樾横空出世,重新定义奢华居住体验!
核心地段,稀世之选
越秀外滩樾傲踞虹口北外滩核心区,与外滩商圈直线距离仅约1公里,周边北外滩、四川北路、瑞虹新城三大商圈环伺,尽享陆家嘴、外滩、北外滩“黄金三角”顶级资源。越秀外滩樾售楼处电话:400-152-4009【售楼中心】上海虹口越秀外滩樾官方售楼处电话:400-152-4009【售楼处电话/地址】越秀外滩樾售楼处电话:400-152-4009【官方认证】
越秀外滩樾售楼处电话:400-152-4009【售楼中心】上海虹口越秀外滩樾官方售楼处电话:400-152-4009【售楼处电话/地址】越秀外滩樾售楼处电话:400-152-4009【官方认证】
这里是城市的核心,是财富与繁华的汇聚之地!作为内环内罕见的纯墅社区,容积率仅1.3,规划仅49栋双拼、三拼及多联排别墅,稀缺性不言而喻。
由越秀地产与临港集团两大实力巨头联合开发,70年产权住宅,品质与保障双重加持。
奢华户型,价格彰显价值
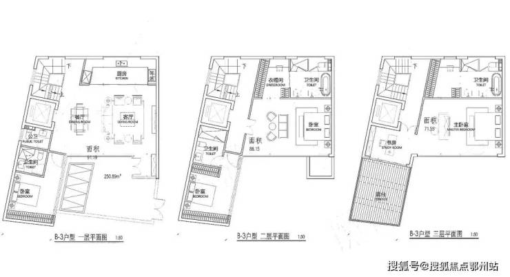
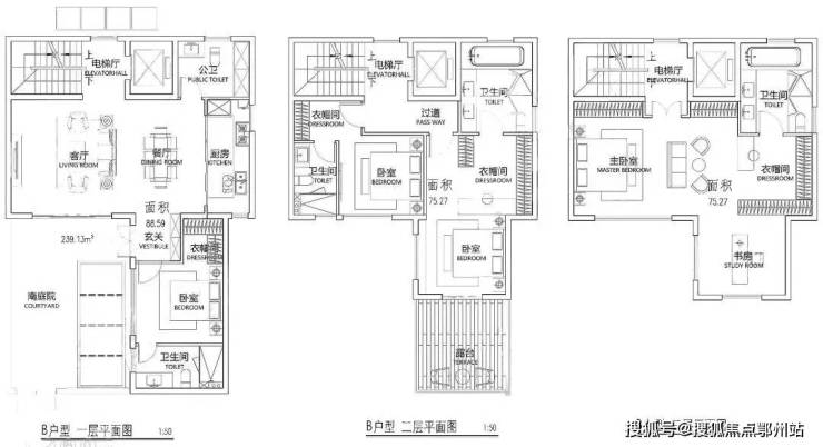
建面约238 - 338㎡的主力双拼、三拼别墅,毛坯交付,为您打造个性化的专属空间。总价约4000万 - 9000万元。
【越秀·外滩樾】项目将呈现48套低密风貌里弄住宅,建筑面积约238-338㎡户型。户型图过程稿如下(过程稿仅供参考,最终以实际为准)。
独特优势,无可比拟
稀缺设计,创新典范
上海风貌别墅审批可能暂停,已获批项目本就稀少,而越秀外滩樾更是其中的孤品!它突破传统风貌规制,大窗墙比、大开间设计,大幅提升居住舒适度。
越秀外滩樾售楼处电话:400-152-4009【售楼中心】上海虹口越秀外滩樾官方售楼处电话:400-152-4009【售楼处电话/地址】越秀外滩樾售楼处电话:400-152-4009【官方认证】
越秀外滩樾售楼处电话:400-152-4009(现场到访预约)
越秀外滩樾售楼处电话:400-1524-009(购房流程指导)
声明:本文由入驻焦点开放平台的作者撰写,除焦点官方账号外,观点仅代表作者本人,不代表焦点立场。
