融创滨江映售楼处电话:400-112-0302【售楼中心】融创滨江映是融创中国与美好置业合作的精装宽境住区,位于张家港,主打高铁城芯,拥有优质配套和专业服务,价格亲民,适合高品质购房。
融创滨江映
融创滨江映售楼处电话:400-112-0302【售楼中心】
咨询高峰期请耐心等待,预约来电尊享内部优惠,专业一对一热情服务,让您用专业眼光去买房。
世界的港城 时代的滨江映
长三角国际都市 2021影响力作品
高铁城芯 建筑面积约90-130㎡精装宽境住区

一、基础信息
项目名:滨江映
开发商:融创中国|美好置业
项目产品:建筑面积约90-130㎡精装宽境住区
总户数:1087户
住宅产权:70年

交付标准:精装交付
交房时间:预计2024年11月份
物业公司:融创物业
物业费:2.5
容积率:2.0

绿化率:35%
车位配比:1:1.25
首付:5万
均价:1.1-1.2万/平,总价108万起
1、品牌价值
2021年,融创中国、美好置业,重磅联袂,将融创映系美学迭代新品——滨江映,落址张家港中心,为时代创造更多元的生活方式。
【融创中国 美好城市共建者】
融创中国共建升级未来城市中心,参与苏州相城高铁新城、太仓娄江新城等多个城市CBD打造,与世界级长三角城市群共潮头。
融创滨江映
融创滨江映售楼处电话:400-112-0302【售楼中心】
咨询高峰期请耐心等待,预约来电尊享内部优惠,专业一对一热情服务,让您用专业眼光去买房。
【美好置业 美好心灵 美好人生】
美好置业(000667),中国百强房企。31载沉淀,布局25城,匠筑40余红盘,致力于为消费者提供精筑纯粹品质社区。
2、配套价值
◎多维交通 城市瞬息切换
高铁枢纽:张家港站(直线距离约3.5公里),1小时长三角通勤圈,深度融入上海“半小时经济圈”;
城市干线:塘桥客运站、202县道、204国道、吴弘大道、西环路、北京路、北环路、南京路、维达路,快速联通港城主城、苏州主城;
机场环绕:苏南硕放国际机场、上海虹桥国际机场、上海浦东国际机场;

◎鎏金配套 绘就国际前沿生活版图
国际门户:张家港奥体中心(规划中)、国际会展中心(规划中)、国际会议中心(规划中)、东渡国际人才创业街区(在建中)等;
国际配套:第三人民医院、张家港市音乐厅(规划中)、长江数字文化博物馆(规划中)等;

国际商业:大润发、曼巴特购物广场、万达广场、吾悦广场等;
国际教育:塘桥高级中学、塘桥中心小学、梁丰学校等;
国际生态:约17.7平方公里黄泗浦城市生态公园、文化生态双轴;
融创滨江映
融创滨江映售楼处电话:400-112-0302【售楼中心】
咨询高峰期请耐心等待,预约来电尊享内部优惠,专业一对一热情服务,让您用专业眼光去买房。
产品价值
极简内核:轻盈飘逸和通透现代流线体裁,以利落的线条、极简的色彩,让建筑通体如水晶般闪耀,辉映时代光芒。
极质底色:萃取全球高端居所的奢华底色——莫兰迪,辅以大面积玻璃和金属线条勾勒,淬炼时间的品格艺术。
全龄谧境:以“高级、定制、艺术”为核心理念。匹配时代人物精神境界,超阔楼间距,6大社区欢乐场景,将生活与景观融合。

科学布局:打破空间限制,起居厅与餐厨极尽铺展,户型科学布局,超高窗墙比,室外配置宽幕观景阳台。
品牌精装:国际品牌精装,同步全球健康理念,中央空调(部分户型)+新风配置(部分户型),筑就精英人群高品质的生活方式。
4、服务价值
【融创服务 中国品质服务引领者】
融创物业(01516.HK),壹级物业管理资质,以“至善·致美”为服务理念,为客户提供全面的高品质物业服务。
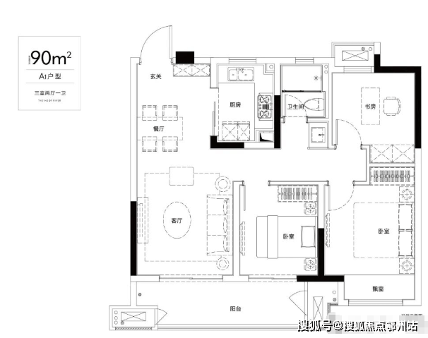
5、【户型赏析】




融创滨江映
融创滨江映售楼处电话:400-112-0302【售楼中心】
咨询高峰期请耐心等待,预约来电尊享内部优惠,专业一对一热情服务,让您用专业眼光去买房。
郑重承诺:此房源信息真实有效,开发商直属全程营销策划,中介勿扰如有问题欢迎来电咨询,来电即可享受买房优惠!
1、本资料为要约邀请,不作为要约或承诺;买卖双方的权利义务以双方签订的《商品房买卖合同》及其补充协议、附件等书面文件为准;相关宣传内容不排除因政府相关规划、规定及出卖人分期规划、未能控制等原因发生变化;出卖人将!不定期对宣传材料进行修改,敬请留意最新资料。
2、图片来源于网络,仅作为推广示意使用;如涉及版权使用,请与我司联系。