杭州余杭星创杭启云珹府
售楼处电话:400-112-0302(预约热线)
欢迎来电咨询预约〢专业热情细致服务〢给您一个温馨满意的家〢
楼盘名称:星创·杭启云珹府
开盘楼幢:2#、3#和14#
均价:精装限价20500元/㎡(含精装2500元/㎡)
参考总价: 202万元起
冻资金额: 无房无贷50万,其他100万
主力户型: 116方42套,152方42套
总楼层:7层
总户数:共28幢,1410户
精装限价:精装限价20500元/㎡(含精装2500元/㎡)
产品:17幢7层洋房+11幢11层小高层
装修情况:精装
开发商:星创集团
交付时间: 2025年6月
物业:星创物业(3.35元/月/㎡,含能耗)
容积率:2.0
车位信息:1:1.3,1846个
绿化率:35%
外立面:铝板保温一体板
小区配套:1000㎡下沉式会所,其他有戏水池等亲子乐园
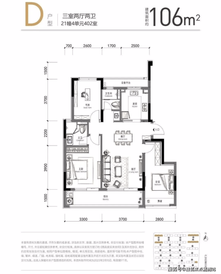
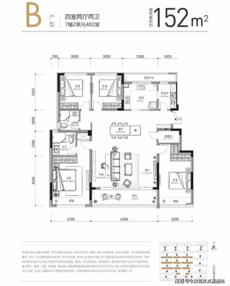
户型:106方三房、116方四房、129方四房、152方4+1房

新城核心区,中法航空大学东侧的洋房项目——星创·云珹府,精装修均价仅20500元/㎡!
相比周边的良渚、云城等板块,这显然已经成为了“价格洼地”。
云珹府位于瓶窑新城核心位置,西侧一路之隔就是中法航空大学,项目往北约2公里就是良渚古城遗址公园。
项目总共28幢楼,其中11幢小高层,17幢洋房。此类以洋房为主的楼盘,已成为越来越多购房者的青睐之选。

铝板保温一体板外立面效果图
在超过约1万/㎡的价差对比下,与良渚一脉相承的瓶窑新城,房价尽显诚意。
云珹府的主力产品户型为约106㎡、116㎡、129㎡、152㎡。


约106㎡的3房2卫户型,总价可控制在200万出头。
而约152㎡的洋房改善户型,拥有约6.3*8.95米超大会客空间,尽显阔绰尺度感。

作为杭州云城北延外溢的第一站,瓶窑正在逐步承接更多的城市资源,占地200亩的盒马鲜生等项目已经落地。
随着云城双铁上盖综合体等开发推进,瓶窑与云城正在逐步融为一体,未来还可以通过地铁12号线二期连接。

杭州余杭星创杭启云珹府
售楼处电话:400-112-0302(预约热线)
欢迎来电咨询预约〢专业热情细致服务〢给您一个温馨满意的家〢
瓶窑新城与主城区、未来科技城之间,也已通过快速路连接成网。
目前从云珹府出发,可走杭长高速直连紫金港快速路,到紫金港和蒋村一带十分方便,且目前浙A小客车免费通行。
正在建设的运溪高架瓶窑互通,按计划将于今年亚运会前开通。届时,瓶窑前往杭州西站、未来科技城等地将更加方便。

而且可以通过相关互通连接留石快速路、文一西路快速路等,抵达杭州各地。
走北侧104国道-莫干山高架路,也能快速抵达大城北和市中心。
云珹府东侧的凤都路南延已经开工,开通后将于良渚文化村紧密相连,未来还将继续延伸到云城腹地。
瓶窑是余杭传统的重点街镇,本身就是一个配套齐全的小城市。
云珹府周边已拥有嘉凯城城市客厅、瓶窑广场等商业体,前往永旺梦乐城的交通也十分便利。
紧邻良渚古城遗址公园也是项目的主要闪光点之一。
可以想象,未来业主随时都能走进遗址公园,感受世界文化遗产的魅力,还能带孩子喂喂网红梅花鹿,体验大自然的乐趣。

往西走走,还有杭州摄影爱好者的打卡圣地——北湖草荡。每到深秋,连绵不断的芦苇花海景观,总能让人心驰神往。
此外,板块内还有瓶窑老街、国家版本馆杭州分馆等越来越知名的文旅景点。
周边生态、景观、文化资源丰富程度,让杭启云珹府的业主永远不会“无聊”。
3月11日,云珹府实景体验区正式对外开放,对项目感兴趣的,可以预约参观。

杭州余杭星创杭启云珹府
售楼处电话:400-112-0302(预约热线)
欢迎来电咨询预约〢专业热情细致服务〢给您一个温馨满意的家〢
郑重承诺:此房源信息真实有效,开发商直属全程营销策划,中介勿扰如有问题欢迎来电咨询,来电即可享受买房优惠!
1、本资料为要约邀请,不作为要约或承诺;买卖双方的权利义务以双方签订的《商品房买卖合同》及其补充协议、附件等书面文件为准;
相关宣传内容不排除因政府相关规划、规定及出卖人分期规划、未能控制等原因发生变化;出卖人将!不定期对宣传材料进行修改,敬请留意最新资料。
2、图片来源于网络,仅作为推广示意使用;如涉及版权使用,请与我司联系。