滨江晓城里(营销中心)首页网站-滨江晓城里销售中心(售楼处)-2025楼盘欢迎您-地址-价格-户型-小区环境-楼盘详情-交房时间-周边配套-售楼处电话
扫描到手机,新闻随时看
扫一扫,用手机看文章
更加方便分享给朋友
滨江晓城里售楼处电话:400-152-4009【售楼中心】临安江晓城里官方售楼处电话:400-152-4009【售楼处电话/地址】滨江天目山晓城售楼处电话:400-152-4009【官方认证】滨江天目山晓城售楼中心24小时热线电话
滨江天目山晓城:366席“造梦小镇”!总价200万级现房滨江造满满中国唐风合院!天目山圣境|滨江首个亲旅小镇|大杭州都市圈|稀缺中式合院|现房销售
作为滨江集团打造的首个亲旅小镇,天目山晓城聚焦多产业模块,赋能天目山文旅迭新。900亩巨制,规划英迪格酒店、天目in66商业街、自然探索乐园、耕心农场、自在果园、唐风合院、暖驿社区等复合功能配套,并携手老罗家特产品牌、鹿可卢可农庄机构,打造生活、度假、亲子、娱乐、运动、康养六大生活场景,勾勒丰盛的“晓城里”生活蓝图,开启度假新旅程。
滨江晓城里售楼处电话:400-152-4009【售楼中心】临安江晓城里官方售楼处电话:400-152-4009【售楼处电话/地址】滨江天目山晓城售楼处电话:400-152-4009【官方认证】滨江天目山晓城售楼中心24小时热线电话
基础信息
【开发商】:浙江省杭州市滨江集团
【占地面积】:约15.3万方
【建筑面积】:约4.7万方
【总价】:280万起(送精装)
【绿化率】:35%
【停车位】:一户赠送一个
【楼栋总数】:40
【总户数】:366
【容积率】:0.6
【花园面积】:1:0.8,大概100-200方
【产品】建面约90-160㎡唐风合院(现房、现房、现房)
【水电】:民电
滨江天目山晓城售楼处电话:400-152-4009【售楼中心】滨江天目山晓城官方售楼处电话:400-152-4009【售楼处电话/地址】滨江天目山晓城售楼处电话:400-152-4009【官方认证】滨江天目山晓城售楼中心24小时热线电话
项目位于“杭州西综合门户”—临安境内,临安布局“一高两铁三快速”融杭战略,以杭徽高速浙西大走廊为轴,以青山湖秀水圈、大天目名山圈、浙西天路户外圈为驱动,构建“一廊三圈十八景”多元发展格局。
项目落址大天目名山圈,从项目出发,自驾约十分钟左右,即可至杭徽高速(杭瑞高速杭州至黄山段)藻溪互通,约40分钟对接杭州主城西。
滨江天目山晓城售楼处电话:400-152-4009【售楼中心】滨江天目山晓城官方售楼处电话:400-152-4009【售楼处电话/地址】滨江天目山晓城售楼处电话:400-152-4009【官方认证】滨江天目山晓城售楼中心24小时热线电话
滨江天目山晓城售楼处电话:400-152-4009【售楼中心】滨江天目山晓城官方售楼处电话:400-152-4009【售楼处电话/地址】滨江天目山晓城售楼处电话:400-152-4009【官方认证】滨江天目山晓城售楼中心24小时热线电话
千亿滨江,秉承“让老百姓都能住上一套好房子”的理念,三十余载品质深耕;当代豪宅引领者,拥有成熟的产品线和丰富的操盘经验;2022年,滨江集团持续蝉联杭州地区销售操盘榜和权益榜双料冠军;荣膺“2023中国房地产百强企业”TOP13,以稳健步伐迎来发展新高度。
天目山晓城位于西天目景区门口,地势广袤平缓,举目皆是翠樾千重、冈峦参差。一共900多亩的用地,因配套面积远大于合院区,所以合院不是围绕“小镇中心”蔓延,而是被无数的生活配套“拱卫”,业主可轻松抵达小镇所有设施。

户型鉴赏
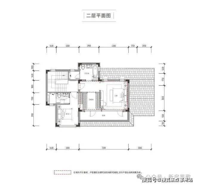
以约142㎡户型为例,面宽约15.2米,标准4房4卫。一楼是约7.2米长的双面采光大横厅,除了老人套房,还有个向院子伸出的“X空间”。它既能用作茶室、棋牌房,也能成为私密的客卧。
更赞的是二楼,拥有两个套房,主卧还是带南向独立衣帽间+带浴缸卫生间+露台“满配套房”!无论采光还是实用性,都碾压普通合院。
滨江天目山晓城售楼处电话:400-152-4009【售楼中心】滨江天目山晓城官方售楼处电话:400-152-4009【售楼处电话/地址】滨江天目山晓城售楼处电话:400-152-4009【官方认证】滨江天目山晓城售楼中心24小时热线电话
滨江天目山晓城:366席“造梦小镇”!总价300万级现房滨江造满满中国唐风合院!
一横,天目山路;一纵,莫干山路。
滨江天目山晓城售楼处电话:400-152-4009【售楼中心】滨江天目山晓城官方售楼处电话:400-152-4009【售楼处电话/地址】滨江天目山晓城售楼处电话:400-152-4009【官方认证】滨江天目山晓城售楼中心24小时热线电话
它们既划定了杭州老城区的中轴,也意味着,夏天从市中心驱车直达天目山、莫干山避暑消闲,是政商名流们一直以来的“刚需”。
滨江·天目山晓城,才发现:滨江从未停止“造梦”,而是花了整整7年,砸下15亿,直接把梦想变成现实。
天目山晓城现房实景图
在这里,滨江打造了366席唐风合院,约0.3超低容积率,每户都享有超大的花园庭院,和可以耕云种月的四季牧歌良田。院子里绿荫浓郁,风沿着婆娑树影流转,踱步院中,丝丝凉意,于心间绽放。取一把椅子,泡一壶清茶,于树下或檐下落座,记忆里的夏天,就回来了。
>天目山晓城合院实景图
天目山晓城聚焦多产业模块,赋能天目山文旅迭新。900亩巨制,规划英迪格酒店、天目in66商业街、自然探索乐园、耕心农场、自在果园、唐风合院、暖驿社区等复合功能配套,并携手老罗家特产品牌、鹿可卢可农庄机构,打造生活、度假、亲子、娱乐、运动、康养六大生活场景,勾勒丰盛的“晓城里”生活蓝图,开启度假新旅程。
鹿可卢克农场占地面积约130亩,打造萌宠乐园、亲子采摘、农旅研学、烧烤茶歇、轻奢露营等多彩业态,在这里可以尽情撒欢。在小镇另一头还有四季牧歌供业主们种植,同时现在购买天目山晓城合院产品的业主,都将获得四季牧歌约40平米的田地使用权。
滨江晓城里售楼处电话:400-152-4009【售楼中心】临安江晓城里官方售楼处电话:400-152-4009【售楼处电话/地址】滨江天目山晓城售楼处电话:400-152-4009【官方认证】滨江天目山晓城售楼中心24小时热线电话
滨江晓城里售楼处电话:400-152-4009【售楼中心】临安江晓城里官方售楼处电话:400-152-4009【售楼处电话/地址】滨江天目山晓城售楼处电话:400-152-4009【官方认证】滨江天目山晓城售楼中心24小时热线电话
声明:本文由入驻焦点开放平台的作者撰写,除焦点官方账号外,观点仅代表作者本人,不代表焦点立场。
