杭州最高性价比低密钱塘心·天街旁·唯一在售纯新准现房小院·总价400万起珍藏稀贵 有天有地 稀贵低密资产 枫漫晓集·花园
杭州钱塘「枫漫晓集」
枫漫晓集售楼处电话:400-112-0302【销售中心】
温馨提示:目前仅接待预约客户,为了节省您的宝贵时间,看房请拨打400电话与销售提前预约,避免空跑带来不好的体验,感谢理解!

杭州钱塘核芯区 江海之城CBD
有天有地 稀贵低密资产 现房所见即所得
100米龙湖天街,200米地铁启程路站
限量12栋,全新面市

BUILDING INFORMATION
【项目信息】
项目区域:钱塘区江东核心区
产权:40年
物业类型:商业花园小院
产品面积:建面约114㎡
总户数:12栋
得房率:约98%
物业:滨江物业
交付标准:毛坯

杭州钱塘「枫漫晓集」
枫漫晓集售楼处电话:400-112-0302【销售中心】
温馨提示:目前仅接待预约客户,为了节省您的宝贵时间,看房请拨打400电话与销售提前预约,避免空跑带来不好的体验,感谢理解!
【商业配套】
龙湖天街(一路之隔)
杭州第五座天街,已开业。建筑面积约18万㎡,共 6层,规划涵盖了国际潮牌、大牌餐饮、IMAX影院等在内的超过300个品牌,是集购物、娱乐、休闲、美食、等一站式消费为一体的大型综合体。

宝龙城市广场(直线距离350米)
已开业,定位为集购物、餐饮、娱乐、文化、休闲、商务、等功能为一体的城市商业中心;还设置了一条涵盖购物中心、风情艺术街和创意集市的国际BLOCK街区。

便捷交通
地铁
约200米即达地铁7号线北二路站、1站直达便利换乘地铁8号线,通达杭城
教育配套
自建12班幼儿园,与项目同期交付
杭高集团启成学校(小学初中9年一贯制)
公办学校,目前已运营;规划60个班,占地140亩,总建筑面积7.6万方
BUILDING ANALYSIS
【12栋 限量发售】
城央层峰共识 繁华深处人文藏品
当代中式风格建筑,大屋顶内涵”拙政园“东方传统神韵,高级灰立面形俱时代风格,出则繁华,入享宁谧,有天有地人生尺度,收藏一院春夏秋冬。

杭州钱塘「枫漫晓集」
枫漫晓集售楼处电话:400-112-0302【销售中心】
温馨提示:目前仅接待预约客户,为了节省您的宝贵时间,看房请拨打400电话与销售提前预约,避免空跑带来不好的体验,感谢理解!
尊享四层尺度 拥揽多元境界
于无界空间,方有无价之居,生活,文化,社交在此垂直延伸,自我与世界就此舒展开来,窗外极目无边,屋内群贤毕至,上可尽享天伦,下可收藏志趣。
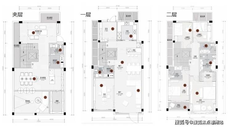
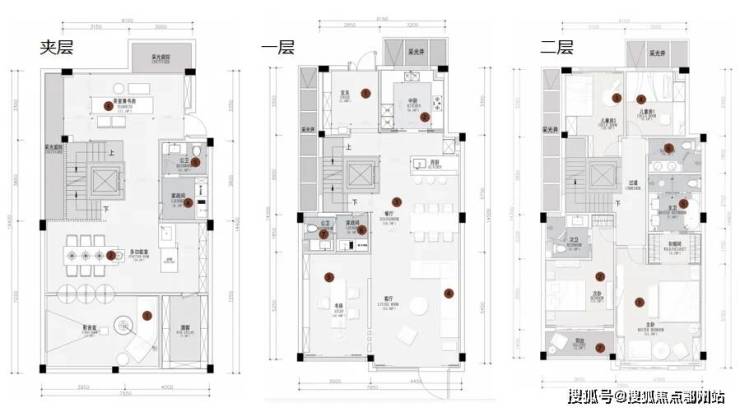
【户型装修建议一】城央隐世居所

空间风格参考



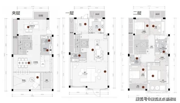
【户型装修建议二】城央隐世居所

空间风格参考



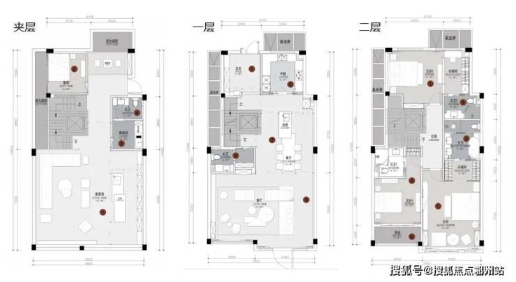
【户型装修建议三】城央隐世居所




杭州钱塘「枫漫晓集」
枫漫晓集售楼处电话:400-112-0302【销售中心】
温馨提示:目前仅接待预约客户,为了节省您的宝贵时间,看房请拨打400电话与销售提前预约,避免空跑带来不好的体验,感谢理解!
郑重承诺:此房源信息真实有效,开发商直属全程营销策划,中介勿扰如有问题欢迎来电咨询,来电即可享受买房优惠!
1、本资料为要约邀请,不作为要约或承诺;买卖双方的权利义务以双方签订的《商品房买卖合同》及其补充协议、附件等书面文件为准;
相关宣传内容不排除因政府相关规划、规定及出卖人分期规划、未能控制等原因发生变化;出卖人将!不定期对宣传材料进行修改,敬请留意最新资料。
2、图片来源于网络,仅作为推广示意使用;如涉及版权使用,请与我司联系。