上海青浦香榭颂玺售楼处电话:400-112-0302【售楼中心】 上海青浦香榭颂玺为法式独栋别墅,建面1870-2213㎡,总价约5500万起,容积率1.6,绿化率30%,售价2.9万/㎡,7席限量热销。
上海青浦香榭颂玺
上海青浦香榭颂玺售楼处电话:400-112-0302【售楼中心】
咨询高峰期请耐心等待,预约来电尊享内部优惠,专业一对一热情服务,让您用专业眼光去买房。
虹桥独栋藏品「香榭颂玺」建面1870-2213㎡别墅,仅7席献映全球,每一栋,都值得被时代铭记!

虹桥独栋藏品,时代绝版
「香榭颂玺」仅7席正在热销中
建面1870-2213㎡独栋别墅
总价约:5500万/起!单价2.9万
8栋大平层建面约:397-686㎡
总价1280万/起!可直接选
售楼处线上火热预约

【项目地址】上海市清河湾路1635弄
【占地面积】40405.5m²
【建筑面积】地上建筑面积65164.23m²、地下建筑面积31200m²
【容积率】1.6(墅区容积率1.2)
【绿化率】30%
【物业类型】
独栋:7栋 ,建筑面积约1865.86-2208.89m²
平墅:35套 ,建筑面积约397-686m²,一楼入户花园面积约40-200m²
标准办公;共12F, 总面积约13206m²

上海青浦香榭颂玺
上海青浦香榭颂玺售楼处电话:400-112-0302【售楼中心】
咨询高峰期请耐心等待,预约来电尊享内部优惠,专业一对一热情服务,让您用专业眼光去买房。
*法式独栋: 面积1880m²,总价5500w起
通燃气,送花园(约400-1300m²),送阳台(约86m²),送屋顶(约610m²),赠送面积超1000m²
*总裁行政公馆: 单层面积397-686m²,共五层,单价2.5w元/m²起,通燃气,入户有独立花园(约30-300m²),得房率88%,每户专属私家电梯(三菱),标准层每户双入户大堂设计(一楼入户厅约28-40m²,层高4.5米,b1私家入户厅约20m²赠送,层高5.5米)
*甲级办公: 单层1000m²-1500m²,单价2w元/m²起,每层2本产证
稀缺法式独栋--企业总部接待首选
【产权年限】50年
【交付标准】毛坯交付
虹桥香榭颂玺,总建面约9.6万㎡, 由7栋法式独栋、8栋总裁平墅以及缤纷商业及一栋甲级办公所组成。项目打造约1.6容积率低密园区,汲取法式美学灵感,结合现代精工技艺打造划时代的高定产品。

香榭颂玺由7栋法式原石独栋,每一栋建筑都采用了源自法国经典建筑的设计理念。每栋法式原石 独栋面积在1870-2213㎡之间,外立面采用法国凡尔赛宫、卢浮宫的精选石材,体现了法式建筑的尊贵与典雅。每户 独栋还自带约400-1300㎡的私家花园,以及独特的屋顶花园空间,提供了一个私人且尊贵的生活空间。
典藏法式独栋:建面1869-2212㎡,单价2.9万;法国进口卢浮宫同款石材;来自凡尔赛宫的灵感设计;独立花园、穹顶花园、阳台等;燃气入户使用率超过150%

总裁行政公馆则采用一户一梯设计,每户面积约397-686平方米,高达4.5米的层高设计,重新定义了海派空间标准。每户均享有独立电梯入口和私家花园,提供了业主极致的私密性和便捷性。此外,每户还设有宽敞的观景露台,为居住者提供了一个奢华的生活体验。


奢华空中平墅:建面约397-686㎡大平层,均价2.5万,总价1280万/起!独一无二的一梯一户一花园设计。
独立双入户大堂专属私密空间31米超距面宽19.5米纵深空间燃气入户使用率超过100%;自带商业:1.7万㎡商业配套(营业中)商业配套:万达茂、吾悦广场、百联其他配套:铂尔曼、诺富特、雅朵、沁园湖广场
上海青浦香榭颂玺
上海青浦香榭颂玺售楼处电话:400-112-0302【售楼中心】
咨询高峰期请耐心等待,预约来电尊享内部优惠,专业一对一热情服务,让您用专业眼光去买房。
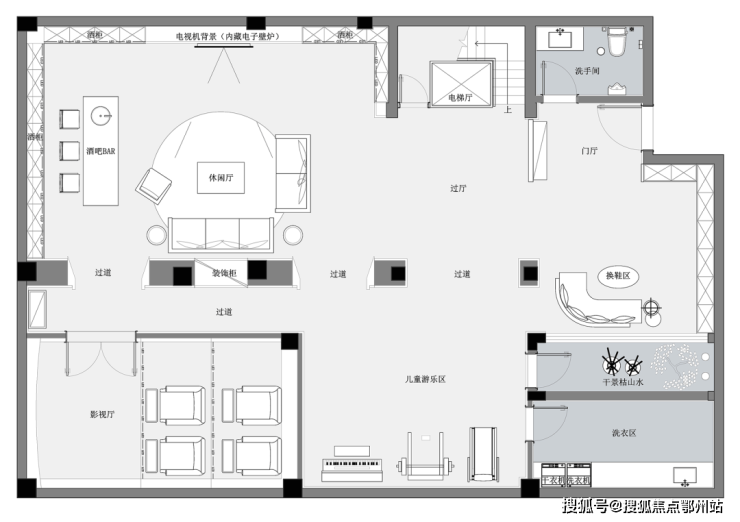
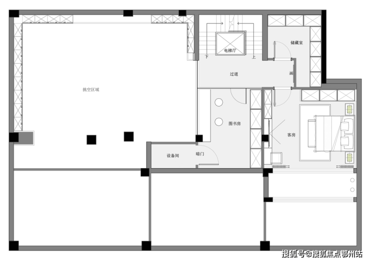
产品鉴赏-法式独栋篇




产品鉴赏-行政总裁公馆

上海青浦香榭颂玺
上海青浦香榭颂玺售楼处电话:400-112-0302【售楼中心】
咨询高峰期请耐心等待,预约来电尊享内部优惠,专业一对一热情服务,让您用专业眼光去买房。




商业配套齐全,商业繁华,山姆会员店、奥特莱斯、万达广场、百联广场、吾悦广场、绿地缤纷等高端商业体环伺,满足您的一站式购物需求。社区内部,更有1.7万方商业配套,让日常生活更加便捷。
绿意盎然,沁园湖樱花公园、上达河公园(建设中)等生态资源环绕,为您营造城市中的绿洲。
教育资源丰富,兰生复旦、平和双语、复旦大学附属中学青浦分校等名校云集,为孩子的未来保驾护航。
医疗体系完善,青浦中医院、复旦大学附属妇产科红房子医院、复旦大学附属中山医院青浦分院等优质医疗资源,为您和家人的健康保驾护航。

虹桥独栋藏品「香榭颂玺」建面1870-2213㎡别墅;总价约:5500万/起
上海青浦香榭颂玺
上海青浦香榭颂玺售楼处电话:400-112-0302【售楼中心】
咨询高峰期请耐心等待,预约来电尊享内部优惠,专业一对一热情服务,让您用专业眼光去买房。
郑重承诺:此房源信息真实有效,开发商直属全程营销策划,中介勿扰如有问题欢迎来电咨询,来电即可享受买房优惠!
1、本资料为要约邀请,不作为要约或承诺;买卖双方的权利义务以双方签订的《商品房买卖合同》及其补充协议、附件等书面文件为准;相关宣传内容不排除因政府相关规划、规定及出卖人分期规划、未能控制等原因发生变化;出卖人将!不定期对宣传材料进行修改,敬请留意最新资料。
2、图片来源于网络,仅作为推广示意使用;如涉及版权使用,请与我司联系。