信达·信安里
信达·信安里售楼处电话:400-112-0302【售楼中心】
咨询高峰期请耐心等待,预约来电尊享内部优惠,专业一对一热情服务,让您用专业眼光去买房。
「信达信安里」
内环内老静安曹家渡板块
建面约275-540㎡风貌别墅
均价19.98万/㎡ 性价比极高
总价约5686万-1.1亿
老静安唯一在售的风貌别墅
售楼处提前线上预约

项目基本信息


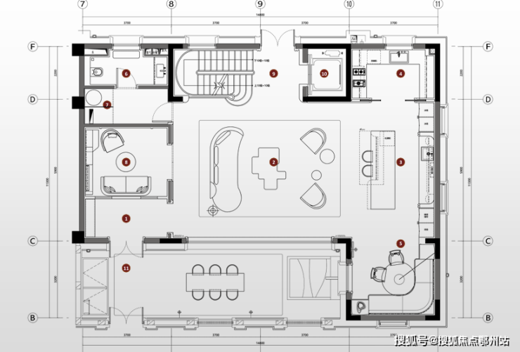
堪比大平层的超大面宽
彻底打破风貌别墅“窄开间”桎梏
最长19.5米的超大宽厅!这是忻园给出的惊喜答案!
相比于市面上多数风貌产品仅能做到1.5-2开间,难以匹配当代高净值家庭对开阔感与通透性的要求,信安里·忻园,实现了真正意义上的 “空间跨越”!
其主力户型做到约360㎡建筑面积、4开间朝南、总体面宽约16米,堪比一线大平层的尺度感。

尤其值得一提的是建面约540㎡的楼王户型,更是以5开间朝南、约19.5米超大宽厅,刷新了市场对风貌别墅的空间认知。









信达·信安里
信达·信安里售楼处电话:400-112-0302【售楼中心】
咨询高峰期请耐心等待,预约来电尊享内部优惠,专业一对一热情服务,让您用专业眼光去买房。







信安里高奢与烟火气兼具的高浓度生活圈
【信达·信安里】位于老静安核心的康定路余姚路交汇口南侧,与经典的市中心别墅豪宅静鼎安邦府邸仅一条康定路之隔。
商业配套方面:步行大约两个路口, KING88购物中心、星方汇、889广场、开开广场、七彩里5个商场任君选择。

交通配套方面:项目还有着高效的出行系统,增强了通达性。 13、14号线都步行可达,武宁路站和武定路站都步行约500米左右。1公里范围内,地铁线路就更丰富了,2号线、7号线的昌平路、隆德路、江苏路、静安寺等市中心地铁站都可步行到达。


示意图
教育资源方面:南西幼儿园(市示范园)、诗意久幼儿园等优质的学龄前教育;万航渡路小学、市西小学、一师附小、市西中学等中小学就在周边,甚至还有华东政法大学(原圣约翰大学)、上海戏剧学院等高等学府,全龄教育资源覆盖。
免责声明:以上教育资源整理仅代表楼盘与学校的距离,该房屋所在项目暂未划分学区,开发商不对项目交房后所属学区、学校做任何承诺。教育资源分配或学校/学区划分以及学校的具体招生规则等请以政府相关主管部门、教育机构公开的最新信息为准。
医疗资源方面:华山医院、上海市儿童医院、第一妇幼保健院、华东医院等一流的医疗资源,都在信达·信安里周围。
生态休闲资源方面:曹家渡口袋花园、静安公园、美琪大剧院、上海展览中心等,为生活增添乐趣。
这样高浓度的高质量配套资源,只有内环核心项目才可能拥有。 而信达·信安里这样能级的顶级资源,只有老静安核心!
信达·信安里
信达·信安里售楼处电话:400-112-0302【售楼中心】
咨询高峰期请耐心等待,预约来电尊享内部优惠,专业一对一热情服务,让您用专业眼光去买房。
郑重承诺:此房源信息真实有效,开发商直属全程营销策划,中介勿扰如有问题欢迎来电咨询,来电即可享受买房优惠!
1、本资料为要约邀请,不作为要约或承诺;买卖双方的权利义务以双方签订的《商品房买卖合同》及其补充协议、附件等书面文件为准;相关宣传内容不排除因政府相关规划、规定及出卖人分期规划、未能控制等原因发生变化;出卖人将!不定期对宣传材料进行修改,敬请留意最新资料。
2、图片来源于网络,仅作为推广示意使用;如涉及版权使用,请与我司联系。